【免费领取】记得关注
HWCD-重庆长嘉汇390平大平层精装修样板间丨PPT设计方案+效果图+彩平丨126页丨423M丨
领取方式, 转发 +关注 后私信 “ 素材”联系小编获取资料!

390平大平层精装修样板间效果图 (1)

390平大平层精装修样板间效果图 (2)

390平大平层精装修样板间效果图 (3)

390平大平层精装修样板间平面 (1)

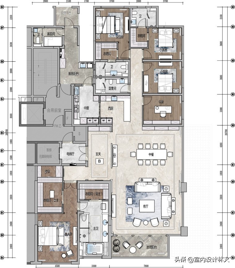
390平大平层精装修样板间平面 (2)

玄关及客餐厅立面

客餐厅立面

390平大平层精装修样板间设计方案1

390平大平层精装修样板间设计方案2

390平大平层精装修样板间设计方案3

390平大平层精装修样板间设计方案4

390平大平层精装修样板间设计方案5

390平大平层精装修样板间设计方案6

390平大平层精装修样板间设计方案7

390平大平层精装修样板间设计方案8

390平大平层精装修样板间设计方案9

390平大平层精装修样板间设计方案10

390平大平层精装修样板间设计方案11

390平大平层精装修样板间设计方案12

390平大平层精装修样板间设计方案13

390平大平层精装修样板间设计方案14
