
- 餐饮品牌名:Caroful 加樂紛
- 地点:上海渣打银行大厦(世纪大道201号)
- 设计公司:YUE Design
- 设计师:MikeCai、Tinya
- 摄影:YUE Design
- 完成时间:2019.07
项目概述
INTRODUCTION

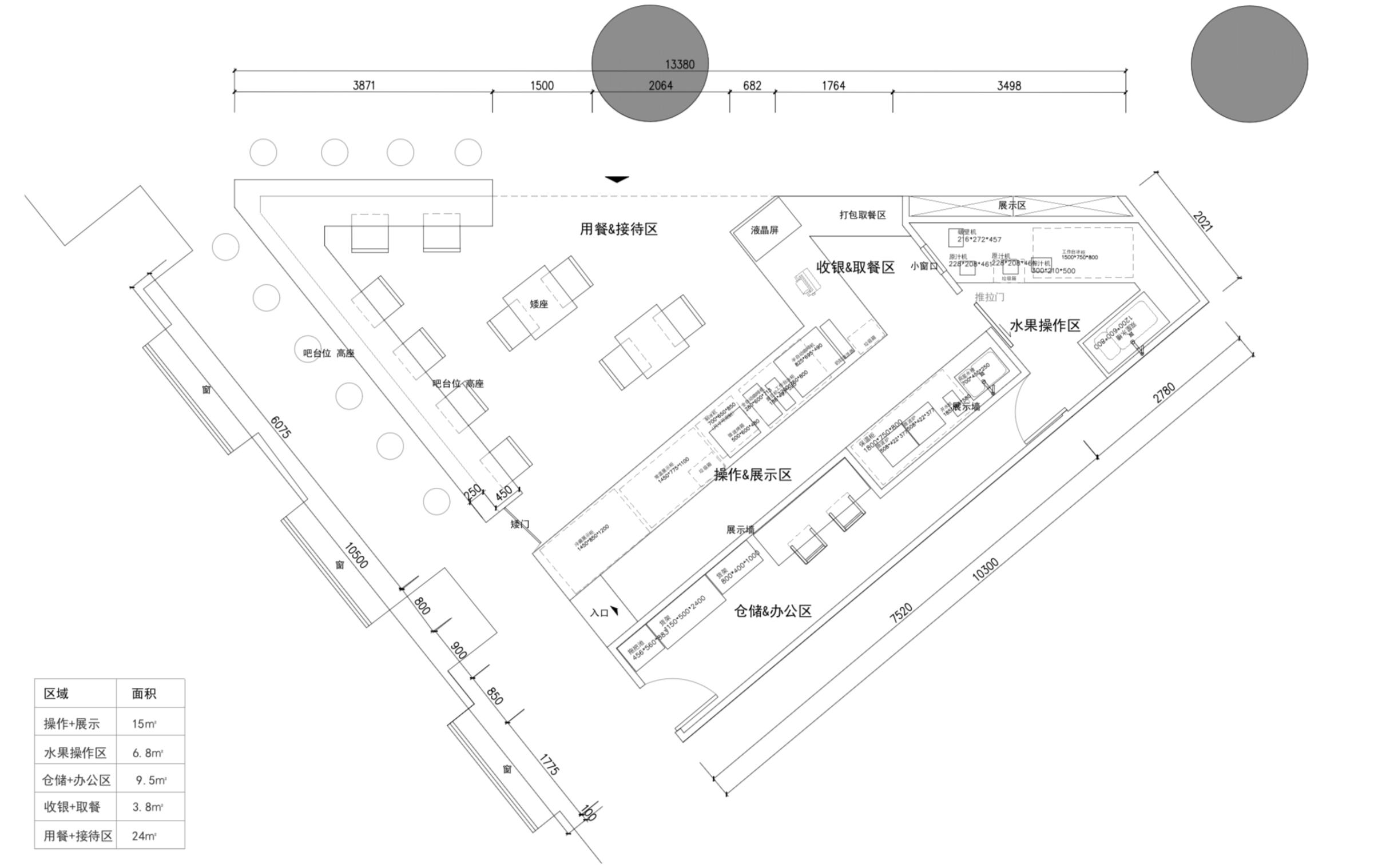
平面图

Caroful是一个主打健康、纯粹的餐饮品牌,主要面向人群是都市白领,营造绿色、轻松的生活蓝图。品牌在渣打银行大厦的项目,设计上运用几何形态,多元色彩营造开放式的空间感,将建筑与周边环境更加融合一起,用轻薄的特殊材料呈现屋顶建筑的几何线条,引阳光入“户”,增加整体的通透性,加上温润明快色彩组合,让品牌的温暖和谐在现代化的办公楼里,成为一道别样的风景,让人驻足停留。
设计概念
DESIGN CONCEPT

前期设计师需要挑战的是现场场地三角形状(空间利用率不高),再来,要走出大厦觅得一处好地方用餐,还是需要一定的行走时间。所以,如何在办公大厦里,能吸引眼球让上班族愿意驻足,这会是设计师最主要掌握的设计目的。最后,需连接品牌的DNA(果汁,轻食),通过水果形状提取设计几何元素,将其延伸为建筑,装置艺术,家具,材料做到整体风格本质纯粹,单一焦点。

水果形状➖几何元素
空间分析
STRUCTURE

模型分析





项目场地的局限性可利用空间不大,可供设计的场地是一个三角形的空间,设计师充分利用了初始的挑高场地以及与户外通透的窗户条件,架起了一个折叠感的屋顶,屋顶有大大小小的三角形切面,让整体效果从上下左右各个视角看,都是灵动具有设计感的,也新颖地拓展了室内店铺的建筑空间感。为了提升整个店铺的采光效果,设计师在向阳的方向,做了折叠窗的设计,放佛像巴黎左岸的私宅阳台风光,充满阳光点点的温暖味道。
开放式外立面
OPENABLE FACADE


因为入口有一根柱子完全遮挡了店铺正门,为了能够解决这个问题,在灯光设计和门头进行了深入的灯光研究反复推敲最适合的照明方案,怎么让藏在柱子后面的店铺被点亮。开放式的外立面让本来狭小的空间看起来更加的开阔,两侧的吧台可以内外坐下,与人的交流提高空间的高效利用,同时也想要营造户外的这种气氛。
展示艺术
DESIPLAY ART




在对外展示上,加入了精品橱窗的概念,利用品牌产品做了精致且有趣的红萝卜艺术装置。在色彩的选择上,设计师选用了品牌标志果蔬的健康颜色,室内背景墙通过渐变色打造有层次感的颜色,运用到墙面图案和装置上,让健康、纯粹的果蔬生活,通过色彩的运用,传递到用户眼中,留下鲜明的视觉印象,同时,符合品牌传递的理念与风格。
光与影
LIGHT AND SHADOW


希望将自然光引入室内,通过屋顶冲孔板洒落下来的光形成网状映射在地面上,墙壁上,桌面上,这是我们最初衷想要呈现的景色,自然光总是会带给我们治愈的感觉,即使在烈日夏天也不会感觉到炙热,因为这里是室内,这些光只会让我们感受到室内建筑中的光影,而不会带来刺眼的光。
夜景
NIGHT



到了晚上,当周围灯光都暗下来的时候,就像是一个温馨的空间,让匆忙的上班族,在回家前也能先感受到家的温暖,照亮回家的路。
感谢为此项目共同努力的所有人!