前言:四列圆柱滚子轴承是20世纪80年代初期就开发出的,轧钢机辊系专用的轧机轴承,其具备加工精度高、极限转速高、承载能力强、占用空间小的几大特点,一致备受轧钢机设计者的青睐,发展至今仍是轧钢机支撑辊辊系轴承的不二之选,但随着轧钢工艺的不断提升,尤其是向着高速重载的方向发展,故对四列圆柱滚子轴承的综合性能要求急速提升。如材质:要求渗碳钢,精度要求不低于p5级。
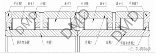
轴承类型:特大型四列圆柱滚子轴承
小结问题:滚动体破损开裂

分析小结:
支撑辊轴承滚动体材料为渗碳钢材质,此材料适宜在高速度重载荷的特大型轴承制造时选用(如轧钢机支撑辊轴承),此钢特点是表面淬硬钢,表面洛氏硬度为HRC60-63,芯部硬度为HRC33-48,外硬里柔,可同时兼具耐磨和耐冲击的特性,自身特性决定了其损坏特点一般为局部表层及次表层的疲劳脱落多为细小的颗粒或鱼鳞状形态。
上图中的整体开裂损坏形态比较少见,依据材料特性分析该滚动体损坏的原因主要有以下2点:
①表层裂纹
排除滚动体在粗磨及精磨过程中的磨削烧伤(通过磨削工艺控制及检查探伤可以杜绝)的前提下,滚动体磨损产生表层裂纹的现像主要如下几处:

图1
a、平挡圈及中挡圈以及外圈滚道非活动挡圈与滚动体端面,运转过程中滚动体做360度旋转,外圈及各挡圈静止,当滚动体出入轴承载荷区时,处于受力与非受力状态相互转变的过程时端面与各挡圈的端面滑动摩擦最为严重,是致使表层裂纹的一大因素。

图2
b、保持架支柱表面与滚动体中心孔壁的磨损,轴承在运转顺序为;内圈带动滚动体旋转,滚动体再推动保持架旋转,过程中保持架为被动运转,且保持架的支柱与滚动体中心孔壁为滑动摩擦,尤其再启停及转速变化时保持架的支柱与滚动体中心孔壁的滑动摩擦及撞击最为严重,是致使滚动体内孔壁裂纹的一大因素。

图3
改善措施:
a、现场方面:安装时,支撑辊主轴承的轴向游隙务必控制好,保障轴承安装后主压盖与轴承端面处于贴合状态,间隙<0.05mm,每次安装时和调换负荷区时都要测量压盖与轴承边挡圈的间隙,避免出现因调整垫片弹性失效,以及轴承的宽度公差不同而导致实际使用时,轴向游隙偏大加剧了上述滚动体端面与各挡圈端面的磨损,同理也加剧了保持架支柱表面与滚动体中心孔壁的磨损。
b、轴承方面,滚动体与各挡圈摩擦隐患,最大限度缩小外圈滚道与滚动体的间隙配合,消除滚动体因与挡边配合间隙过大,诱发滚动体打摆倾向;保持架支柱表面与滚动体中心孔壁摩擦隐患,严格控制支柱表面粗糙度、硬度,滚动体中心孔壁降低粗糙度缩小与支柱的配合间隙h。
②材料非金属夹杂
原材料的非金属夹杂物超标及有害物S(硫) P(磷) o(氧)的含量高,导致材料稳定性差、热处理产生缺陷,是导致滚动体整体开裂的另一个因素之一。
对此,在轴承制造选用国产材质时,应最低选用*级A**品,即G20Cr2Ni4A,不建议选用非*级A**品G20Cr2Ni4。
DMD在材料选择方面尤为严格,为保证轴承的内在质量能够满足轧机重要部位的需要,从根本上解决轴承的可靠性和寿命问题,对大型特大型轧机轴承渗碳钢采用国内知名钢厂(东北特钢、湖北大冶、西宁特钢等)*级A**品或美国铁姆肯公司(TIMKEN)3311标准的渗碳轴承钢来制造套圈和滚动体。
Timken3311材料在质量上优于国产优质渗碳钢,主要表现在有害物的含量上如:氧.磷.硫等远优于我国现行的国家标准和实际国产渗碳钢,见下图元素含量对比。
国产数据

TIMKEN数据

DMD积累了十多年的特大型轧机轴承应用经验,智造经验,并依托多年的特大型进口轴承修复经验,通过对FAG、Timken、KOYO等国外厂家轴承的产品数据分析,结合现场应用总结了独有的轴承零件公差配合方法,根据每个客户现场工况,优化数据,量身定制,始终秉承“更耐用的轧机轴承”品牌战略,持续打造更耐用的“DMD”牌轧机轴承!