一、铝合金模板施工准备
1、 铝合金模板板进场,项目部策划有关技术人员进行施工技术交底,使班组工长熟悉铝合金模板施工工艺及铝合金模板厂家的编号规律。
2、 穿墙螺杆、各种连接螺栓要入库保存,以防生锈,斜支撑的调节丝杆、穿墙螺栓要涂抹润滑油。
3、 准备好铝合金模板板专用的脱模剂,PVR套管等辅助材料。
4、 准备好锤子、小撬棍、打眼电钻、活动扳手、切割机、电线、撬棍、手拉葫芦、登高梯、红外线水平仪等施工工具。
二、铝合金模板施工工艺
铝合金模板体系根据工程建施及结施图纸,经定型化设计及工业化加工定制完成所需的标准尺寸模板构件及与实际工程配套使用的非标准构件。
模板之间利用销钉连接,采用钢、铝型材背楞和对拉螺杆加固,采用φ48mm普通钢管可调支撑。
模板体系设计完成后,首先按设计图纸在工厂完成预拼装,满足工程要求后,对所有的模板构件分区、分单元分类作相应标记。
然后打包转运到施工现场分类进行堆放。现场模板材料就位后,按模板编号“对号入座”分别安装。安装就位后,利用可调斜撑调整模板的垂直度、竖向可调支撑调整模板的水平标高;利用穿墙对拉螺杆及背楞保证模板体系的刚度及整体稳定性。
在混凝土强度达到拆模规定的强度后,保留竖向支撑,按先后顺序对墙模板、梁侧模板及楼面模板进行拆除,迅速进入下一层的循环施工。
三、铝合金模板施工流程
测量放线——墙柱钢筋绑扎(墙柱水电施工)——墙模板安装——梁模板安装——楼板安装——模板验收——梁板钢筋绑扎(墙柱水电施工)——钢筋验收——浇筑混凝土——拆模——转运至上一层
四、铝合金模板测量放线要求
1、墙线控制线的测量放线
墙线控制线的测设,要求墙线墨线需超出剪力墙墙边200mm以上,以便于模板安装后调整位置。控制线允许偏差≤2mm,如图1。

2、1000mm标高线及板厚控制线的测设要求
a、下层混凝土浇筑完毕后,须及时将1m标高线需在每道剪力墙钢筋上标识出,每道剪力墙角边钢筋均需给出标高点,墙体长度超过3米须在墙中部钢筋添加一个标高点,每个标高点间距为1.5m~2m,以便于楼板厚度的检查控制,如图2。

b、板厚控制线需按楼层标高在钢筋上做出标识,标识须控制在低于楼面板下5mm处,剪力墙每面要求测放三个及三个以上楼面标高点,墙体长度超过3米须在墙中部钢筋添加一个标高点,每个标高点间距为1.5m~2m,在控制点处焊接板厚控制钢筋,板厚控制钢筋横向距离小于等于800mm,并在控制钢筋上拉φ3铁线控制混凝土楼面预浇筑距离,浇混凝土以覆盖铁线为准,楼面厚度误差要求控制在-5mm内,如图3。

五、墙厚定位钢筋的安装要求
待楼面混凝土浇筑完成后,在距楼面板50~100MM钢筋处焊接墙厚定位钢筋,定位钢筋横向间距为800mm。定位钢筋长度根据墙厚确定,其焊接按照弹出的墙线确定,钢筋与墙线控制线偏差应小于2mm,以保证模板安装时剪力墙下部的墙体厚度,如图4、图5。

如图4剪力墙定位钢筋布置图

如图5定位钢筋横截面图
六、铝合金模板设计
1、剪力墙模板
剪力墙模板采用组合全铝合金模板,模板定型化、模数化,模板左右、上下、纵横之间均可组合拼装,模板的通用性好、互换性好,可供各种建筑平面形状的大模板工程使用。组合铝合金模板周转使用次数达200~250次以上,模板每次的摊销费用小,经济效益明显。
模板之间用快速锁销连接,如图7,使用穿墙螺栓Tr17,背楞用两条60X30Xδ2.5矩形钢管焊接而成,背楞有直背楞,直角背楞两种,和非标背楞(根据剪力墙截面专门设计订做的背楞),如图8。

图7 快速锁销连接示意图

图8 背楞
剪力墙墙身主拼模板宽是400mm,用400mm宽开孔拉穿墙螺杆模板,补充模板宽有:350mm、300mm、250mm、200mm、150mm、100mm、50mm,配模时优先使用400mm宽标准模板,嵌补模板选用按从大到小的原则。
400mm开孔模板与400 mm模板交替安装,开孔模板上安装穿墙螺栓,并且水平安装背楞,穿墙螺栓之间的距离600~800mm,不得大于800mm。L形剪力墙内墙安装直角背楞如图8、两条背楞对接如图9-1所示。


剪力墙铝合金模板配模图

图9-1 背楞对接示意图
外墙面和电梯井配置模板时,上部水平配置200 mm开孔模板,水平模板与楼面平,并在K板开孔处用M16X100螺栓安装M16螺母,水平模板长度与外墙长度一致。
利用穿墙螺栓安装外墙模板支撑,K板伸入下层不少于200mm能够保证上下模板交接处平整不错台,如图11。
拆除这层模板时不用拆除这个水平放置K板模板,它做为安装上层模板时的支撑。

图11 外墙上层与下层模板交接安装示意图
墙体厚度控制:在两模板之间对拉螺栓上安装定位穿墙管,定位穿墙管由定位胶塞和PVC管组成,墙体厚度控制准确,如图13。

图13 墙体厚度控制方法
外墙体垂直度控制:为了准确、方便调整墙体垂直度,在墙体模板一侧安装斜支撑,在一侧安装2支以上斜支撑,斜支撑间距不大于2000mm,墙柱根部加装压角木条。防止调整柱位移动,而且可防止柱根部漏浆,如图14,楼面板浇注时必须预留斜支撑安装孔。


图14 墙体垂直度控制
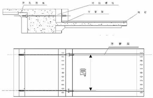
2、梁模板
梁底、梁侧模板采用全铝合金模板,梁侧模板与梁底模板以连接角模连接,主次梁侧模以铝阴角连接,梁侧模板与楼面模板以铝阴角连接,如图17。

图17 梁模板的组成
在梁底模板设置梁底早拆模板,在梁底早拆模板下安装独立钢支撑,支撑间距最大不超过1.3米,如图18。

图18梁底早拆头布置示意图
当外侧梁没有楼面时,梁侧模板配到与楼面平,斜支撑安装在梁底早拆头上,以此防止胀模及校订侧模垂直度和平直度,如图19。

图19 梁侧模板斜支撑安装
当梁两侧都没有楼面时,在梁侧模板上部用对拉板连接,对拉板间距不大于1.3米,如图20。

图20 对拉板连接
3、楼面模板
采用全铝合金,模板重量轻,拼接操作灵活方便,表面质量好,配用早拆支撑系统可提高模板的周转效率,使用独立钢支撑,支撑间距为1100mm~1200mm,如图21。

图21 楼面铝合金模板图

图22 楼面模板配模

图23 楼面支撑方案
4、沉箱模板
基本体系:支撑水泥垫块+定型铝合金模板+拉杆,支模要求如图24所示:
(1)支撑水泥垫块,高度按现场所浇混凝土板的厚度进控制,间距控制≤1m。
(2)沉箱采用铝合金模板,四周采用铝合金阴角模,边长大于1.5m以上的中间用拉杆进行加固,防止中间变型,沉箱周边进行拉杆固定,拉杆分沉降下部角铁拉杆和上部角铁拉杆,如沉降80的只采用上部角铁拉杆。

图24 沉箱100模板支固方案
5、飘台模板
当墙面有上下两飘台时,下飘台与墙体一起浇注,支模如图25所示。
(1)支撑水泥垫块,高度按现场所浇混凝土板的厚度进控制,间距控制≤1m。
(2)飘台上方吊模用方管连接。
(3)在吊模对面阴角上开孔,装穿墙螺杆加固,一端模板开孔。
(4)墙体厚度控制则在两模板之间装定位胶管。
(5)吊模下边用拉杆与飘台端部模板连接。

图25 上飘台模板加固方案
6、下飘板支固配模方案,如图26

图26 下飘板支固配模方案
7、预留孔及管道的预留方法
(1)先做钢框,其大小同留孔尺寸,厚度为内外两模板之间间距,在留孔部位,铁箱内部有2销钉孔,与楼面板连接。
(2)固定在模板上的预留件和预留孔洞均不得遗漏,安装必须牢固,位置准确,其允许偏差,应符合要求,如图27。
(3)传料口:为方便模板上下转运材料,根据楼层面积特设传料口,传料口尺寸200X800加固方案,如图28。


图27 控制孔方案


图28 传料口方案
8、梁板支撑系统
本系统是独立式钢支撑,只用可伸缩微调的单支顶来支撑,是一种技术经济效果明显的早拆支撑系统,主要用于建筑物水平结构作垂直支撑,承受梁板结构自重和施工荷栽。
钢支撑系统的特点
(1)该系统是真正意义上能够实现早拆的支撑系统,当混凝土达到拆模强度时,除单支顶和早拆头外,其余均可拆除,既保证上层结构连续施工又能加速模板周转使用,可以大量节省模板一次投入量,减少模板配置量的1/3~1/2,如图31。
(2)应用范围广,支撑杆不受固定平面尺寸的约束,因此对于不规则建筑平面应用自如,支撑杆间距、纵横梁间距可根据梁板荷载及时调整,不受连接杆件约束,比碗扣架应用方便。
(3)同样支模面积条件下,本系统比碗扣架、钢管扣件架耗钢量少得多,仅为碗扣架或钢管架的30﹪,因此塔吊的垂直运输量少。
(4)支模现场的支撑杆相对少,因而人员通行、材料搬运畅通,现场施工文明。
(5)支模速度快。以塔式住宅楼为例,每层600~800㎡支模面积仅需半天时间,仅为其它支撑系统二分之一至三分之一的时间。
(6)铝合金模板、钢支撑拆除后,集中到卸料平台上或传料口处,由塔吊垂直运输,也可由人工从楼梯间传料口转运,受机械制约少,有一定灵活性。

如图31 楼面、梁模板实际早拆效果
楼层高度为3.0米,直接用单支顶支撑,如图32。


图32 直接用单支顶支撑
七、铝合金模板质量标准
模板制作允许偏差如下表所示:
铝合金模板生产制作完成在工厂进行试拼装,由业主/设计院/监理到厂内预验收,模板成品按下表进行出厂前的检验:
模板制作允许偏差如下表所示:

八、铝合金模板的拆除施工方法
1、拆除条件
《混凝土工程施工质量验收规范》GB50204-2015中关于底模拆除时的混凝土强度必须符合下表要求:

在铝合金模板早拆体系中,当混凝土浇筑完成后强度达到设计强度的50%后即可拆除顶模,只留下支撑杆。支撑杆的拆除根据留置的拆模试块来确定拆除时间。
2、 拆除过程
(1)拆除墙柱侧模:
当混凝土强度达到1.2Mpa,即可拆除侧模,一般情况下混凝土浇筑完12小时后可以拆除墙柱侧摸。先拆除斜支撑,后松动、拆除穿墙螺栓;拆除穿墙螺栓时,用扳手松动螺母,取下垫片,除下威令,轻击螺栓一端,至螺栓退出混凝土。
再拆除铝合金模板连接的销子和楔子,用撬棍撬动模板下口,使模板和墙体脱离。
拆下的模板和配件及时清理,并通过上料口搬运至上层结构。模板拆除时注意防止损伤结构的棱角部位。
(2)拆除顶模:
根据铝合金模板的早拆体系,当混凝土浇筑完成后强度达到设计强度的50%后方可拆除顶模,一般情况下48个小时以后可以拆除顶模。顶模拆除先从梁、板支撑杆连接的位置开始,拆除梁、板支撑杆132mm销子和与其相连的连接件。
紧跟着拆除与其相邻梁、板的销子和楔子。然后可以拆除铝合金模板板。每一列的第一块铝合金模板被搁在墙顶边模支撑口上时,要先拆除邻近铝合金模板,然后从需要拆除的铝合金模板上拆除销子和楔子,利用拔模具把相邻铝合金模板分离开来。
拆除顶模时确保支撑杆保持原样,不得松动。
(3)拆除支撑杆:
支撑杆的拆除应符合《混凝土工程施工质量验收规范》GB50204-2002关于底模拆除时的混凝土强度要求,根据留置的拆模试块来确定支撑杆的拆除时间,一般情况下,十天后拆除板底支撑,十四天后拆除梁底支撑,二十八天后拆除悬臂底支撑。
拆除每个支撑杆时,用一只手抓住支撑杆另一只手用锤松动方向锤击可调节支点,即可拆除支撑杆。
3、 铝合金模板拆除应注意的事项
(1)拆除前应架设工作平台以保证安全,至少要两人协同工作。
(2)顶模的拆除必须等混凝土强度达到早拆条件,拆除顶模时须逐渐传递下来,切不可把销子和楔子全部取下,再拆除一整面铝板。
(3)拆除铝合金模板时切不可松动,和碰撞支撑杆。
(4)拆模过程中如发现混凝土有粘膜等现象,要暂停拆除,上报项目部由技术科研究处理后方可继续施工。
(5)拆下的铝板应立即用刮刀铲除铝板上污物,并及时刷涂脱模剂。
(6)施工过程中弯曲变形的铝合金模板板应及时运到加工场进行校订。
(7)拆下的配件要及时清理、清点,转移至相应的操作层内。
(8)拆下的铝合金模板通过预留传递孔或楼板空洞传运至上层;零散的配件通过楼梯搬运。
来源:豆丁施工、网络,综合整顿
版权归原作者所有,如有侵权请联系删除,我们会在第一时间处理

关于中研建科
北京中研建科科技产业发展有限公司(以下简称:中研建科),隶属于中建政研集团,是一家集新型建筑科技产品研发、生产和销售为一体的科技型平台企业。以国家政策和行业发展趋势为导向,汇聚行业优质资源和领先科技,整合中建政研集团千余家会员单位及各上下游资源,聚焦新型建筑材料、设备,坚持“新产品、新技术、新工艺、新模式”的经营理念,为各采购单位提供专业的联合采购服务,提供具备高质量、低成本、绿色环保、操作便捷的优质产品,致力于打造全国首家新型建筑科技产品综合服务平台。
中研建科联合各级主管部门、行业策划、建设单位、建筑企业、产业相关供应商、科研院校、金融机构、以及行业媒体等相关单位,已建立“中研建科联合采购单位库”“中建政研优质项目库”、“百家优质供应商联盟”、“新型建筑科技产品研究院”,发起并主办“绿色建筑科技高峰论坛”、“中国建筑劳务100强企业评选”等大型行业活动;形成了:“项目对接+联合采购 +供应链金融”的线上线下联动的经营模式,为客户提供一站式解决方案。
中研建科清水模版体系:可钉可刨可锯,施工方便,拆模后无需二次抹灰,大大缩短工期、节省人工。平整度高、质量稳定、不翘曲变形,周转次数高,适合用在剪力墙,混凝土成型效果漂亮,完全无需二次抹灰,省钱省人工
发送图纸免费测算模板用料:图纸接收邮箱[email protected].或加微信:fengsq-l、详询电联010-58937677