大城市的房价无疑是高昂的,用“寸土寸金”来形容毫不夸张,或许你会认为,能在一线城市安家已是不易,没必要多再花钱花精力在装修上,加之工作压力大、生活节奏快,即使装修得好看,又有多少闲情雅致去欣赏呢?然而今天德立淋浴房带来了一个不同的答案。
于小姐年轻有为,身为90后的她,不到三十岁便在大城市独立买下了一套新房,然而在“商业精英”“气质美女”的称谓背后,她更希望能保持能遵循自己的内心,新房装修不要太标签化,而是要彰显新时代独立女性的特点。
卫生间装修时,于小姐选中了德立淋浴房,同时,也通过德立美学体验店结识了一名设计师,两人充分沟通商议过后 ,于小姐将自己的卫生间装修全部交给了该设计师,首先要保证该有的功能都有,同时也要兼顾个性化,让美观性与实用性的相互平衡。
设计档案
客户:于小姐
卫生间面积:约5.5㎡
要求:风格独立,功能齐全

设计思路
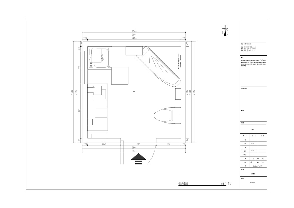
(1)户型分析。该卫生间是客厅主卫,内部空间基本呈正方形,卫生间门正立中央,窗户开在左侧靠背墙位置,应于小姐的要求,卫生间不仅要放置洗衣机,同时,还要安装浴室柜、梳妆镜、马桶等,当然最重要的就是淋浴房。

(2)位置选择。为了最大化利用空间,降低使用阻碍,初步拟定四大浴具分置四个角落,淋浴房安装于右上角,洗衣机安装于左上角,避免挡住窗户;浴室柜兼顾洗漱台功能,安装在离门最近的左下角,而马桶安装于右下角。
效果呈现
在该案中,设计师选择了德立淋浴房SA2,并采用更节省空间的钻石型款式,SA2具有时下最热门的极窄边框,外观时尚潮流,并通过通透的夹胶玻璃来大量留白,采光度好,提升室内亮度,给淋浴房空间带来清爽和洁净。

设计师别出心裁地将背景墙瓷砖换成石蕊红,搭配SA2的高颜值更加体现出低调雅致;淋浴房落定后,其他浴具的摆放位置便有了参考,设计师在旁边配置了浴巾挂钩,而简易置物架则放置在淋浴房和洗衣机之间,方便取用。

由于该卫生间户型较小,因此活动空间也有限,但SA2的广角合页可以实现155°大角度开门,开门角度比传统淋浴房提高30%,更大的开门空间,既可以最大化降低门的存在感,又可以最大化提升空间利用率,优化使用体验。

精致,是一种生活的态度。SA2的设计和工艺全面追求卓越,全304不锈钢、雅黑色工艺、榫卯防下坠合页、内置加厚型材及反刺安全胶条等等,都十分符合新时代独立女性的需求和审美,极简于外,求精与内。




客户评价
于小姐
安装淋浴房是必不可少的,因为它让洗澡这件小事也充满了仪式感,卫生间布局规整立体,浅粉色(石蕊红)的背景墙也深得我意,低调又不张扬,使我在繁忙的工作之余,体会到一丝丝青春的活力,这大概就是不忘初心的感觉吧。
设计师
淋浴房是一个独立洗浴空间,独立、自由或许是新时代女性的向往,但在坚强的背后,许多女性朋友往往还保有着一颗少女心,我通过设计的手法,将这种理念悄然融入卫生间的装修中,以淋浴房为核心,外修颜值,内敛气质,提升生活品质。