
▲ 点击“火柴设计联盟”,关注设计互动平台 每天更新,喜欢的可以点赞关注转发哦!
滑到文章底部获取免费资料
《法国Naco》┆『Mercato莫卡多露台餐厅与酒吧』设计方案JPG+PDF┃效果图JPG┃设计施工图DWG+PDF┃官方摄影JPG┃物料详解PDF┃3D MAX SU模型┃1.09G〖火柴设计联盟〗第2080期
▼ - 部分作品阅览 -
1.项目概况
在上海和香港大受欢迎的人气意大利餐厅MERCATO莫卡多近日于广州新地标K11购物艺术中心正式亮相,并于20日举行开业派对,吸引众多羊城饕客。
作为一个分享式意式餐厅,“Mercato”在意大利文中意为“集市”,所以餐厅也像这个名字一样,以最新鲜的食材创造美味,让宾客们在轻松亲切的环境中分享美食。






2.资料截图

3.官方摄影














4.概念及效果图























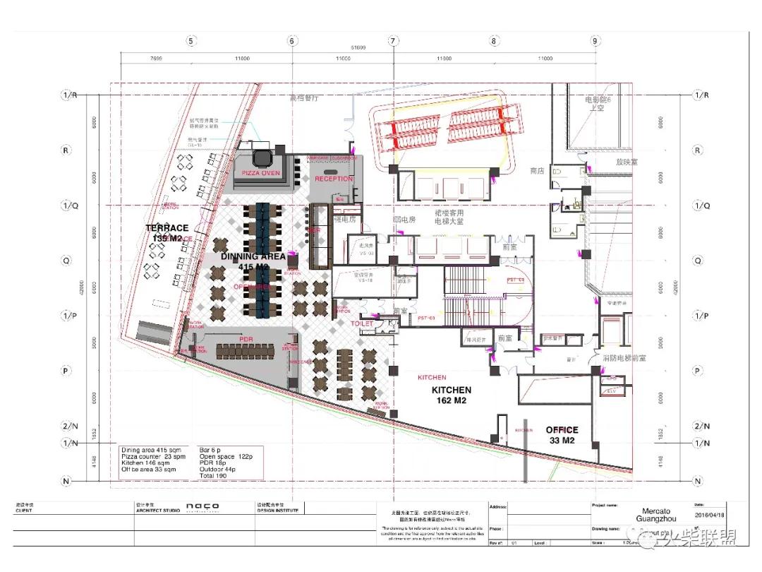
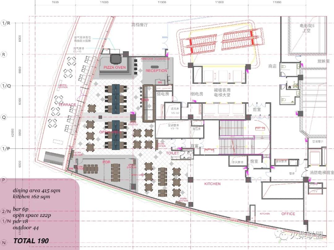
5.施工图样图











据悉,广州Mercato莫卡多延续了Mercato品牌“农场时尚”的设计精神与“从农场至餐桌”的菜品概念,将最好的意大利原材料与最新鲜的时令食材结合在一起,为广东饕客带来一种与众不同并自然富有活力的用餐体验。
【作品名称】:『Mercato莫卡多露台餐厅与酒吧』
【作品内容】:设计方案JPG+PDF┃效果图JPG┃设计施工图DWG+PDF┃官方摄影JPG┃物料详解PDF┃3D MAX SU模型
【文件格式】:DWG,PDF,JPG,PPT,SU
【资料大小】:1.09G
【免费获取方式】
关注转发加评论后私信“2080” 即可获取此套完整版资料
免责声明:
以上图片及资料内容来源于网络,由我方整顿,版权归原作者及其公司所有;
本资料仅供学习研究之用,不得用作于商业用途,若此图库侵犯到您的权益,请与我们联系删除;
本文章版权归本头条号所有,未经同意不得随意转载 ,若恶意侵权将追究其法律责任