
点击后方链接免费*载下**本文word文件
电脑端「链接」手机端「链接」
1.施工方案
1.1.材料选择
1.1.1.箱梁支撑体系的选择
本工程支撑高度5.0~7.0渐变,其中翼缘板支架最高为7米,梁腹根部最低为5米,箱梁形式为一箱7室,经项目总工办研究及考察,计划采用φ60承插型盘扣式立杆支撑架进行现浇箱梁的施工,其具有以下特点:
1、采用低合金高强度钢,承载能力高,考虑安全系数,单肢立杆φ60设计承载力可达40KN以上。
2、竖向拉杆,水平拉杆和斜拉杆使支撑架具有了很好的稳定性。材料用量少,安装快捷、简便,效率高。
3、热镀锌防腐处理,坚固耐用,周转次数高,节约成本。
A、材质规格:根据建筑施工承插型盘扣式钢管支架安全技术规程JGJ231-2010要求,选配60型重型支撑盘扣脚手架。承插型盘扣式支撑架的立杆采用直径φ60,壁厚为3.2mm的Q345B钢;横杆采用管径为φ48mm,管壁厚为2.5mm的Q345B钢;斜拉杆件采用管径为φ42mm,管壁厚为2.75mm的Q235钢,均经过热镀锌处理。

承插型盘扣式脚手架构造图

附盘扣脚手架构造实体图片
B、盘扣式立杆规格:直径是60mm,标准节立杆和圆盘之间距离500mm,安装搭配调整节,具体常用的规格有0.2m,0.35m,0.5m,1m,1.5m,2m,2.5m,3m。
C、盘扣式脚手架水平杆规格:型号规格模数为300mm,600mm,900mm,1200mm,1500mm,1800mm,2400mm,3000mm。
D、竖向斜杆规格:600*1500mm,900*1500mm,1200*1500mm,1500*1500mm,1800*1500mm,2000*1500mm,3000*1500mm配合使用。

承插型盘扣式脚手架搭设实体图
1.1.2.脚手架钢管材料要求
1、搭设脚手架的钢管应采用现行国家标准《直缝电焊钢管》GB/T13793或《低压流体输送用焊接钢管》GB/T3092中规定的3号普通钢管,其质量符合现行国家标准《碳素结构钢》GB/T700-2006中Q235A钢的规定,每根钢管的最大质量不应大于25kg。新用的钢管表面应平直光滑,不应有裂缝、结疤、分层、错位、硬弯、毛刺、压痕和深的划道,钢管要有产品质量合格证、质量检验报告,钢管材质检验方法应符合现行国家标准《金属拉伸试验方法》GB/T228的有关规定,质量和钢管外径、壁厚、端面等的偏差应符合《建筑施工扣件式钢管脚手架安全技术规范》JGJ130-2011的有关规定,必须涂有防锈漆。旧钢管表面锈蚀深度、和钢管的弯曲变形应符合《建筑施工扣件式钢管脚手架安全技术规范》JGJ130-2011的有关规定。锈蚀检查应每年一次。检查时,应在锈蚀严重的钢管中抽取3根,在每根锈蚀严重部位横向截断取样检查,当锈蚀深度超过规定值时不得使用。钢管上严禁打孔。
2、扣件为可锻铸造扣件,其材质应符合建设部《钢管脚手架扣件》GB15831的要求,由有扣件生产许可证的生产厂家提供,不得有裂纹、气孔、缩松、砂眼等锻造缺陷,扣件的规格应与钢管相匹配,贴和面应平整,活动部位灵活,夹紧钢管时开口处最小距离不小于5mm。钢管螺栓拧紧扭力矩达65N·m时不得破坏。旧扣件在使用前应进行质量检查,有裂缝、变形的严禁使用,出现滑丝的螺栓必须更换。新、旧扣件均应进行防锈处理。
3、搭设架子前应进行保养,除锈并统一涂色,力求环保美观。
4、脚手板、脚手片采用符合有关要求。
5、安全网采用密目式安全网,网目应满足2000目/100cm²,做耐贯串试验不穿透,1.6×1.8m的单张网重量在3kg以上,颜色应满足环境效果要求,选用绿色。要求阻燃,使用的安全网必须有产品生产许可证和质量合格证,以及由相关建筑安全监督管理部门发放的准用证。
6、水平加固杆、封口杆、扫地杆、剪刀撑及脚手架转角处的连接杆等宜采用φ42×2.5mm焊接钢管,也可采用φ48×3.5mm焊接钢管,其材质在保证可焊性的条件下应符合现行国家标准《碳素结构钢》GB/T700-2006中Q235A钢的规定,相应的扣件规格也应分别为φ42mm、φ48mm或φ42mm/φ48mm。
【扣件式脚手架】
主要材料参数表

1.2.支架施工流程
现浇梁施工采用就地搭设满堂支架,分段绑扎钢筋,分段、分层浇注混凝土的方法,其施工工艺流程如下:
地基处理→支架放样→搭设支架→安装底模和支座→全孔预压→调整底模标高→安装外侧模→绑扎钢筋(底、腹板、横梁)→安装内侧模→绑扎顶板钢筋→浇注底、腹板和横梁→浇注顶板混凝土→养护→拆除模板和支架。
(钢筋制安、砼施工工艺流程在本专项方案不叙述)
1.2.1.地基处理
(1)场地平整
用挖掘机和推土机对原地面进行整平、压实,压实度应达到要求,地基承载力在200kpa以上,且无软弱下卧层。地基的处理范围每侧至少宽出搭设支架轴线之外1.0m。同时,为便于施工,同一跨内的标高尽量与永久路线设计标高一致。
(2)防积水措施
为防止下雨积水导致地基浸泡,导致地基承载力降低,产生地面不均匀沉降,对梁施工质量导致影响,在支架顺桥向两侧设排水沟,以便将雨水及时排除,如逢下雨安排专人负责排除积水。

过水圆管涵示意图
(3)支架基础
支架基础根据箱梁梁体自重、架体自重、施工荷载等进行整体支架体系、支架基础进行设计,确定支架基础承载力要求。根据桥位处地质勘察资料,进行支架基础施工。地基处理施工前应清除表土,下基层换填合格土,上基层加强30cm砂砾石,以满足支架设计要求地基承载力。支架底层施作200mm的C25混凝土垫层,支架底部支垫宽200mm、厚50mm的脚手板,不能直接支撑在地面上。
架体施工前需将地表不坚实处清理干净以保证架体的稳定性。基础填筑按1:1.5放坡,平场基础顶距离外排脚手架基础距离≥10m;砼基础距外排脚手架≥1.0m。在自检的基础上,策划各方对地基承载力等进行验收,验收合格后方可进行下一步施工。

xx沟桥支架搭设基础结构断面图
1.2.2.支架放样
设置边跨+中跨+边跨三段,测量沿纵桥中轴线每跨放边轴线4角点。再根据支架轴向点位,按支架纵距、横距弹线布点,再铺木跳板搭设。
1.2.3.搭设支架
采用支架现浇,支架的搭设采用满堂落地式盘扣支架。
1、在地基处理好后,按照施工图纸进行放线,见立柱平面布置图;

1/2支架平面布置示意图

连续梁满堂支架法纵断面平面布置示意图

连续梁满堂支架法横断面示意图

桥台部位支撑加固横断面示意图

支架剪刀撑搭设跨距
2、立柱需接长时,支架首层立柱应采用不同的长度交错布置,底层纵、横向横杆作为扫地杆距地面高度应小于等于350mm,立柱应配置可调底座或固定支座见下图:

首层立柱布置示意
3、通过可调底座初步控制支架底面标高,计算立杆长度。
4、测设顶托实际标高,并通过调整可调螺杆来调整支架标高。
5、立柱上端包括可调螺杆伸出顶层水平杆的长度不得大于0.2m。

立柱示意图
6、纵横支架布置与组装
支架搭设前根据梁底标高、模板、支撑梁、基础标高等计算各搭设断面处杆件高度,配置准确的支架架体单元。模板支架搭设根据立杆位置放置可调底座,按先立杆后水平杆再斜杆的顺序搭设,形成基本的架体单元,以此扩展搭设成整体支架体系。
0#、1#、2#、3#墩(台)支架设置表

7、盘式支架搭设横断面、纵断面详见下图,支架体系详细搭设步骤如下:
(1)根据各支点位置进行立杆搭设,立杆下方设置底座。

第一道水平杆安装图
(2)安装第一道立杆(长度3m),第二道立杆(长度2m),相邻立杆交错搭设。
(3)如下图位置,依步骤安装水平杆。
(4)安装第一层竖向斜杆
将竖向斜杆全部依顺时钟针或全部依逆时针方向组搭,如下图。将竖向斜杆套入圆盘大孔位置,使竖向斜杆头前端抵住立杆圆管,再以斜楔贯串大孔敲紧固定。竖向斜杆具有方向性,方向相反即无法搭接。
(5)如下图位置,依步骤安装水平杆。

安装示意图
(6)第二层竖向斜杆
如下图所示,依步骤4组搭方式,和第一层相同方向搭接第二层竖向斜杆。
若第一层为逆时钟方向组装,则第二层以上的竖向斜杆同样需以逆时钟方向组装。

第二层竖向斜杆示意图
(7)支架爬梯搭设示意图

支架爬梯搭设示意图
(8)剪刀撑、连接水平杆设置
1)1、3、5层设置水平剪刀撑;
2)全桥横向每层每跨设置水平连杆;
3)纵横向外围加设剪刀撑,斜杆与地面的倾角控制在45°~65°,跨度5-6m,斜杆应每步与立杆扣接。
剪刀撑按顶天立地搭设,斜杆应采用搭接接长,搭接长度不宜小于1000mm,搭接处应采用3个及以上旋转扣件扣紧。

剪刀撑搭设示意图

剪刀撑荷载失稳示意图
(9)顶托标高调整完毕,在其上安放纵梁(10#工字钢大梁),小横梁采用0.1*0.1*3.6m方木,两端分别悬挑20cm,以支撑外模支架。方木对接点位置设在立杆中线,不足模数采用定尺方木调配搭接,对接错缝同一断面不超过50%,错缝接头≥2跨。安装纵横梁时,同一断面应注意纵横梁接头错开,且在任何相邻两根纵横梁不在同一位置。
(10)支架顶部设置可调节顶托,且悬出长度满足规范要求≤20cm:
(11)梁腹内顶模支架搭设
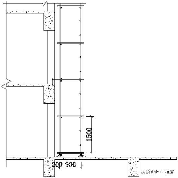
箱梁顶板采用支架¢48*3.2㎜扣件式钢架管搭设,设上顶托单头调节顶模水平、高程。纵横向立杆间距0.9*0.9m。设两道纵横向水平杆,第一道水平杆距底板≤35㎝。
(12)支架搭设验收
支架搭设完成之后,对支架进行检查。其检查水平剪刀撑的布置情况,是否按照规范要求搭设,支架连接点是否合格等。在自检合格的基础上,报监理验收后,方可进行下一步工序施工。
1.2.4.支架的预压
(1)为保证施工完毕后结构尺寸的准确,支架应预留施工预拱度。施工预拱度主要由以下几个因素确定:
①支架受施工荷载引起的弹性变形;
②受载后由于杆件按头的挤压和卸落设备压缩而产生的非弹性变形;
③支架基础在受载后的沉陷。
(2)支架安装要点
①支架立柱前必须保证地基有足够的承载力,立柱底端设垫木来分散和传递压力;
②支架安装必须预留施工预拱度。
支架预留拱度计算公式为:f=f1+f2+f3,例-f1:砼地基弹性变形测为2mm,f2:支架弹性变形,根据堆载预压测为f2=5mm;地基弹性模量及堆载支架变形以以实际观测数据为准。f3:梁体扰度预留拱度最大值设置在跨中位置,并按抛物线形式向两侧立柱位置分配,查公式L/1500算得各点处的预留拱度值后用支架顶托进行调整。以下计算为模拟演算:
36m中跨拱顶预留最大拱度:F1+f2+f3=2+5+36000/1500=31mm
22m中跨拱顶预留最大拱度:F1+f2+f3=2+5+22000/1500=21.7mm
(3)目的
①检查支架的安全性,确保施工安全。
②消除地基非弹性变形和支架非弹性变形的影响,有利于桥面线形控制。
(4)堆载
支架预压时因考虑到堆载的物品和施工过程中工人的操作误差等因素,则取1.2的不均匀系数,最大加载荷载为箱梁自重的120%,以消除支架和地基的非弹性变形。用编织袋装沙作预压材料,砂袋的堆积高度按梁体自重分布曲线图变化取值,从而使预压荷载的分布与梁体荷载的分布相吻合。在预压前必须进行整体支架检查和验收,并对临时荷载的重量进行检验。
预压时,根据箱梁的结构型式计算箱梁的重量,用钢筋+沙袋按上部砼重量分布情况进行布载,加载重量按设计要求不小于恒载,拟定为恒载的1.2倍。因沙袋在下雨过程中会吸水增重,对支架稳定导致影响,现场必须准备彩条布,下雨前及时将所有沙袋全断面覆盖遮雨。
根据本桥结构形式,采取分段预压,第一组压VII-VI-V段,第二组压IX段,第三组压IV、III、II、I段。
考虑箱梁每跨靠近墩身两边VII截面2.5m为加厚段,平均重量为6.5t/m²;VI、V、IV、III、II、I、IX段平均重量为4.22、2.54、189、1.67、0.9、3.12、1.75t/m²;为保证预压接近支架实际的纵向荷载分布,。松土密度取值1.4T/m³,相对应加载阶段的重量见下表:
分阶段每段加载重量计算表

注:具体平均荷载,以吊车秤重为准。

VII--V断面预压示意图

IX断面预压示意图
(6)监测点单跨布设
在堆载区设置系统测量点,其分布跨中、1/4处、1/8处、每跨两端,每个断面的底板边线、底板中线处各布置一个监测点,同时相应地在地基础上设置监测点,在支架基础上对应地再布设观测点,目的是既要观测地基的沉降量,又要观测支架模板的变形量,在观测点处采用钢钉标识或预埋钢筋的方法,保护观测点不扰动,以便测量预压前后及卸载后的标高。

沉降观测点布置示意图
(6)监测方法
加载顺序按混凝土浇筑的顺序进行,加载时(沙袋+钢筋)堆放均衡平稳,不可重放或加载过于集中而损伤支架。加载分四次进行,各次加载的重量分别为总重(梁体重量的1.1倍)的加载过程由0%→20%→70%→100%→120%预压荷载。加载完成后观测一次,加载12小时、24小时、48小时、72小时和加载完毕各观测一次,加上加载前观测一次,共6次,连续两次观测累计沉降量不超过2mm,即为趋于稳定。沉降稳定48小时,各测点沉降量平均值小于1mm;连续三次各测点沉降量平均值累计小于5mm。
经监理工程师同时,即可进行卸载。否则还须持荷进行预压,直到地基及支架沉降到位方可卸压。卸载时先卸载完上层沙袋,再卸载下层沙袋,使支架受到的压力均匀减少。卸压完成后,要再次复测各控制点标高,以便得出支架和地基的弹性变形量(等于卸压后标高减去持荷后所测标高),用总沉降量(即支架持荷后稳定沉降量)减去弹性变形量为支架和地基的非弹性变形(即塑性变形)量。预压完成后要根据预压成果通过可调顶托调整支架的标高。
沉降观测一直持续到整个箱梁浇注完毕,特别注意砼浇注时支架的沉降,若浇注时,支架沉降超过预压沉降观测时预留沉降量时,应停止继续浇注,以防事故的发生。
(7)预压注意事项
整孔范围内分层堆码直至整孔支架预压重量满足要求,且不得分块小范围集中堆码,以免产生不均匀沉降;人工堆码整齐,不乱堆放。
支架的预压应加强稳定性观测,确保安全,一旦发现变形量不收敛则立即采取卸载或紧急撤离等措施。
1.2.5.箱梁及模板安装
模板施工工序:工字钢安装→木楞枋安装→模板安装→模板加固。

模板安装成型示意图
工字钢安装
大梁提前在加工厂使用液压顶弯机按变截面桥图纸设计弯幅度,现场拼装焊接成拱。
1)纵梁安装:采用10#工字钢做纵梁,支架顶设可调高度顶托,测量作腹板10m*15m加密点控制,横断面左边、中间、右边不少于3点。采用挂线调整法,顶托调整到设计标高后,工字钢在加工厂分节段预弯幅度,纵桥向安放,“工”字平面向上摆放,分段预设L/1500跨拱度。纵梁安装完成后,复测高程满足设计标高,检查所有工字钢与顶托是否充分接触,纵梁设定预拱幅度是否满足要求,梁体系是否满足均匀受力要求。然后进行工字钢纵梁焊接。
2)纵梁连接:纵梁幅度每2.1m拱背用∠5角钢水平连接,满焊。满足次梁10*10cm@300枋木安放.2.1m之间按枋木L=4m规格计算∠5角钢托垫,每根枋木下角钢垫不少于3处。

角钢垫安装示意图
2、木楞枋安装
横向用10×10cm方木连接,搭接不少于2跨,方木错头搭接,错搭不少于一跨。梁部位枋木间距250mm,箱梁室部位枋木间距梁300mm、翼板后背采用5*10cm楞木均匀分配受力,枋木间距300mm。
3、模板安装
1)腹、翼模安装:采用15㎜厚定尺大块竹胶合模板。从梁端头开始,依序铺在枋木上,再用钉子固定腹板方木与胶合面板,根据变截面设计箱体模型。
2)梁模安装:纵横向主梁模板提前制作,预先采用5*10cm楞木@300mm,把模板、木楞钉合好,安装时楞木后背采用双排双支管固定,主梁两侧模板拼装后,用Φ18对拉螺杆对拉,蝴蝶卡扣牢。双支管上下间距不大于H*L=600*600m。
调模、卸模采用可调顶托完成。梁模板根据箱梁结构尺寸现场加工,便于第二次顶板模安装。3)顶模安装
梁底板砼浇筑完成后,采用胶合板做顶模,根据变梁截面设计加工截面段尺寸现场加工,胶合板铺在分配10*10cm枋木上,用钉子固定方木与胶合面板,枋木间距不大于300mm。顶板结构厚度配置25cm边模板,模板后背上下檐口采用5*10楞木预先加工钉合。安装时采用木方钉扣牢靠。

梁顶板结构层安装示意图
4)堵头模板安装:堵头模板因有钢筋及预应力管道孔眼,模板采用胶合板挖孔,按断面尺寸挖割。孔眼必须按钢筋及预应力管道位置精确定位切割。每个预应力预留孔位要编号,以便在下节段现浇施工中快速准确定位。竖向及横向预应力槽口:竖向及横向预应力张拉端槽口尺寸及位置要求准确。
5)进出料预留口:内模拆除预留口,方便施工人员及进出料下人,设在梁板每舱中部,横向开舱,相邻舱≥3m,开孔尺寸1500*1000mm,提前制作模短板350*100*15mm,再用1470*50*15mm和970*50*15mm楞木固定模板。插入分隔木板时,不得任意裁剪钢筋和改变钢筋方向。

顶板预留口图
4、梁模板加固
内模板紧固主要用Φ18对拉螺杆,拉紧采用焊接Φ18钢筋连接对拉杆。顶紧采用脚手架管。依靠拉、顶连接固定结构尺寸。水平顶、拉杆安装间距≤1.6m。加固牢靠。

加固实体图
5、模板施工应注意事项
1)制作模板前首先熟悉施工图和模板配件加工图,核实工程结构或构件的各细部尺寸,复杂结构应通过放大样,以便能正确配制。
2)按批准的加工图制作的模板,经验收合格后方可使用。
3)模板的接缝必须密合,如有缝隙,采用107胶堵塞严密,以防漏浆。
4)模板涂食用色拉油作脱模剂。
1.2.6.拆除模板和支架
在梁体张拉完成后,压浆强度达到设计强度,方可拆除支架和底模。梁底模及支架卸载顺序,严格按照从梁体挠度最大处支架节点开始,逐步向两端卸落相邻节点,当达到一定卸落量后,支架方可脱落梁体。
在拆除底模及支架过程中必须专人负责安全工作,按照“纵桥向对称均衡、横桥向基本同步”的原则分阶段循环进行支架拆除。
1、支撑架的拆除原则
1)箱梁模板支撑架应待箱梁预应力钢绞线张拉完成并灌浆48小时后,浆液强度达到90%以上方可拆除。
2)支撑架拆架前应对拟拆除的架体进行全面检查,并根据检查结果,编制具体的拆除方案报监理单位审批,待批准后策划实施。
3)支撑架拆除施工应按照先拆除翼缘板支撑架、后拆除箱室支撑架的顺序进行。
4)拆除箱室支撑架时应先拆除各跨跨中附近的支撑架,然后再由跨中向两边延伸,最后拆除墩台等支点处的支撑架,各跨支撑架均应对称拆除。
5)非承重侧模板应在砼强度能保证其表面及棱角不致因拆模而受损坏时方可拆除,一般应在砼抗压强度达到2.5MPa时方可拆除模板,清水混凝土拆模应适当延长1~2倍。当日温度25°C度情况,12小时拆除,昼夜平均温度15°C应适当延迟。
6)箱梁内模承重模板及支架,在箱梁混凝土强度达到设计强度的75%时方可拆除模板;箱梁底模板须达到砼强度的90%预应力张拉,并注浆完成。两种条件都必须满足方可拆除。
7)已拆除模板及其支架的结构,在砼强度符合设计砼强度等级的要求后方可承受全部使用荷载,当施工荷载所产生的效应比使用荷载的效应更为不利时,必须经过核算,加设临时支撑。
2、支撑架拆除施工
1)严格遵守拆除顺序,由上而下,后搭者先拆,先搭者后拆。即先松顶托,使底梁板、翼缘板底模与梁体分离。拆架时一定要先拆箱梁翼板后底板或先外伸梁后主梁,并必须从跨中对称往两边拆。支架拆除宜分两阶段进行,先从跨中对称往两端松一次支架,再对称从跨中往两端拆。
剪刀撑、拉杆不准一次性全部拆除,要求杆拆到哪一层,剪刀撑、拉杆拆到哪一层,拆立杆时,应先抱住立杆再拆开最后两个扣,拆除大横杆、斜撑、剪刀撑时,应先拆中间扣,然后托住中间,再解端头扣。
2)拆除架体时要统一指挥,上下呼应,动作协调,而且在整个拆架过程中必须有技术人员跟班指挥与检查,以防拆架产生过大的的瞬时荷载引起不应有的施工裂缝,多跨连续梁应同时从跨中对称拆架。当解开与另一人有关的结扣时,应先通知对方,以防坠落。在大片盘扣脚手架支撑体系拆除前应将拉结点等先行加固,以便拆除后能确保其完整、安全和稳定。
3)卸落支架应按拟定的卸落程序进行,分几个循环卸完,见下图。

支架拆除顺序图
4)模板、支架拆除后,拆除的盘扣脚手架支撑体系材料:钢管、配件、安全网等立即人工转运到指定堆放场地。应维修整顿,分类妥善存放。
5)拆架时应划分作业区,周边设围栏竖立警戒标志,地面应设专人指挥,禁止非作业人员进入。
6)拆除架体应遵守先外后内、由上而下的顺序。应将内外剪刀撑、模板撑杆拆除掉后,再开始拆除悬挑翼板的支撑架,而后再拆除箱室底板的支撑架。拆除架体时应一步一清依次进行,严禁上下同时进行拆除作业。
7)拆除立杆时,要先抱住立杆再拆开连接横杆的最后一个盘销,防止立杆坠落。
8)支架拆除时,设专人用仪器观测桥梁拱度和墩台变化情况,并仔细记录,另设专人观察是否有裂缝现象。
9)在拆架时,不得中途换人,如必须换人时,应将拆除情况交代清楚后方可离开。
10)拆下的材料要徐徐下运,严禁抛掷。运至地面的材料应按指定地点随拆随运,分类堆放,当天拆当天清,拆下的扣件和铁丝要集中回收处理。
11)拆架休息时不准坐在盘扣脚手架支撑体系上或不安全的地方,严禁在拆架时嘻戏打闹。
12)严禁架子工在夜间进行盘扣脚手架支撑体系拆除工作。未尽事宜班长在安全技术交底中做详细的交底,施工中存在问题的地方应及时与技术部门联系,以便及时纠正。
13)当天离岗时,应及时加固尚未拆除部分,防止存留隐患导致复岗后的人为事故。
14)拆架人员应配备工具套,手上拿钢管时,不准同时拿板手,工具用后必须放在工具套内。拆架时有管线阻碍不得任意割移,同时要注意扣件崩扣,避免踩在滑动的杆件上操作。15)翻掀垫铺模板应注意站立位置,并应自外向里翻起竖立,防止外翻将竹笆内未清除的残留物从高处坠落伤人。
16)如遇强风、雨、雪等特殊气候,应停止进行脚手架的拆除。严禁夜间进行拆除施工。
1.3.支架、模板检查验收标准
1、不满足要求的相关材料一律不得使用,采用问责式制度,相关人员签字。
2、施工过程中加强管理,加大检查力度,将隐患消灭在初始状态,避免遗留安全隐患和加固时人力、物力大量耗费。确保一次验收通过。
3、砼结构观感质量符合相关验收标准,少量的缺陷修补完善。
4、模板制作与安装的允许偏差要符合下表。
模板制作允许偏差检验方法表

模板、支架安装允许偏差检验标准应符合表、模板、支架安装允许偏差
注:1、H为构筑物高度(㎜),L为计算长度(㎜);
2、支承面高程系指模板底模上表面支撑混凝土面的高程。
1.4.脚手架搭设
1.4.1.脚手架搭设介绍
脚手架距离翼板外边缘20cm搭设,总高度8.8m,5跨1设抛杆。其中过道安全护栏1.5m高度按照成都天投[2018]187号文,关于做好2018年夏季防暑降温工作的通知内容设置。
脚手架安全验算计算书及安装示意图附后
脚手架搭设设置

脚手架搭设设置

1.4.2.搭设工艺流程
场地平整、夯实→基础承载力实验、材料配备→定位设置通长脚手板、底座→纵向扫地杆→立杆→横向扫地杆→小横杆→大横杆(格栅)→立杆→小横杆→大横杆→剪刀撑→铺脚手板→扎防护栏杆→扎安全网。
1、钢管落地脚手架
定距定位。根据构造要求在建筑物四角用尺量出内、外立杆离翼缘板距离,并做好标记;用钢卷尺拉直,分出立杆位置,并用小竹片点出立杆标记;垫板、底座应准确地放在定位线上,垫板必须铺放平整,不得悬空。
在搭设首层脚手架过程中,沿四周每框架格内设一道斜支撑,拐角处双向增设,宜先立外排,后立内排。其余按以下构造要求搭设。
1、地基基础
本工程脚手架立杆基础为混凝土板,板混凝土强度经计算能够满足承载脚手架传递荷载(具体计算数据参阅脚手架计算书)。脚手架搭设时应在立杆底部铺设垫板,要求为厚度不小于30mm的木板等,严禁立杆直接落在板表面上,垫板与板表面接触密实。板上不得有重型施工机械,同时应保证板表面整洁干净,积水应及时清理。
2、立杆设置
(1)立杆接长除顶层顶步外,其余各层各步接头必须采用对接扣件连接,立杆与大横杆采用直角扣件连接。接头位置交错布置,两个相邻立杆接头避免出现在同步同跨内,并在高度方向错开的距离不小于50cm;各接头中心距主节点的距离不大于步距的1/3,顶层顶步采用搭接连接时,搭接部位结扎不少于2道,立杆顶端亦高出桥板面1.5m。
(2)上部单立杆与下部双立杆交接处,采用单立杆与双立杆之中的一根对接连接。主立杆与辅立杆采用旋转扣件连接,扣件数量不应少于2个。每根立杆底部应设置垫块,并且必须设置纵、横向扫地杆。纵横向扫地杆应采用直角扣件固定在距底座上皮不大于200mm处立杆上。横向扫地杆亦应采用直角扣件固定在紧靠纵向扫地杆下方立杆上。当立杆基础不在同一高度上时,必须将高处的纵向扫地杆向低处延长两跨与立杆固定,高低差不应大于1m。靠边坡上方的立杆轴线到边坡的距离不应小于500mm。
(3)立杆的垂直偏差应控制在不大于架高的1/400。
(4)立杆及纵横向水平杆构造要求见下图:

立杆及纵横向水平杆构造要求图
3、大横杆、小横杆、剪刀撑设置
(1)纵向水平杆亦设置在立杆内侧,其长度不宜小于3跨,纵向水平杆接长宜采用对接扣件连接,也可采用搭接其要求如下:当采用对接时,对接扣件应该交错布置,两根相邻纵向水平杆接头不宜设置在同步或同跨;不同步或不同跨两相邻接头在水平方向错开距离不应小于500mm;各接头中心至最近主节点的距离不宜大于纵距的1/3。当采用搭接时,搭接长度不应小于1m,应等间距设置3个旋转扣件固定,端部扣件盖板边缘至搭接纵向水平杆杆端的距离不应小于100mm。
木脚手板,纵向水平杆应作为横向水平杆的支座,用直角扣件固定在立杆上。
(2)外架子按立杆与大横杆交点处设置小横杆,两端固定在立杆,以形成空间结构整体受力。
主节点处必须设置一根横向水平杆,用直角扣件扣接且严禁拆除;并且作业层上非主节点处的横向水平杆,宜根据支承脚手板的需要等间距设置,最大间距不应大于纵距的1/2;双排脚手架的横向水平杆两端均应采用直角扣件固定在纵向水平杆上。
(3)高度在24m以下的单、双排脚手架均必须在脚手架外侧立面的两端各设置一道剪刀撑,并应由底至顶连续设置;每道剪刀撑宽度不应小于4跨,且不应小于6m,斜杆与地面的倾角宜在45°~60°之间。高度在24m以上的双排脚手架应在外侧立面整个长度和高度上连续设置剪刀撑。剪刀撑斜杆的接长宜采用搭接,搭接长度不小于1m,应采用不少于3个旋转扣件固定。剪刀撑斜杆应用旋转扣件固定在与之相交的横向水平杆的伸出端或立杆上,旋转扣件中心线离主节点的距离不宜大于150mm。
4、脚手板、脚手片的铺设要求
(1)作业层脚手板应铺满、铺稳,离开翼板120~150mm;
(2)木脚手板应设置在三根横向水平杆上。当脚手板长度小于2m时,可采用两根横向水平杆支承,但应将脚手板两端与其可靠固定,严防倾翻。此三种脚手板的铺设可采用对接平铺,亦可采用搭接铺设。脚手板对接平铺时,接头处必须设两根横向水平杆,脚手板外伸长应取130~150mm,两块脚手板外伸长度的和不应大于300mm(如图a);脚手板搭接铺设时,接头必须支在横向水平杆上,搭接长度应大于200mm,其伸出横向水平杆的长度不应小于100mm(如图b)。
(3)竹笆脚手板应按其主竹筋垂直于纵向水平杆方向铺设,且采用对接平铺,四个角应用直径1.2mm的镀锌钢丝固定在纵向水平杆上。
(4)作业层端部脚手板探头长度应取150mm,其板长两端均应与支承杆可靠地固定。脚手板探头应用直径3.2mm镀锌钢丝固定在支承杆件上。

(a)脚手板对接(b)脚手板搭接
(5)在拐角、斜道平台口处的脚手板,应与横向水平杆可靠连接,防止滑动;
(6)自顶层作业层的脚手板下计,宜每隔12m满铺一层脚手板。
5、防护栏杆
(1)脚手架外侧使用建设主管部门认证的合格绿色密目式安全网封闭,且将安全网固定在脚手架外立杆里侧。
(2)选用18#铅丝张挂安全网,要求严密、平整。
(3)脚手架外侧必须设1.5m高的防护栏杆和30cm高踢脚杆,顶排防护栏杆不少于2道,高度分别为0.7m和1.4m。
6、抛杆
5跨1设,角度45-60°,支撑点牢固,顶杆上端部在排架2/3位置以上主立杆连接,防止排架倾覆。
7、架体内封闭
(1)脚手架的架体里立杆距翼缘板净距最多为200mm,如因结构设计的限制大于200mm的必须铺设站人板,站人板设置平整牢固。
(2)脚手架施工层里立杆与建筑物之间应采用脚手片或木板进行封闭。
(3)施工层以下外架每隔3步以及底部用密目网或其他措施进行封闭。
钢管落地脚手架
1、脚手架搭设完毕或分段搭设完毕,应按规定对脚手架工程的质量进行检查,经检查合格后方可交付使用。
2、高度在20m及20m以下的脚手架,应由单位工程负责人策划技术安全人员进行检查验收。高度大于20m的脚手架,应由上一级技术负责人随工程进行分阶段策划单位工程负责人及有关的技术人员进行检查验收。
3、验收时应具备下列文件
(1)根据编制依据相关文件法规要求所形成的施工策划设计文件。
(2)脚手架构配件的出厂合格证或质量分类合格标志。
(3)脚手架工程的施工记录及质量检查记录。
(4)脚手架搭设过程中出现的重要问题及处理记录。
(5)脚手架工程的施工验收报告。
4、脚手架工程的验收,除查验有关文件外,还应进行现场检查,检查应着重以下各项,并记入施工验收报告。
(1)构配件和加固件是否齐全,质量是否合格,连接和挂扣是否紧固可靠。
(2)安全网的张挂及扶手的设置是否齐全。
(3)地基是否积水,底座是否松动,立杆是否悬空。
(4)杆件的设置和连接,连墙件、支撑、门洞桁架等的构造是否符合要求。
(5)垂直度、水平度及立杆的沉降是否合格。
(6)扣件螺栓是否松动,是否超载。
脚手架搭设技术措施
钢管落地脚手架
1、钢管架应设置避雷针,分置于主楼外架四角立杆之上,并联通大横杆,形成避雷网络,并检测接地电阻不大于30Ω。
2、外脚手架不得搭设在距离外架空线路的安全距离内,并做好可靠的安全接地处理。
3、定期检查脚手架,发现问题和隐患,在施工作业前及时维修加固,以达到坚固稳定,确保施工安全。
4、外脚手架严禁钢竹、钢木混搭,禁止扣件、绳索、铁丝、竹篾、塑料篾混用。
5、外脚手架搭设人员必须持证上岗,并正确使用安全帽、安全带、穿防滑鞋。
6、严禁脚手板存在探头板,铺设脚手板以及多层作业时,应尽量使施工荷载内、外传递平衡。
7、保证脚手架体的整体性,不得与井架、升降机一并拉结,不得截断架体。
8、结构外脚手架每支搭一层,支搭完毕后,经项目部安全员验收合格后方可使用。任何班组长和个人,未经同意不得任意拆除脚手架部件。
9、严格控制施工荷载,脚手板不得集中堆料施荷,施工荷载不得大于3kN/m²,确保较大安全储备。
10、结构施工时不允许多层同时作业,装修施工时同时作业层数不超过两层,临时性用的悬挑架的同时作业层数不超过两层。
11、当作业层高出其下连墙件3.6m以上、且其上尚无连墙件时,应采取适当的临时撑拉措施。
12、各作业层之间设置可靠的防护栅栏,防止坠落物体伤人。
脚手架拆除技术措施
钢管落地脚手架
1、拆架前:
(1)应全面检查脚手架的扣件连接、连墙件、支撑体系等是否符合构造要求;(2)应根据检查结果补充完善施工策划设计中的拆除顺序和措施,经主管部门批准后方可实施;
(3)应由单位工程负责人进行拆除安全技术交底;(4)应清除脚手架上杂物及地面障碍物。
2、拆架时应划分作业区,周围设绳绑围栏或竖立警戒标志,地面应设专人指挥,禁止非作业人员进入。当脚手架采取分段、分立面拆除时,对不拆除的脚手架两端,应先按《建筑施工扣件式钢管脚手架安全技术规范》第7.4.3条、第6.4.4条、第6.6.4条、第6.6.5条设置连墙件和横向斜撑加固。
3、拆架的高处作业人员应戴安全帽、系安全带、扎裹腿、穿软底防滑鞋。
4、拆架程序应遵守“由上而下,先搭后拆”的原则,即先拆拉杆、脚手板、剪刀撑、斜撑,而后拆小横杆、大横杆、立杆等,并按“一步一清”原则依次进行。严禁上下同时进行拆架作业。
5、拆立杆时,要先抱住立杆再拆开最后两个扣件,拆除大横杆、斜撑、剪刀撑时,应先拆除中间扣件,然后托住中间,再解端头扣件。
6、连墙件必须随脚手架逐层拆除,严禁先将连墙件整层或数层拆除后再拆脚手架;分段拆除高差不应大于2步,如高差大于2步,应增设连墙件加固;当脚手架拆至下部最后一根长立杆的高度(约6.5m)时,应先在适当位置搭设临时抛撑加固后,再拆除连墙件。
7、拆除时要统一指挥,上下呼应,动作协调,当解开与另一人有关的结扣时,应先通知对方,以防坠落。
8、拆架时严禁碰撞脚手架附近电源线,以防触电事故。
9、在拆架时,不得中途换人,如必须换人时,应将拆除情况交代清楚后方可离开。
10、拆下的材料要徐徐下运,严禁抛掷。运至地面的材料应按指定地点随拆随运,分类堆放,“当天拆当天清”,拆下的扣件和铁丝要集中回收处理。
11、高层建筑脚手架拆除,应配备良好的通讯装置。
12、输送至地面的杆件,应及时按类堆放,整顿保养。
13、当天离岗时,应及时加固尚未拆除部分,防止存留隐患导致复岗后的人为事故。
14、如遇强风、大雨、雪等特殊气候,不应进行脚手架的拆除,严禁夜间拆除。
15、翻掀垫铺竹笆应注意站立位置,并应自外向里翻起竖立,防止外翻将竹笆内未清除的残留物从高处坠落伤人。
1、安全管理
(1)搭设人员必须是经过按现行国家标准《特种作业人员安全技术考核管理规则》GB5036考核合格的专业架子工。上岗人员定期体检,合格者方可持证上岗;
(2)搭设人员必须戴安全帽、系安全带,穿防滑鞋;
(3)脚手架的构配件质量与搭设质量,应按安全技术规范规定进行检查验收,合格后方准许使用;
(4)作业层上的施工荷载应符合设计要求,不得超载。不得将模板支架、揽风绳、泵送混凝土和砂浆的输送管等固定在脚手架上,严禁悬挂起重设备;
(5)当有六级以及六级以上大风和雾、雨、雪天气,应停止脚手架的搭设与拆除作业。雪后架上作业应有防滑措施,并扫除积雪;
(6)脚手架的安全检查与维护,应按安全技术规范进行。安全网应按规定搭设和拆除;
(7)在脚手架使用期间,严禁拆除主节点处纵、横水平杆、连墙件、交叉支撑、水平架、加固栏杆和栏杆;
(8)不得在脚手架基础及邻近处进行挖掘作业,否则应采取安全措施,并报主管部门批准;
(9)临街搭设脚手架时,外侧应有防止坠物伤人的防护措施;
(10)在脚手架上进行电、气焊作业时,必须有防火措施和专人看守;
(11)工地临时用电线路的架设及脚手架接地、避雷措施等。应按现行行业标准《施工现场临时用电安全技术规范》JGJ 46-2005的有关规定执行;
(12)搭拆脚手架时,地面应设围栏和警戒标志,并派专人看守,严禁非操作人员入内。
2、日常维护管理要求
(1)使用完毕的脚手架架料和构件、零件要及时回收、分类整顿,分类存放。堆放地点要场地平坦,排水良好,下设支垫,钢管、角钢、钢桁架和其他钢构件最好放在室内,如果放在露天,应用毡、席加盖、扣件、螺栓及其他小零件,应用木箱。钢筋笼或麻袋、草包等容器分类贮存,放在室内;
(2)弯曲的钢管杆件要调直,损坏的构件要修复,损坏的扣件、零件要更换;
(3)做好钢铁件的防锈和木制件的防腐处理,钢管外壁在湿度较大地区(相对湿度大于75%),应每年涂刷防锈漆一次;其他地区可两年涂刷一次。涂刷时涂层不宜过厚。经彻底除锈后,涂一度红丹即可。钢管内壁可根据地区情况,每2~4年涂刷一次,每次涂刷两遍。角钢、桁架和其他铁件可每年涂刷一次。扣件要涂油,螺栓宜镀锌防锈,使用3~5年保护层剥落后再次镀锌。没有镀锌条件的,应在每次使用后用煤油洗涤并涂机油防锈。木制件应做好防腐处理,钢制件应涂红丹及防锈涂料;
(4)搬运长钢管、长角钢时,应采取措施防止弯曲。拆架应拆成单片装运,装卸时不得抛丢,防止损坏;
(5)脚手架使用的扣件、螺栓、螺母、垫板、连接棒、插销等小配件极易丢失。在安装脚手架时,多余的小配件应及时收回存放,在拆卸脚手架时,散落在地面上的小配件要及时收捡起来;
(6)健全制度,加强管理,减少损耗和提高效益是脚手架管理的中心环节。比较普遍采用的管理办法有两种
1)由架子工班(组)管理,采用谁使用、谁维护、谁管理的原则,并建立积极地奖罚制度、做到确保施工需要,用毕及时归库、及时清理和及时维修保养,减少丢失和损耗;
2)由材料部门集中管理,实行租赁制。施工队根据施工的需要向公司材料部门租赁脚手架材料,实行按天计费和损坏赔偿制度。
1.5.扣件式脚手架计算书
计算依据:
1、《建筑施工扣件式钢管脚手架安全技术规范》 JGJ130-2011
2、《建筑地基基础设计规范》 GB50007-2011
3、《建筑结构荷载规范》 GB50009-2001
4、《钢结构设计规范》 GB50017-2003
一、脚手架参数
脚手架参数表

二、荷载设计
荷载设计表

计算简图:

立面图

侧面图
三、横向水平杆验算
横向水平杆验算表

纵、横向水平杆布置

附件52.纵、横向水平杆布置
承载能力极限状态
q=1.2×(0.04+Gkjb×la/(n+1))+1.4×Gk×la/(n+1)=1.2×(0.04+0.35×1.5/(2+1))+1.4×3×1.5/(2+1)=2.36kN/m
正常使用极限状态
q'=(0.04+Gkjb×la/(n+1))+Gk×la/(n+1)=(0.04+0.35×1.5/(2+1))+3×1.5/(2+1)=1.71kN/m
计算简图如下:


计算简图
1、抗弯验算
Mmax=max[qlb2/8,qa12/2]=max[2.36×0.92/8,2.36×0.152/2]=0.24kN·m
σ=Mmax/W=0.24×106/5260=45.38N/mm²≤[f]=205N/mm²
满足要求!
2、挠度验算
νmax=max[5q'lb4/(384EI),q'a14/(8EI)]=max[5×1.71×9004/(384×206000×127100),1.71×1504/(8×206000×127100)]=0.559mm
νmax=0.559mm≤[ν]=min[lb/150,10]=min[900/150,10]=6mm
满足要求!
3、支座反力计算
承载能力极限状态
Rmax=q(lb+a1)2/(2lb)=2.36×(0.9+0.15)2/(2×0.9)=1.44kN
正常使用极限状态
Rmax'=q'(lb+a1)2/(2lb)=1.71×(0.9+0.15)2/(2×0.9)=1.05kN
四、纵向水平杆验算
承载能力极限状态
由上节可知F1=Rmax=1.44kN
q=1.2×0.04=0.048kN/m
正常使用极限状态
由上节可知F1'=Rmax'=1.05kN
q'=0.04kN/m
1、抗弯验算
计算简图如下:


弯矩图(kN·m)
σ=Mmax/W=0.58×106/5260=111.09N/mm²≤[f]=205N/mm²
满足要求!
2、挠度验算
计算简图如下:


变形图(mm)
νmax=2.622mm≤[ν]=min[la/150,10]=min[1500/150,10]=10mm
满足要求!
3、支座反力计算
承载能力极限状态
Rmax=3.34kN
五、扣件抗滑承载力验算
扣件抗滑承载力验算表
|
横杆与立杆连接方式 |
单扣件 |
扣件抗滑移折减系数 |
0.85 |
扣件抗滑承载力验算:
横向水平杆:Rmax=1.44kN≤Rc=0.85×8=6.8kN
纵向水平杆:Rmax=3.34kN≤Rc=0.85×8=6.8kN
满足要求!
六、荷载计算
荷载计算表

立杆静荷载计算
1、立杆承受的结构自重标准值NG1k
单外立杆:NG1k=(gk+(lb+a1)×n/2×0.04/h)×H=(0.129+(0.9+0.15)×2/2×0.04/1.5)×8.8=1.38kN
单内立杆:NG1k=1.38kN
2、脚手板的自重标准值NG2k1
单外立杆:NG2k1=(H/h+1)×la×(lb+a1)×Gkjb×1/5/2=(8.8/1.5+1)×1.5×(0.9+0.15)×0.35×1/5/2=0.38kN
1/5表示脚手板5步1设
单内立杆:NG2k1=0.38kN
3、栏杆与挡脚板自重标准值NG2k2
单外立杆:NG2k2=(H/h+1)×la×Gkdb×1/5=(8.8/1.5+1)×1.5×0.17×1/5=0.35kN
1/5表示挡脚板5步1设
4、围护材料的自重标准值NG2k3
单外立杆:NG2k3=Gkmw×la×H=0.01×1.5×8.8=0.13kN
构配件自重标准值NG2k总计
单外立杆:NG2k=NG2k1+NG2k2+NG2k3=0.38+0.35+0.13=0.86kN
单内立杆:NG2k=NG2k1=0.38kN
立杆施工活荷载计算
外立杆:NQ1k=la×(lb+a1)×(njj×Gkjj)/2=1.5×(0.9+0.15)×(1×3)/2=2.36kN
内立杆:NQ1k=2.36kN
组合风荷载作用下单立杆轴向力:
单外立杆:N=1.2×(NG1k+NG2k)+0.9×1.4×NQ1k=1.2×(1.38+0.86)+0.9×1.4×2.36=5.67kN
单内立杆:N=1.2×(NG1k+NG2k)+0.9×1.4×NQ1k=1.2×(1.38+0.38)+0.9×1.4×2.36=5.09kN
七、钢丝绳卸荷计算
钢丝绳卸荷计算表


钢丝绳卸荷

钢丝绳绳卡作法

钢丝绳连接吊环作法(共用)
第1次卸荷验算
α1=arctan(ls/Hs)=arctan(3000/200)=86.19°
α2=arctan(ls/Hs)=arctan(3000/1100)=69.86°
钢丝绳竖向分力,不均匀系数KX取1.5
P1=Kf×KX×N×hj(n+1)/H×HL/la=0.8×1.5×5.09×0.8/8.8×3/1.5=1.11kN
P2=Kf×KX×N×hj(n+1)/H×HL/la=0.8×1.5×5.67×0.8/8.8×3/1.5=1.24kN
钢丝绳轴向拉力
T1=P1/sinα1=1.11/sin86.19°=1.11kN
T2=P2/sinα2=1.24/sin69.86°=1.32kN
卸荷钢丝绳的最大轴向拉力[Fg]=max[T1,T2]=1.32kN
绳夹数量:n=1.667[Fg]/(2T)=1.667×1.32/(2×15.19)=1个≤[n]=5个
满足要求!
Pg=k×[Fg]/α=9×1.32/0.85=13.94kN
钢丝绳最小直径dmin=(Pg/0.5)1/2=(13.94/0.5)1/2=5.28mm
吊环最小直径dmin=(4A/π)1/2=(4×[Fg]/([f]π))1/2=4×1.32×103/(65π))1/2=6mm
注:[f]为拉环钢筋抗拉强度,按《混凝土结构设计规范》9.7.6每个拉环按2个截面计算的吊环应力不应大于65N/mm²
第1次卸荷钢丝绳最小直径5.28mm,必须拉紧至1.32kN,吊环最小直径为6mm。
八、立杆稳定性验算
立杆稳定性验算表

1、立杆长细比验算
立杆计算长度l0=Kμh=1×1.5×1.5=2.25m
长细比λ=l0/i=2.25×103/15.9=141.51≤210
轴心受压构件的稳定系数计算:
立杆计算长度l0=kμh=1.155×1.5×1.5=2.6m
长细比λ=l0/i=2.6×103/15.9=163.44
查《规范》表A得,φ=0.265
满足要求!
2、立杆稳定性验算
不组合风荷载作用
单立杆的轴心压力设计值N=(1.2×(NG1k+NG2k)+1.4×NQ1k)×(hx1+(1-Kf)×(Hx顶-hx1)+max[6,(1-Kf)×hj顶])/H=(1.2×(1.38+0.86)+1.4×2.36)×(8+(1-0.8)×(8-8)+max[6,(1-0.8)×0.8])/8.8=9.54kN
σ=N/(φA)=9539.21/(0.265×506)=71.14N/mm²≤[f]=205N/mm²
满足要求!
组合风荷载作用
单立杆的轴心压力设计值N=(1.2×(NG1k+NG2k)+0.9×1.4×NQ1k)×(hx1+(1-Kf)×(Hx顶-hx1)+max[6,(1-Kf)×hj顶])/H=(1.2×(1.38+0.86)+0.9×1.4×2.36)×(8+(1-0.8)×(8-8)+max[6,(1-0.8)×0.8])/8.8=9.01kN
Mw=0.9×1.4×Mwk=0.9×1.4×ωklah2/10=0.9×1.4×0.23×1.5×1.52/10=0.1kN·m
σ=N/(φA)+Mw/W=9013.01/(0.265×506)+96414.04/5260=85.55N/mm²≤[f]=205N/mm²
满足要求!
九、连墙件承载力验算
连墙件承载力验算表

Nlw=1.4×ωk×2×h×2×la=1.4×0.3×2×1.5×2×1.5=3.8kN
长细比λ=l0/i=600/158=3.8,查《规范》表A.0.6得,φ=0.99
(Nlw+N0)/(φAc)=(3.8+3)×103/(0.99×489)=14.01N/mm²≤0.85×[f]=0.85×205N/mm²=174.25N/mm²
满足要求!
扣件抗滑承载力验算:
Nlw+N0=3.8+3=6.8kN≤0.85×12=10.2kN
满足要求!
点击后方链接免费*载下**本文word文件
电脑端「链接」手机端「链接」
