对于商业体来说,一个好的购物环境才能带来好的购物体验。
相信很多人跟小编一样,对于一个商场的印象好坏的首要标准就是洗手间!
试想,当你手提大大小小的购物袋,跑进洗手间,却发现这里满地水渍、脏乱,没有擦手纸和洗手液,是不是会让你立刻打消了再来的念头?
事实上,洗手间的使用管理能力集中体现了商场的综合管理运营能力,其规划设计也考验一个设计公司的专业力和创造力。

本期主题,我们就聚焦于商业综合体的“边角空间”之一的洗手间,从设计基本攻略、优秀案例、以及国家规定通则等方面,全方位研究洗手间的设计、建造、运营,共同 总结为一份有价值、可行性、可供参考的研究报告。(内含设计干货,建议先收藏)
01
购物中心洗手间,居然有这么多设计讲究
「设计基本攻略」
洗手间是商业综合体中不可或缺的空间,对于这部分的设计,设计师们也在实操项目中积累经验,从而形成了以下基本的设计攻略:
- 例如,一般来说,卫生间尽量避免占用有利租赁区域,但也商业体会把卫生间设置于中庭节点上;
- 建筑物的厕所、盥洗室、浴室不应直接布置在餐厅、食品贮存、医疗、变配电等有严格卫生要求或防水、防潮要求用房的上层;
- 男女厕位应适当增加女厕的蹲(坐)位数和建筑面积,男蹲(坐、站)位与女蹲(坐)位比例以1:1~2:3为宜,商业区以2:3为宜;
- 如商业综合体动线较长,需每间隔一定距离设置一处卫生间。服务半径在80m左右为最佳,合理距离一般60—200米不等,而且还需根据商业规模和档次合理选择间距大小;
- 洗手间设置应与店铺区域以通道过渡,保证私密性,同时防止串味;
- 通往洗手间的通道和洗手间内禁止出现台阶、斜坡;
- 男女洗手间入口外视线不得看到任何内部设置,不可把镜子设置在任何会将厕所内部情况反射到外部公共走道区的位置。男女洗手间入口不设门扇,设迂回式入口,防止二次污染;
- 男女厕所宜相邻或靠近布置,便于寻找和上下管道集中布置,同时采用上下层对位布置,方便管线敷设;
- 室内宜有自然采光和直接自然通风,无通风窗口的卫生间应有机械通风换气措施;
- 楼地面要防水、排水、防滑、易清洁、防渗漏,墙面和顶棚应防潮;
- 在商业综合体中会嵌套一些相对独立的功能区域,例如冰场、电影院以及儿童乐园等,为了方便管理和使用,可单独设置卫生间;
- 结合疏散走道设置,结合疏散走道布置卫生间可以减少公摊面积,提高商铺得房率;
- 卫生间排向市政的重力管如果过长,横穿建筑室内的横管因为坡降的因素会占用建筑净高,而且横管较容易堵塞,对日后运营会导致影响;
- 以餐饮业态为主的楼层,根据餐饮面积相应增加洗手间面积,坑位数量;
- 餐饮楼层设置员工洗手间,靠近后勤通道,与顾客洗手间相分离,分男女员工洗手间,坑位、便器数量不少于2个,员工洗手间兼有吸烟室功能;
02
给洗手间这种“边角空间”,也来点设计感
「商场洗手间美学图鉴」
商业体项目的定位、动线、构造、体量等因素都会影响洗手间的大小位置以及数量、功能;特别在“场景革命”的趋势下,主题个性化、人文关怀下的洗手间也凭借着各种“美貌”出圈。
1、根据动线划分【洗手间位置均以框线标注】
“一”字型--南宁五象万象汇
商业建筑面积6万平方米,项目动线呈简洁直白的“一”字型,洗手间位置分布于两侧。

龙华壹方城
商业建筑面积25万平方米,经营楼层为B1-L4,一层的卫生间、无障碍卫生间以及母婴室配备齐全,位于同一侧。

成都世茂广场

小体量单一动线--上海漕河泾印象城
商业建筑面积5.6万平方米,商业经营楼层B1-L4,洗手间位置位于动线头尾两端。

“L”字型--重庆光环购物公园
购物中心整体呈“L”型动线,网红场景--“沐光森林”位于主中庭的节点上,洗手间分别放置在动线直线的中间点。

印力汇德隆 杭州奥体印象城
整体呈“L”型动线,洗手间位于交点附近。

龙湖苏州东吴天街
商业建筑面积15万平方米,其中商业经营楼层B1-L7,停车场B1-B2。

汕头万象城
动线呈“V”字型,一层以国际美妆、高端腕表等零售品牌为主。

长沙荟聚中心
长沙荟聚部分的平面动线呈“8”字型,一层在四个位置布置洗手间,且母婴室等设施齐全。

环型动线--北京更新场
作为小体量的北京更新场,大体呈现“环型”动线,洗手间布局在相对的两端。

开放式街区--杭州ins park

复合动线--长沙北辰三角洲大悦城
商业建筑面积14.6万平方米,动线较为复杂,洗手间位置便直接被放置在一角。

2、根据定位与档位划分
高档: 各类高档购物中心对于洗手间的设计方案,除了一次次刷新精致、奢华高度,也会从设计风格和卫浴品牌延续商场的风格与人性化,同时 十分注重通过设计细节来保护客户的隐私性和体验感。
上海港汇恒隆广场
港汇恒隆广场一直以来都坚持高端市场定位,在商场的硬件水平上也是从细节中处处体现高奢风格。


整个空间以白色、金色为主色调,几何切割与圆形元素平衡了空间视觉感,灯带、顶灯与镜子的呼应,提升了设计感和奢华感。

卫生隔间保持干净整洁,光线柔和,柜台可以放置携带的东西,还有手纸、消毒液供顾客使用。

IFC国金中心
位于陆家嘴黄金地段的IFC国金中心,同样适用白色、金色、香槟色、木纹为主要设计色调,同时搭配镂空装饰设计,让本来沉稳的空间变得活跃起来。

标识设计,也是具有设计感的镂空设计,同样富有个性。

整个空间视觉无障碍,明亮舒适。

高端商场的隔间之间一般采用“顶天立地”的设计,更为注重和保护高端顾客所需要的私密性和隐私空间。

陆家嘴中心L+MALL
自踏入商场以来,就有种跨越次元的感觉,灯光格局像极了太空舱。

卫生间相当的气派,弧形的墙面设计很特别,洗手池同样以波浪的设计与整体空间相呼应。

中高端、家庭型: 对于这一类商场来说,除了要应对年轻消费者的喜好,也要重点考虑家庭的消费客群,因此除了保持洗手间的干净整洁,创造个性化的同时,针对儿童的卫生间或母婴室空间的用心设计和经营,也是让消费者产生好感之处。
百盛百盛优客城市广场

晶耀前滩
晶耀前滩的母婴室,空间很宽敞,设备齐全,宝妈们可以更好的在这里照顾小朋友。使用和的浅粉色灯光与舒服的米色系搭配在一起,给人温馨自在的感觉。

潮流型:TX淮海
坐落在淮海路上的TX淮海,是“魔都潮人天堂”,每一层的洗手间,风格也大相径庭,总有一款可以个性潮人们的心。
二楼采用了明亮活泼的橙红色系,同时配备的造型凳子,为空间增添视觉美感。


三楼是清新墨绿的北欧风,黑白与墨绿色的墙砖,让整个空间看起来十分雅致。


四楼又是深色自然原木风,百搭的黑白洗手台与之呼应。


艺术型:上海K11
被称为“购物界的艺术中心”的K11,则与WeCare WC合作推出的主题色彩浓郁的洗手间。

进入洗手间,就会被里面专业化妆室一般的梳妆台吸引住,黑白色调也让这里充满简洁大方的高级感。


每个隔间的主题风格不尽相同,每打开一间都有一种抽盲盒的惊喜感。

3、根据创新风格划分
BFC外滩金融中心--复古精致式
被称为“外滩最美建筑”的BFC外滩金融中心,其卫生间设计也同样吸睛。

空间选择香槟色、米白色的配色,梳妆镜到落地的大镜子则使得空间更为通透,瓷砖以及金属条拼接出庄重的圣洁感和高级感。

配备高级酒店会使用的Duravit洗手台和坐便器,同时还贴心配有插座,虽然是坐式马桶,空间里却十分干净,无异味,舒适感十足。


高饱和色彩的瓷砖墙面与各种形状的镜子,构建出一个出与众不同的艺术化空间,让这里从千篇一律的洗手间中脱颖而出,也成为一个绝佳的自拍场地。


月星环球港--欧式宫廷风、人文关怀TOP1.
月星环球港的洗手间设计风格为欧式宫廷,给人一种“富丽堂皇”的豪华感。


从装饰画、标识设计上,就不难看出浓郁的欧式风,以暖色调为主,镜面、台盆、水龙头的设计上都是简约实用。


无障碍卫生间、母婴室等隔间设备齐全,负责清洁的阿姨也随时在线,贴心热情地服务每一位顾客,这里也被评为“人文关怀TOP1.”的商场。



兴业太古汇--清新森林风
兴业太古汇洗手间也是集颜值与功能于一身,清新森林风恰到好处,舒适同时又不失品味。

迎合森林自然主题而采用原木色作为主色调,加上白色陶瓷洗手台让整个空间一览无余,没有冗多繁复的设计,十分整洁。


前滩太古里--清新自然风
前不久刚开业的前滩太古里,则是用景观打造了一个魔幻养眼的森林之境,将环保概念贯彻到底。


空间以深色系为主,搭配绿植,洗手台则使用了木纹暖色调进行了中和,精致的梳妆台以及化妆镜,自带美颜滤镜。

隔间的配色也是简单、高级,同时贴心设置了挂钩和手机置放架,使用dyson干手器、智能马桶,透露出简洁却很高级的气质。



03
商业综合体洗手间,设计规范全面总结
「最全指南」

GB 50352-2019
《民用建筑设计统一标准》
6-6.6 厕所、卫生间、盥洗间、浴室和母婴间





CJJ 14-2016
《城市公共厕所设计标准》
1.2.3. 总则、术语、基本规定




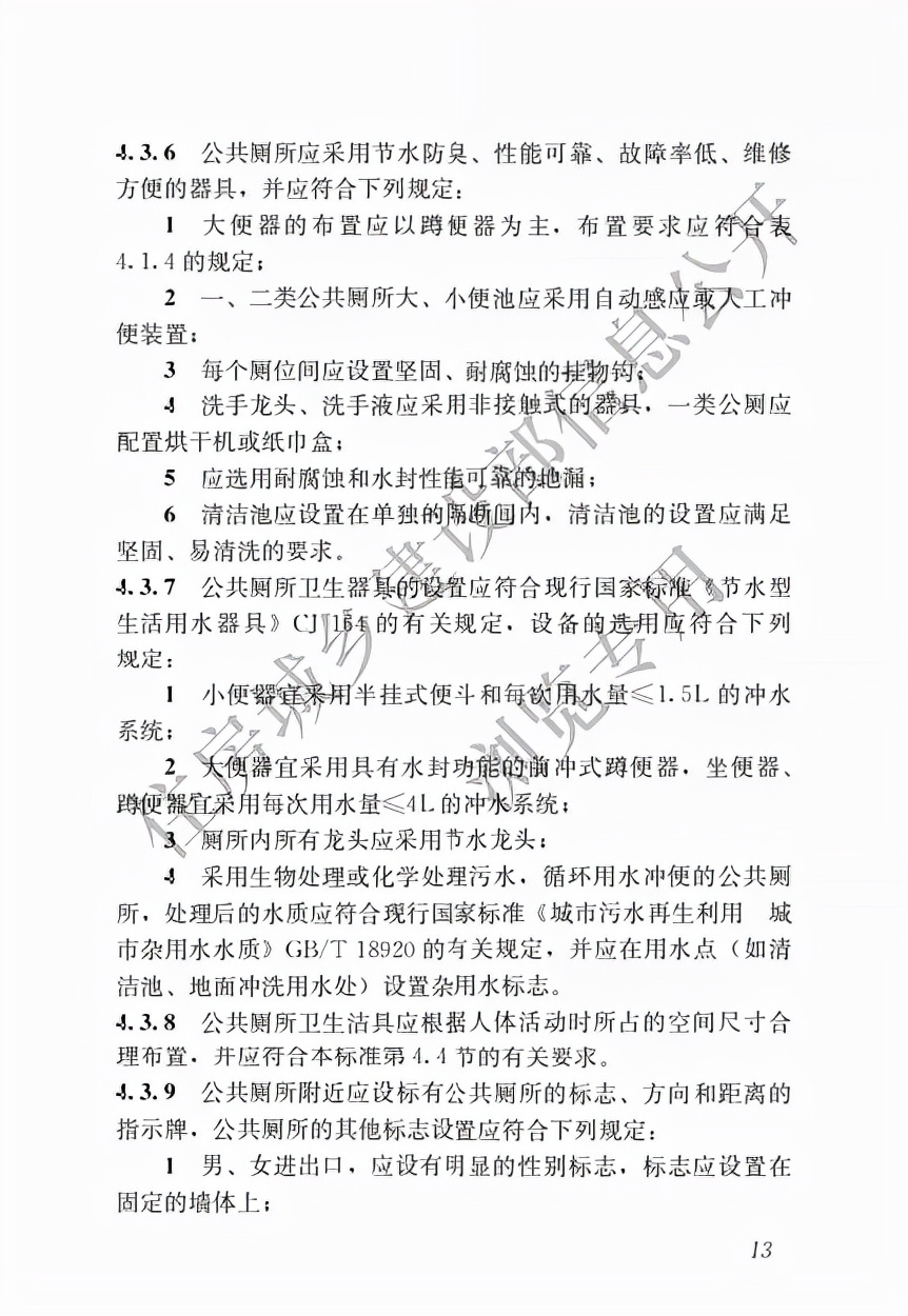
4. 设计要求















5. 固定式公共厕所






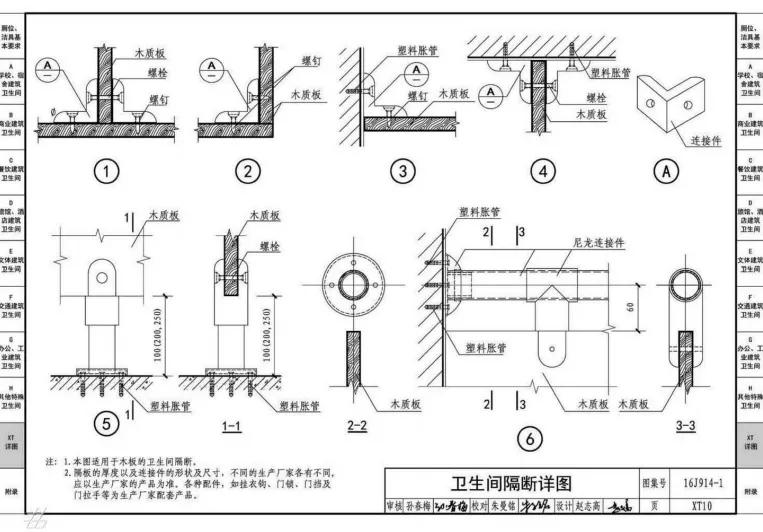
16J914-1
《公用建筑卫生间》
总说明、厕位及洁具设计要点





厕位及洁具净距



B.商业建筑卫生间




H.其它特殊卫生间



XT.详图































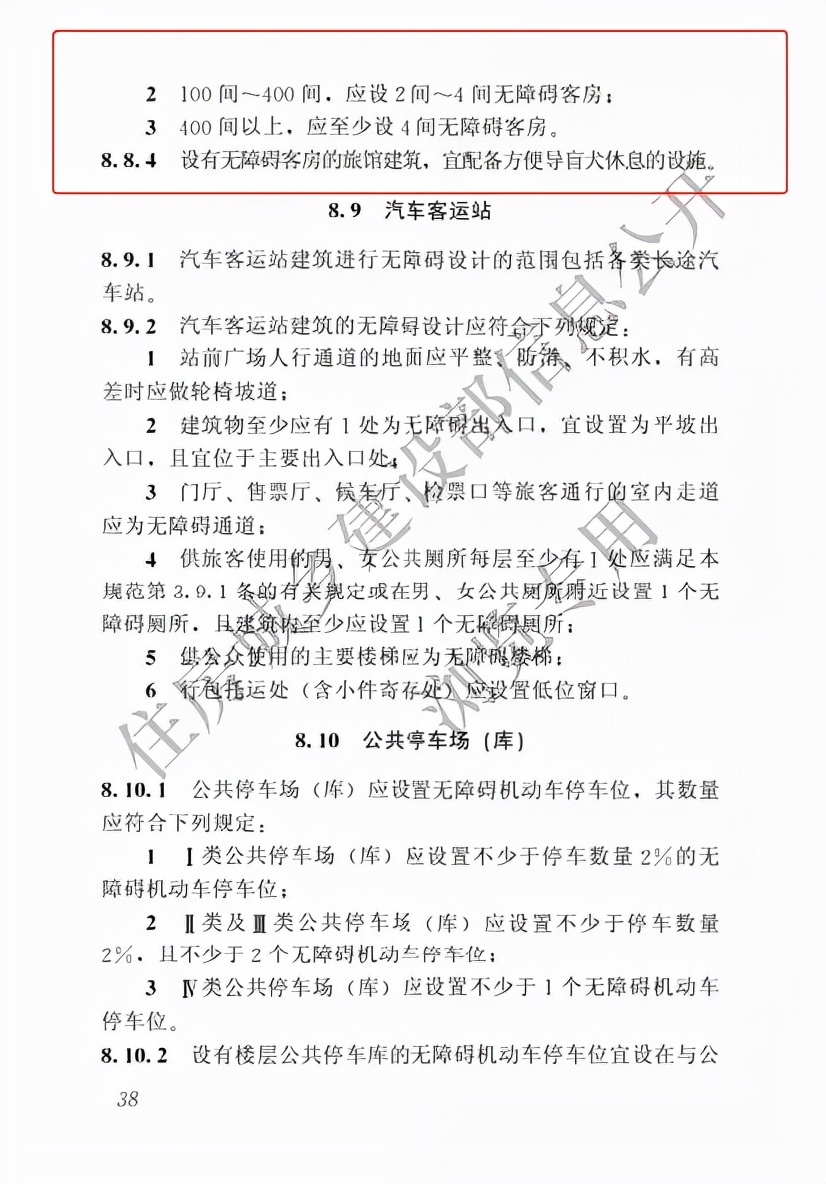
GB50763-2012
《无障碍设计规范》
3-3.9 公共厕所、无障碍厕所
8-8.8 商业服务建筑





附件:无障碍标志





04
写在最后
「思考与启示」
在规划设计中,规范是底线,而不是作为“天花板”。
不违反规范,只是达到了建筑设计的底线,如何设置合理、舒适、人文的洗手间,还是要根据商业定位和具体运营情况去进行考量。
参考素材:中华人民共和国住房和城乡建设部
部分资料及图片参考来源:恒隆广场/ 上海头条播报/ 上海BANG/ShanghaiWOW/ CBS建筑二所/ 明源地产研究院 /中购联/重庆商业地产网/iziRetail逸芮/ dop设计/微博/项目官网/网络,只做传播分享用途,不涉及商业范畴。