现在很多农村建房已经有了政策限制,但凡改建或者新建、扩建则必须严格按照相关宅在基地政策执行。这些政策中最为严格的莫过于占地面积,要求在80—120平米左右。如果宅基地占地面积受限,那么根本没办法往大了建设。所以今天给大家推荐5款方正的三层农村别墅,10×12米占地面积120平方米以内,符合农村建房政策,需要建房的可以收藏起来。
户型一

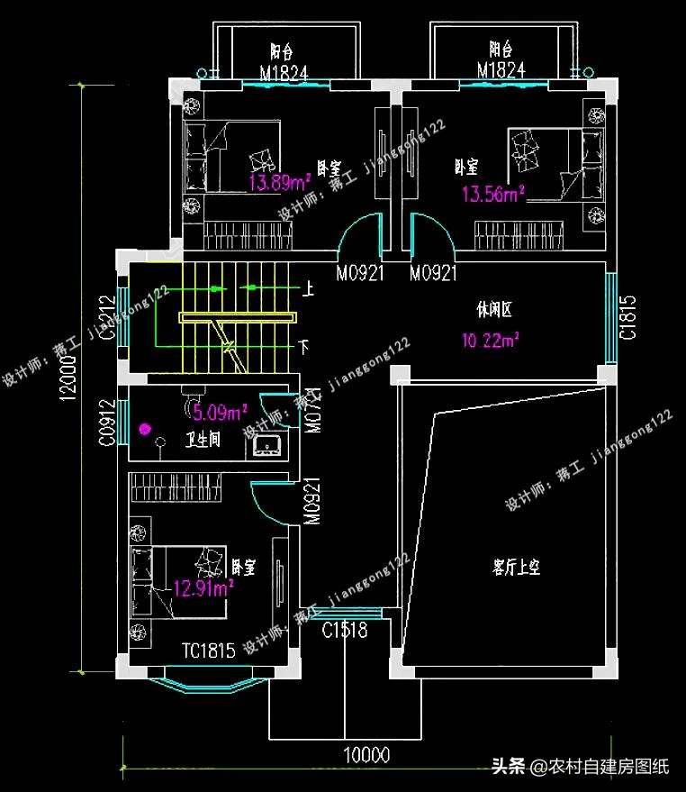
编号J3050
占地尺寸:10m×12.1m
占地面积:112.02平方米
建筑面积:279.1平方米
结构类型:框架结构
主体造价:28-34万



简欧风格,别墅外观错落有致,复式客厅采用落地窗设计,多采光窗,把别墅装饰得通透大气,视觉上给人一种高大上的感觉。入户客厅与玄关一体,空间宽敞。老人房足足有21平,可放置2间床铺。二层设计3间卧室,主卧室设计套卫和书房,居家办公学习两不误。屋顶的大露台,给业主及其家人带来观景空间的同时,也提升室内的采光效果。
户型二

编号J3319
占地尺寸:10m×12m
占地面积:119.26平方米
建筑面积:289.76平方米
结构类型:框架结构
主体造价:29-35万



建筑整体为欧式风格,外墙采用统一的黄色调,用深浅不同的颜色搭配出层次感,屋顶为蓝色釉面瓷瓦铺盖,外观大气,优雅端庄,非常好看。一层入户就是玄关,具有连接室内外和空间过渡缓冲的作用,右拐角就是宽敞明亮的客厅,设置2个卧室,可以作老人房和客卧,避免老人爬楼梯摔跤受伤;三层2个朝南大露台方便晾晒家中衣物,也可以开阔视野,作为观景平台使用。
户型三

编号J3513
占地尺寸:9.76m×11.76m
占地面积:126平方米
建筑面积:343平方米
结构类型:砖混结构
主体造价:30-36万



建筑为现代风格,立面整体采用灰色调,与金属护栏碰撞出简洁的现代化工业气息,与入户部分形成对比,衬托出建筑入口的凹凸变化,使得整体在视觉上更加大气。
户型四

编号J3570
占地尺寸:9.64m×11.94m
占地面积:108.56平方米
建筑面积:257.65平方米
结构类型:砖混结构
主体造价:22-28万



建筑为欧式风格,优化传统欧式繁杂的特性,凸显简洁元素,通过黄色真石漆等材料,凸显外立面造型的温馨雅致。一层以接待功能为主,南侧的门厅和客厅相邻;东北侧的厨房结合餐厅布局,北侧的卧室安静宜居,合理的布局让业主享用到更优质的生活。
户型五

编号J3583
占地尺寸:9.84m×11.89m
占地面积:109.22平方米
建筑面积:294.86平方米
结构类型:砖混结构
主体造价:26-32万



建筑整体为欧式风格,立面采用大量的黄色真石漆和同色调的文化石,搭配橘色的坡屋顶、大气的方柱和双拄,营造出欧式风格的经典与气势感。三层设计有宽敞的屋顶露台空间,在丰富功能的同时,提升室内的采光效果。关注公众号:新农村自建房(fangwu122),全套施工图纸6元,每周一款!