说到农村建房,大家都会觉得性价比高、便宜,但实际建一栋房子毛坯少说也要2、30万,而且随着建材人工涨价,现在盖房是越来越贵,对于大部分农村家庭还是负担不小。有很多朋友都会私信我,有没有建房预算低点的农村别墅设计,今天农村更美建筑师就给大家分享几套,一起来看看!
户型1:这套是一栋非常接地气的农村小平房,外观简单大方,红色外墙砖色调温馨,搭配大坡度的坡屋顶,建筑整体更加洋气。若采用砖混结构建造,20万起就能建。

布局上分为主房和辅房设计,主房日常起居,辅房设计一个柴火房,室内洁污分离,两个厨房设计满足新农村生活需求。户型虽小,但五脏俱全,3间卧室也足够满足居住。

户型2:这套设计借鉴了德国乡村住宅的设计理念,外观朴素大方,室内布局实用。乍一看有点像东北地区的小平房,再配个大院子,那住起来真是美滋滋!采用砖混结构建造,预算25万起。

每个地区都有不同的生活习惯,南方地区关注房屋的通风,北方则更注重保暖。所以这套户型尽量设计小窗,大门较窄, 1.2米宽,毕竟热量80%都是从门窗散发。布局上旨在尽量节省房屋造价,降低施工难度,所以并未设卧室内卫。

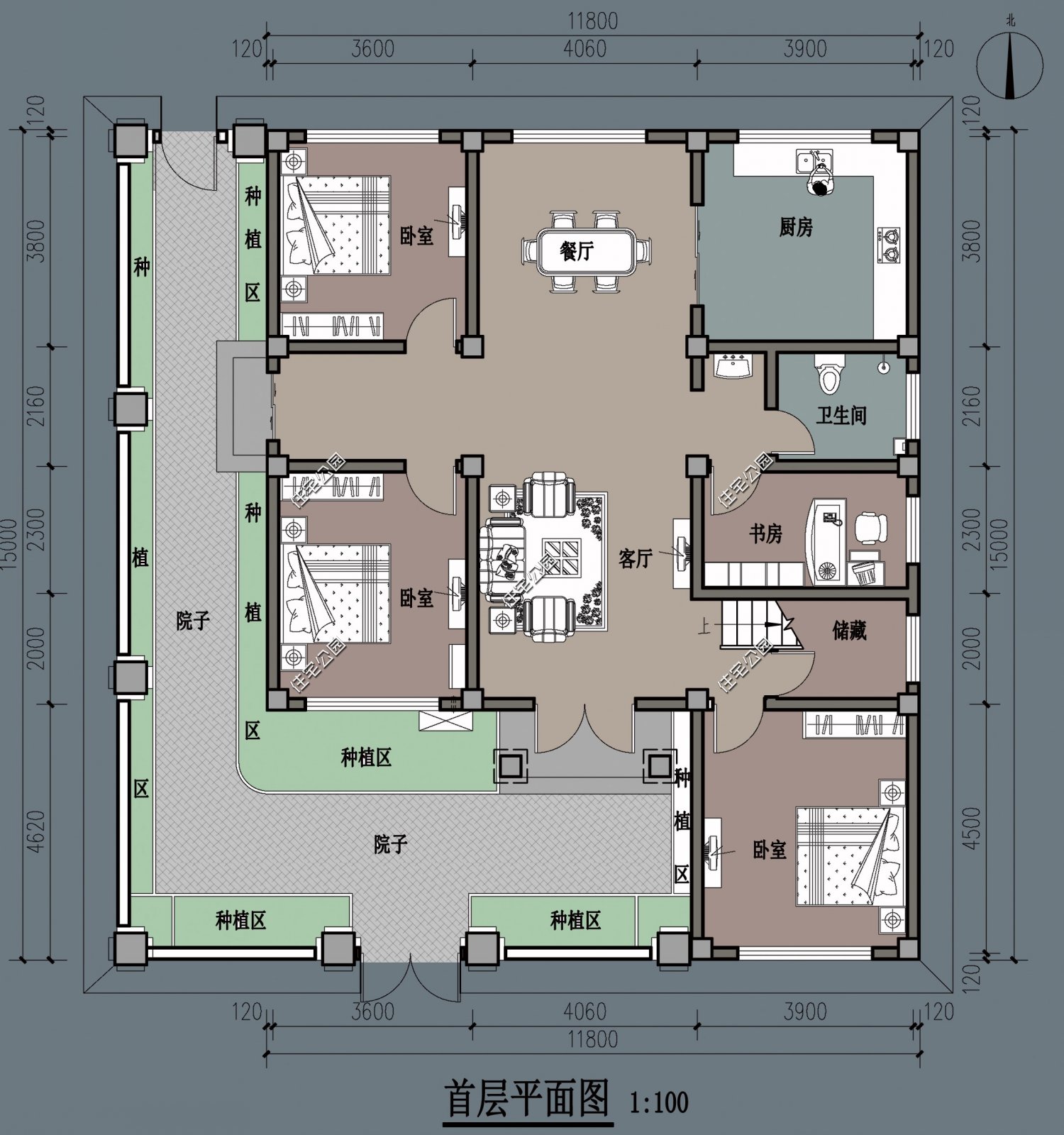
户型3:上面给大家分享一套适合北方的,下面推荐一套适合南方的。建筑配色低调素雅,经典白灰色调,耐看美观。大面积的开窗设计,室内南北通透,通风采光更好。虽是一层设计,但还布置了一个大露台,夏季乘凉,冬季晒太阳,一举多得!
这套设计若采用砖混结构建造,毛坯造价25万起。

这套图纸布局上基本能满足一个普通农村家庭的居住所需,入户即是一个大客厅,联通餐厅空间更显开阔。南向设计两个卧室,北向的卧室可作为客卧,卫生间干湿分离,户型虽不大,但居住起来更加舒适。

顶层一个大露台,摆上两副躺椅,搭上葡萄藤架,这样的养老生活才叫舒适!

如果是你回农村建房,会选择建一层,还是小洋楼呢?
关注农村更美建筑师,1500套别墅设计与你分享。