徽派建筑作为中国古建筑最重要的流派之一,其建筑之风,自古便受文人墨客所爱。时至今日,依旧有许多人对其马头墙和白墙黛瓦之风,钟情有佳。

本案徽派中式别墅,就是位于安徽阜南的一处自建别墅。整个宅基地尺寸是30米X13米。由于宅基地原因以及户主要求,本案徽派别墅,不同于以往的徽派建筑,在权利体现徽派建筑特点的同时,更是采用了灵活多变的布局。

△自建徽派中式别墅 总平面示意图
该宅基地四周情况较好,西南两侧均为道路,东侧为邻居宅基地,而北侧为邻居房屋。所以在宅基地里围合出了两个庭院,南侧主庭院以及北侧餐厅的小庭院。

△自建徽派中式别墅 一层平面图
建筑一层,主要是供父母居住,所以在南侧布置了客厅和老人房,并为家里的老人配置了茶室,而在别墅的北侧,被布置了餐厅和厨房。建筑出入口,有两个一个在南侧,一个在西侧。在有限的宅基地面积下,我们还设计了车库,为了避免车库影响建筑采光,所以车库被设置在了南侧。

△自建徽派中式别墅二层平面图

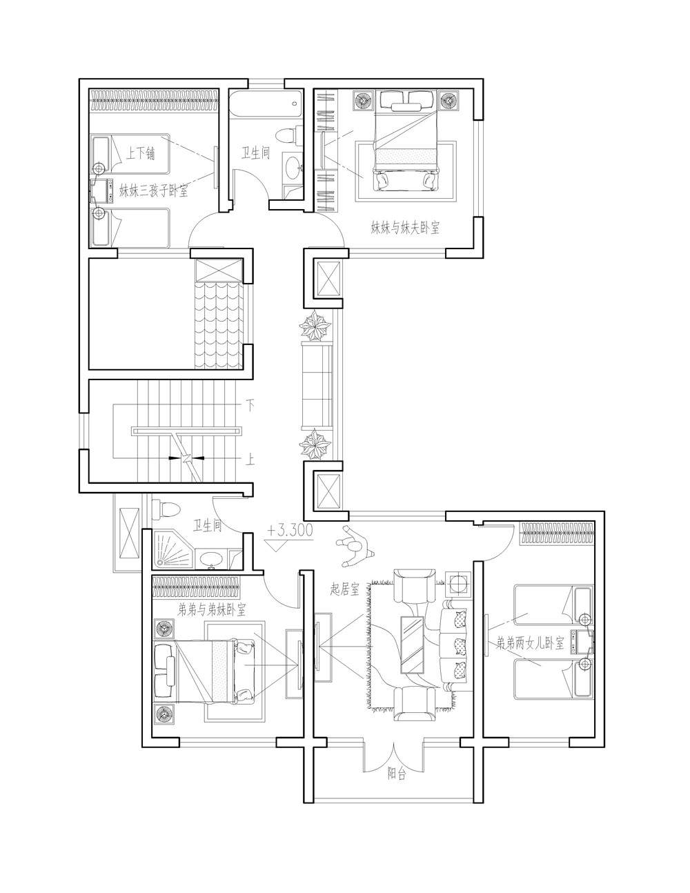
△自建徽派中式别墅三层平面图
建筑三层设置了含有衣帽间的大主卧,主卧相邻两个儿童房,楼梯北侧配备了独立书房和储物间。
△△自建徽派中式别墅 鸟瞰图
在立面上,本案设计以徽派风格为主,延续了徽派建筑一派的粉墙黛瓦之风,并且将徽派建筑中的马头墙、卷棚屋顶元素加入在建筑之中,整体立面风格清新淡雅,不失大气。

△△自建徽派中式别墅 鸟瞰图

△△自建徽派中式别墅 鸟瞰图

△△自建徽派中式别墅 鸟瞰图

△自建徽派中式别墅 鸟瞰图

△自建徽派中式别墅 鸟瞰图
主要的卧室和客厅布局,采光面都为南向。

△自建徽派中式别墅 庭院效果图
因为业主喜欢打篮球,所以在庭院靠近墙面位置,布置了一个篮球架,作为日常户外运动之地。

自建徽派中式别墅 △庭院效果图
一层的茶室,对着庭院之中的照壁,而照壁和窗户之间,专门设置了一个景观水池,可以在用茶时,观景观水,十分高雅。

△自建徽派中式别墅 庭院效果图

△自建徽派中式别墅 西侧入口效果图

△自建徽派中式别墅 庭院效果图

△自建徽派中式别墅 屋顶露台效果图
三层空间层次较为丰富,不仅设置了露台,并且在建筑南北相接的走廊里,设置了玻璃天窗,在走廊上,就可以观赏到庭院内的景观,夜晚时,还可以观赏天上的星星,十分雅致。

△自建徽派中式别墅 二层走廊内效果图
二层走廊,采用了方形的窗格来划分,当清晨阳光洒入时,会有极其曼妙的光线效果。

△自建徽派中式别墅 东立面图

△自建徽派中式别墅 西立面图

△自建徽派中式别墅 南立面图

△自建徽派中式别墅 北立面图