一、前言
首先这是之前上一篇灯光文的下半部分,所以没看过前文的建议先将前文阅读。
装修小白如何一步步搞定全屋灯光照明设计(上)
上文有人提出无主灯方案客厅照明不足的问题,客厅使用的双筒灯功率是2*9W的,另外客厅主要环境光来自灯带对天顶的漫反射,并不是追求全屋特别光亮的效果,另外沙方上是有灯轨的,实在不行可以通过增加轨道灯进行补充。

而上文为什么将文章分为了多篇呢,主要原因就是家具摆放、灯光、控制、电路设计都是环环相扣、相互影响的。所以上文主要全面先讲解清楚灯光照明,本文补充上文并接着讲完开关插座和电路电线,自然都是干货满满,建议没看过上文的先观看上文,然后可以顺手收藏点赞关注一下。

一开始我和设计师说我家里电位、插座、电器需求的时候,她给我是这么标注的,当时的我也不知道有什么问题。

回头再来看看这份图开关插座杂乱、易错就不说了,关键是拿着这个也确定不了水电位,电工师傅也看不懂啊。实际第一次去家里说要定水电正是如此,因为没有准确的高度宽度数据根本没法比较精准的定位,加上还要拆墙和砌墙我选择叫停了,然后趁着拆墙的时间熬了几个晚上把各种图画出来,也就才有了关于灯光和电路的这两篇文章。

相信有很多人和我经历差不多:没有图纸或只有简单图纸就被催焦急忙开工拆墙,最后往往容易留下很多遗憾。所以我的经验教训就是找一个懂水电和灯光的设计师真的非常重要,但对于我们这种小城市显然有点难,当初为了省钱现在也只能自己来了。
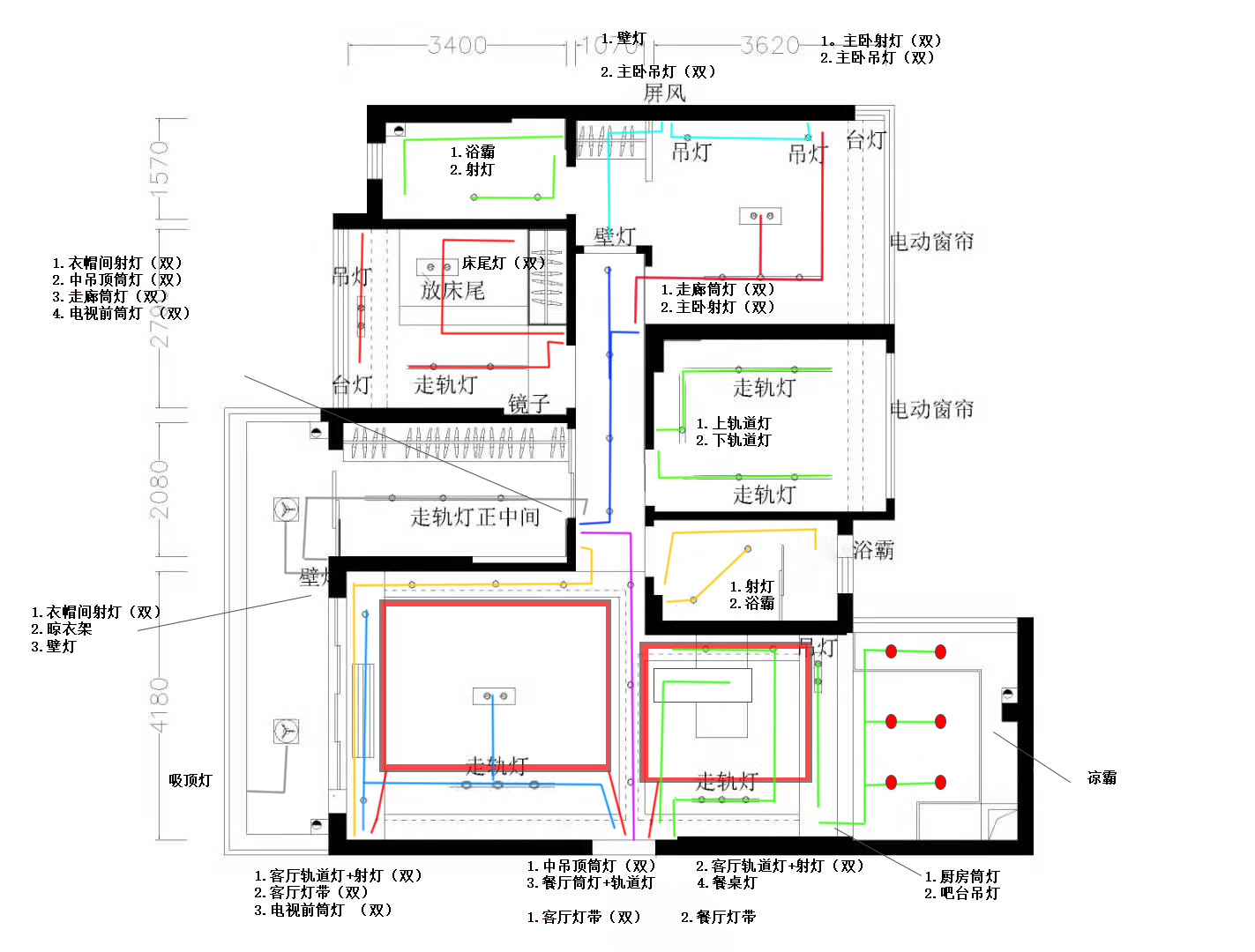
上文已经提到了灯光布局图的设计,自己和本地设计师自然都不够专业,所以找专业的进行一定的优化,自己再根据情况进行了一定的调整,然后一切都从这个灯光布局设计图开始:

二、灯光控制
1.开关类型:

首先开关区分有几个按键就是几开,单开就是一个按键、双开就两个按键。
单控、双控、多控:就是一个灯由几个开关可以控制,单控就是只有一个开关可以控制灯的亮和熄灭,双控则两个位置的开关可以控制......
至于内部的连接方式你不需要搞懂,交给电工就行了。
智能开关我选择的是绿米的零火双线版本,据传要出3开的版本,只是迟迟没有等到,所以我施工都一直按着一个86盒最多2开的标准规划的。

2.动线模拟
虽然合家户型不太一样,但方法基本都是一致的,都可以先将房子布局画成一个简单的网状图开始:

然后照着图想象你入住以后会从哪到哪。......总之就是打开头脑风暴进行无限的想象,类似的洗衣机位置摆放,厨房布局可以如此想象。

还是不懂?那我来举个栗子~
模拟1(从外到内):最简单的比如回到家去客厅、餐厅、或者直达主卧;

模拟2(从内到外):比如卧室出来到客厅,从卧室到阳台,比如我家走廊到餐厅厨房要先经过入户门,所以我家餐厅不需要双控;

模拟3(不同时间):比如清晨上班、晚上起夜,所以床两边的吊灯我们是分别控制的;
模拟4(不同场景):比如晚上起来煮夜宵、客厅看完电视回房睡觉,所以走廊前端需要可以控制客厅灯光;

模拟5(不同人群): 小孩/长辈回自己房间,如果客人来家中住又不会影响到你,所以走廊末端的控制不能放主卧内。
......
如果怕遗漏或者实在想不出来,可以傍晚自己去房子里进行模拟尝试。
三、灯光线路及控制草图绘制
经过头脑风暴之后,心里已经有一定的数了,也应该知道往往走廊都占着控制的中枢地位,接下来对应到户型图就变得简单了,但是控制图的前提一定是从灯光分布图基础上进行的。
分享一下我自己的草稿,一开始就是用手机将一些零碎的想法画下来,慢慢就完成了。
草稿1:
我最先考虑的自然是由外向内,还有客厅多组灯光的控制以及离开控制,然后客厅延伸到阳台。
场景是晚上回家打开至走廊灯光,走廊前段能打开至走廊后端灯光并关掉刚才的灯光,走到走廊末尾能也是同理打开关闭,最后进入主卧。
将前面的动线模拟一个个套进来,考虑你要干嘛,哪里灯是需要亮和暗的。

草稿2:
在1的基础上加上了各房间与阳台控制,并且对具体线路开始一定的优化,根据线的数量就能标记有几开了,门口标5是我没画出灯带。

草稿3:
和老婆仔细讨论每个位置和控制的方案,认真分析一遍动线人的走向和位置需要哪里灯亮,然后用电脑正式画了一个比较正式的版本。

草稿4:
这个版本主要纠正灯带只能做u型的,以及客厅开关具体位置,因为进门左侧是一个1米格挡,所以无论进门还是沙发都是摸到的,最后灯光控制位置决定为进门左右两侧,取消沙发左侧的控制。

最终水电定位使用版本:
最后通过颜色将每条线路和开关对应并标记出来,便是拿去水电定位施工的平面图版本了。不过实际连接灯的电线并不是由我画的,而是由电工来具体安排,下面会有说明。

实际调整与补充
衣柜定制那边不专业,都没由和我提及柜内灯光,我开始也没有考虑衣柜内灯光的问题。后来意识到了,好在家里电线已经布得比较的多,所以可以像从邻近房间打墙穿线的方式取电,不过主卧的取电可能需要吊顶内穿取了。

另外上一文我也提及了我后来意识到灯带的结构光补充,所以便有了下面这个灯带的灯光简略图。
比如窗帘、电视柜、床、衣柜等位置,使用灯带用红线表示;
比如橱柜吊柜、玄关柜、浴室镜柜都预留了线用红色方块表示。

不过拥有了这些平面图就能完成水电定位了吗?然而它只是解决了开关的平面问题和控制灯光的想法,虽然位置基本都会定在插座旁边(130cm左右),但开关还关联着每个房间位置的插座问题,所以下面开始画插座,是不是觉得装修实在是太难了。

四、确定开关&插座位
1.插座类型及原则理念
插座应该都能看懂,就不需要我啰嗦了。
标准五孔插座足够绝大多数情况使用,只要2孔和3孔距离不是过近的;空调等大功率电器需要用16A的插座。

智能插座
惯例的还是智能插座,在目前租房的地方倒是有安装几个智能插座控制热水器、空调等设备,不过新房估计用的燃气热水器和中央空调,所以家里智能插座并不多,打算之后需要再加外挂的。
而中央空调的智能方案绿米线下店我有去问过,差不多3000块一套,不算很贵也不便宜,所以我也没采用。

说一下我的开关插座理念:
1.多预留——可能有些插座我也不知道留着干嘛用的;
2.尽量不用地插、带USB——地插不见得实用,USB容易坏还是慢充,不如加充电头;
3.少用带开关的插座和智能插座插座——大电流开关容易烧坏,可结合空开来控制,智能4插座毕竟贵不少。
4.不能挖孔使用的家具避免被遮挡,影响美观的尽量想办法遮挡。
2.立面图&定位
之前有看过不少牛人自学各种设计软件绘图的,我尝试学习了草图大师,结果没听几节课就睡着了。后来一想自己目前只需要一份图,今后也不会给人家设计,用自己熟悉的工具稍微花点功夫画出来就好了,于是我用PS标注尺寸的方式解决了。最后拿着有具体高度和距离的图纸,再一次水电定位的时候就不会手忙脚乱了。
其实插座开关定位也没有想象中那么难,通常只需要记住四个数值,根据自家家具标注预留即可:
15cm:门框预留要超过15cm;
30cm:一些落地的电器大多数是30cm;
50cm:一些在桌面或者台面下的又不希望离地太近的选择50cm;
130cm:而桌面和台面上方便人手触摸的130cm,所以灯光开关、绝大多数位置都是在这里。
插座的具体位置还是要根据你家里的层高、吊顶、桌子、柜子、沙发、床、地板这些来调整的,不可能存在万能通用的数据,都是需要你确定你家中的相关家具然后来确定位置。另外我们家又多了点美观的要求,所以又得考虑遮挡和露出的细微调整。
其实就算不会PS、CAD等设计软件也并不难,只要你愿意拿尺子在纸上按着尺寸和比例画也是完全没有问题。
客厅:

每家的电视墙结构、电视柜方案都各不相同,我仅仅拿我家里的来举例:
我的电视柜是悬挂设计的,我这样的电视柜高度在35-40左右,足够放入功放等各种电器设备。两旁插座在电视柜下方,中间在电视柜后方,
客厅我家里是铺地板的,所以需要预留地面找平5CM+强化地板1.0—1.2CM+0.5CM地膜+7—10CM 踢脚线,就是这样电视柜下方的插座最后定的离地17cm,电视柜后的插座也就好安排了。
客厅需要根据沙发高度、身高、电池尺寸大致定位电视的位置,我是接受不了一排插座暴露在电视柜上方的,所以需要预埋50管来解决,只是这里有一半是承重墙,所以后来选择偏右非承重墙打50管解决,只是一些线可能需要长一些。
左上角预留的是 电动窗帘和电动幕布以及摄像头的位置,其实可以内嵌吊顶槽内的,但我当时担心电工与木工衔接可能会出问题,所以保守的采用层高-吊顶30-40cm方式预留。

客厅这一面是最让我和老婆头疼的,沙发墙上实在太多东西了(还有没设计的猫墙)。
3个比较明显的白色方块分别是强电箱、可视门禁、弱电箱,这些都是收房就有的,需要你去测量也可以移位。强电箱我们打算用猫抓板遮挡;可视门禁由于130的黄金位置被开关和后置音响占用,所以后来改到了门的另一侧;弱电箱我是改接到娱乐室。
130cm黄金位置放开关(紫色),上方终于空出来放后置的音箱(没标)。
而沙发两侧的插座通常为50-70cm,具体则需要根据沙发结构与两侧高度来调节即可;
投影仪的位置需要预留HDMI*2、网线*1、电源线*1 ,层高-吊顶30-40cm,具体要根据吊顶情况结构而定。

餐厅:
餐厅则简单的多,直接沿用50和130调整就行,具体参考餐桌和吧台高度。

将门禁、中央空调面板以及餐厅的灯都放置在门的这一侧。餐厅墙大概率是一整面墙的格子柜,所以当时的开关插座原则是留空中间位置。而格子柜就算挡到了其实基本也没有什么影响。


厨房:
厨房虽然当时是交给橱柜那边设计的,直接预留的一根从地面冒出的电线,之后再分接完事,现在回看的话也大多数还是那50和130参数。
水槽下通常需要预留的垃圾处理器、净水器、洗碗机这些。

冰箱一定要注意预留具体型号的散热和开门空间,而热水器和燃气灶要注意插座需要与插座超过30CM,不然开通燃气可能会遇到麻烦。



卧室:
卧室的插座预留也不难,床两旁注意不被床和床头柜挡住就好,我这里则多了一个床底造型灯的插座,这个需要被床挡住。

另一面需要考虑床和门的位置,定位电视大概的尺寸和位置,而空调插座则根据空调孔附近预留。


卫生间进口右侧130cm安排各种插座和开关,洗漱台下方是小厨宝的电路预留。
卫生间:
蓝色管子是我预留的壁挂洗衣机的进出水口、电源,最好的状态其实应该和排污管一起包管子而下,而且浴缸也可以遮挡下方,下方注意预留出水口,当时我不知道而是承重墙硬要求直接马桶位置开了50槽,师傅骂骂咧咧了半天。
马桶边插座最好至少预留2个,边上厕所边充电相信也是存在的。


客卫其实和主卫基本类似了,只是我家的洗衣机和烘干机是设计在客卫的,所以注意预留电位和地漏。


其他的就不多讲了,具体还是要根据家中家具摆放来规划,最后自己也得出了要买的开关插座的数量,当然和电工开的单子还是有些出入。

五、智能家居1.0版本
相关位置的插座数量表格里面也已经标注清楚了,其中智能部分对我而言更像锦上添花而不是雪中送炭。
关于智能开关和插座应该从一开始设计的时候就应该加入和考虑的,但比如灯光或插座还是应该按没有智能部分来预埋。线的成本远没有智能配件贵。而且网络不好或者不想用智能开关完全不影响日常使用,最后如果有一些考虑欠佳的环节智能家居再用来补充,毕竟这些都是很贵的。
这里只涉及到灯光,所以只写一下智能家居里面的灯光部分的设计概念,需要安排智能开关的具体位置,之后安装也不会搞错:
好用:尽可能覆盖全屋;而餐厅、卫生间、阳台没覆盖的地方基本使用智能灯泡、灯带等方案解决。
节约:尽量少的使用,我家只用9个开关就解决了。
美观:开关尽量款式统一,一个位置要用就全用智能开关,要么就全用传统的。

六、水电路改造
水电路为什么是最重要的环节之一,主要原因是涉及太多工序并且做好和埋管之后基本很难再去修改,然而经常有看到装修群友问水电验收的时候应该注意什么、看什么,其实等水电都已经做好了再看已经晚了,除非你发现致命缺陷,不然基本无力回天了。所以水电路部分还是应该在施工之前和施工时的监工,甚至在签合同之前就应该想好,因为水电路是装修公司最赚钱的项目,里面的玄机和套路都非常多,签合同交钱之前一定要将备注看清楚以及列好要求。
前阵子看到一家140平的水电费用是3W,仅仅是灯线的费用就报了1W,我家120平这么复杂的电路全部工程只是花了1W而已,可想里面的利润有多大。
这部分内容主要讨论的是成本和用料,我们最希望的自然是花最少的钱用更多更好的材料,而装修公司目的永远只有一个:让你花更多的钱。
1.电线
首先要知道的是电线和网线单卖并没有多贵,详情参考本地市场和网上售价,如果那些装修公司报价很高,你是半包的话完全拿自己买材料和他砍价。
通常插座是3根线:火线、零线、地线;灯具是2根线:火线、零线;
但也听说不少地方的装修公司灯具都是只安装单火线的,所以这就需要你要求他们装零线,或者自己买零线给点钱电工装上就完事了,不然比如像智能开关智能安装单线的版本且不如零火双线安全。
其次(铜芯)电线地域化非常明显,基本都会选择当地有名的厂家,这问题都不大,只要是符合国标的就OK。
通常电线粗细:灯光照明通常1.5方 ,普通插座、家电2.5方;大功率电器4方;空调、厨宝、电热水器等可以4方专线;中央空调6方;新小区入户总线通常10-16方,如果老小区入户线偏小换大室内线也是没用的。
电线材质:
电线虽然都是铜芯线,但还是有BV和BVR的区别,BV线是较硬的单芯硬线,BVR是较软的多芯软线,它们相同面积的所承受的电流相同。

硬线:
- 1.价格便宜,所以定死水电工程价格的基本都会选择硬线;
- 2.不耐折和较难穿线;
- 3.由于电流的趋肤效应,相同截面的硬线相比导电能力要弱。
软线:
主要缺点是价格相对要贵一些,所以有些报价高的装修公司会以用好材料为名头,报出更高的工程价;
但是如果不考虑价格,仅从导电能力、耐用、安全等方面考虑,多股软线自然比硬线要好。
这些也是我们过节和工厂里当电工的亲戚聊起知道的,他说你们不知道装修公司肯定包的是硬线,所以让我们加点钱换软线(最后大概加了1000),像工厂有钱都是优先考虑的软线,而且软线多少年后还是那样使用。当然家装要考虑到成本的问题,具体就看你如何选择了。
2.电路和水路走法
首先水路需要确定的是吊顶、空调、地暖的有无情况,如果家里没有地暖的话,水走天还是走地呢,都没有绝对的好与坏,具体就看你如何选择了。

热推的水走天似乎也只有方便检查维修的优点,另外漏水概率基本也是万一,这和你平时买不买保险同理吧。
我这里装修公司默认的水走地,而且伟星对水管质保50年,*压打**完成之后也基本不用担心漏水的问题,所以在水管选择上一定选择知名有售后保障的品牌,某些号称德国进口的“德标”居然广告宣传质保2年升级到10年。水走地唯一我觉得有点问题的是卫生间可能走天会稍微更理想一些,不需要在卫生间打长横槽,而且就算漏水也不怕。
当然预算充足也可以选择水电都走天的方式,口袋决定方式。
另外是否做热水循环一定要早早计划好,我当初就是不想做回水的,最后说想做要加2K的钱,那还是算了吧。

下面说一下电路的几种走法:大弯活路、横平竖直、点对点。

这也涉及到你家里电路的收费方式:按面积、按回路数、按用线长度......
比如像我家里回路较多,自然是按面积计算然后使用大弯活路的走法是最划算的,因为钱是固定的用料越多自然越好,而且大弯里的线后期是可以自行抽出和更换的,当然如果开槽的时候就按着活线的走法,走墙的槽都拐角来开的话,效果应该会更好。

如果家里回路较少,自己购买线材的话点对点是最省钱的;
但是通常装修公司会让你按使用长度来计算,然后按横平竖直的方式走线,美其名曰“整齐好看”,实际就为了走更长的距离赚更多的钱,而且90°弯导致日后想换线穿线都会非常困难。但是电线都是埋在地板下的,电线排列得好看不好看装好之后有何区别,只需要你留好相应电线走向的照片和线路图纸,防止施工碰到就OK了。

另外在网上看到这样的图片,一般电线走地也不需要专门去打槽弄得“整齐美观”,因为打槽装修公司通常又需要额外人工和花费,而且还会破坏楼板的结构。
3.电路回路规划
按用电功率来考虑电线,国标电线只要不是假冒伪劣不合标准的都会满足相应的标准,这是我查阅的国标允许的长期最大电流量,所以只要电线的最大电流/功率不超过这个数值来安排都是合适的,而且这还只是理论安全值,最大值还会更高,比如6方线你偶尔几个电器一起使用到9KW也不会有问题,但用电还是要注意安全,多听取专业电工的意见和建议。

通常家装使用的电线都是1.5方-4方:
肯定有人会想有钱家里全4方就没问题了,实际上全4方浪费钱不说,对于一些灯具、插座等设备甚至因为太粗反而不好接线,更别说因此而变动的管子直径和数量,预算充足可以选择总路4方,然后连到插座和灯具的还是2.5和1.5。
当然我家水电是一口价的(1W左右),所以当时是尽可能的薅4方的线,最后多路总线都是4方的线(偷笑),电工一直在说你真的赚了,所以在施工的时候对工人们稍微好点还是有必要的。
关于1.5方的线通常只用在照明线路上,有大佬曾和我说1.5方的线很细,可以考虑用2.5方的线接灯,这里还是涉及到你和装修公司水电结算方式的问题,如果价格不变用2.5方当然也没问题,如果需要加钱换到2.5方实际也没什么必要,自己买线也可以照明就买1.5方的,现在普通LED灯最多20W左右,就算你家所有灯一个回路也不可能到2KW的功率。
我家的灯虽然也很多,但都是为了施工方便就近房间取电的,日后维修和断电好像也没什么不便,也可以所有灯具一个回路。
想想那天看到别人2.5方的灯光线全屋下来1W块,如果无法讲价那我绝对是要用1.5的线了。
通常你只需要列好相应的电器和匹配上面表格的功率,然后像我这样将全屋电路回路的规划一下,然后告诉电工师傅执行就OK了:
1.主卫 (马桶1500W+浴霸2000W+吹风机2000W)4方
2.主卫小厨宝 (1500-5000W) 4方
3. 主卧 2.5方
4.娱乐室+走廊摄像头 2.5方
5.娱乐室空调位+地面附近插座 4方
6.北卧 2.5方
7.衣帽间+阳台(含摄像头)+客厅摄像头 2.5方
8. 客厅 2.5方
9.餐厅+吧台 +厨房橱柜 4方
10.厨房高柜+集成灶+热水器 4方
11.冰箱+旁边插座 2.5方
12..中央空调外机 6方
13..中央空调内机 1.5/2.5方
14.客卫 (浴霸2000W+吹风机2000W+烘干机2000W)4方
15.弱电箱
回路划分原则:空调、小厨宝、大功率电器、冰箱单独回路,也看到有人说冰箱直接不进总空开;卫生间大功率电器较多使用4方;厨房大功率电器较多可以考虑6方或像我这样两路4方,而且还解决了很多想通过带开关插座来控制橱柜下电器;另外我的一些网关、摄像头、路由器这些也都是有一定的规划和划分的。
卫生间大功率电器:电热水器、立式空调、即热型马桶、即热型厨宝、烘干机、电吹风、烤箱等;
不离线电器:冰箱、智能网关、摄像头、宠物喂食器/饮水机、路由器等;
最后关于空开我就不班门弄斧了,其实关于用电安全的问题建议更多的交给电工。每个水电工给你做完水电都会给你开出采购的单子,你就照着它开的单子去购买空开就OK了,不同电线粗细对应不同的空开大小,入户总空开如果超过房开电表配的空开也是无用的。另外有钱任性可以所有电路都带漏保;中间型可以选择卫生间、厨房等回路额外带漏保;经济型可以选择总路带漏保,支路都不带漏保。很多问题其实你摸摸口袋就知道怎么选了。
通常你只需要将你的需求和要求告诉电工,一般也不需要水电特别具体的线路图,因为他们都会根据情况和经验施工的,以下也仅仅是我最后按照当时线路走向画的一个走向线路备份,只是留作方便查看房间地面线路大概位置和情况使用的。

七、未完
本来一开始是讲灯光的,然而写文就会发现涉及到的知识和内容真的太多太多了,这就是装修为什么那么难的主要原因之一,国内的现状就是你稍微好讲一些就容易被人当成傻子,你不懂点知识就非常容易被坑,而那些稍微懂点或者行内人士总是想方设法的推报价高的方案,所以在选择装修公司的时候建议多看几家、多看看工程报价的备注内容、相关工艺的工程价和无聊价格,你多懂一点往往就能让你多省不止一点。
装修太难了(1)—装修套路千万条 |避坑、防套、省钱归纳汇总
现在家里还在刷漆的阶段,文章都是以我个人角度出发而写,也存在不完善的地方,如果之后完成有的话再进行补充。为了想尽可能的讲清楚也是查阅了知识和资料,如果有不准确的地方欢迎讨论和指出。
写了一大堆,感觉总算是把上一文基本补充完整也将一大块内容圆满了。
想想似乎好像少了些什么,应该是家庭影院、网络和监控视频的布局这些吧,有机会再补充。
好了,我是zouzoulong,欢迎点赞关注交流~~~~