
图纸编号 1614
尺 寸 面宽 14.3米 进深 12.5米
建筑面积 301.0㎡
设计机构 易盖房殊舍建筑
土建造价 58.6万
项目概况

△总平面示意图
基地情况:
东:邻家住宅
西:邻家住宅
南:村内道路
北:村内后山
项目简介:
业主在项目前期对平面布局有较为明确的想法,并将自绘的平面图提供给设计师参考;立面造型喜欢简洁大方的新中式风格。设计师根据场地情况,及业主的需求及喜好,将项目确定为双层新中式别墅。
平面布局
户型概况:
2层 / 6室 2厅 7卫 1厨 1洗衣 1书房 1阳台 1露台

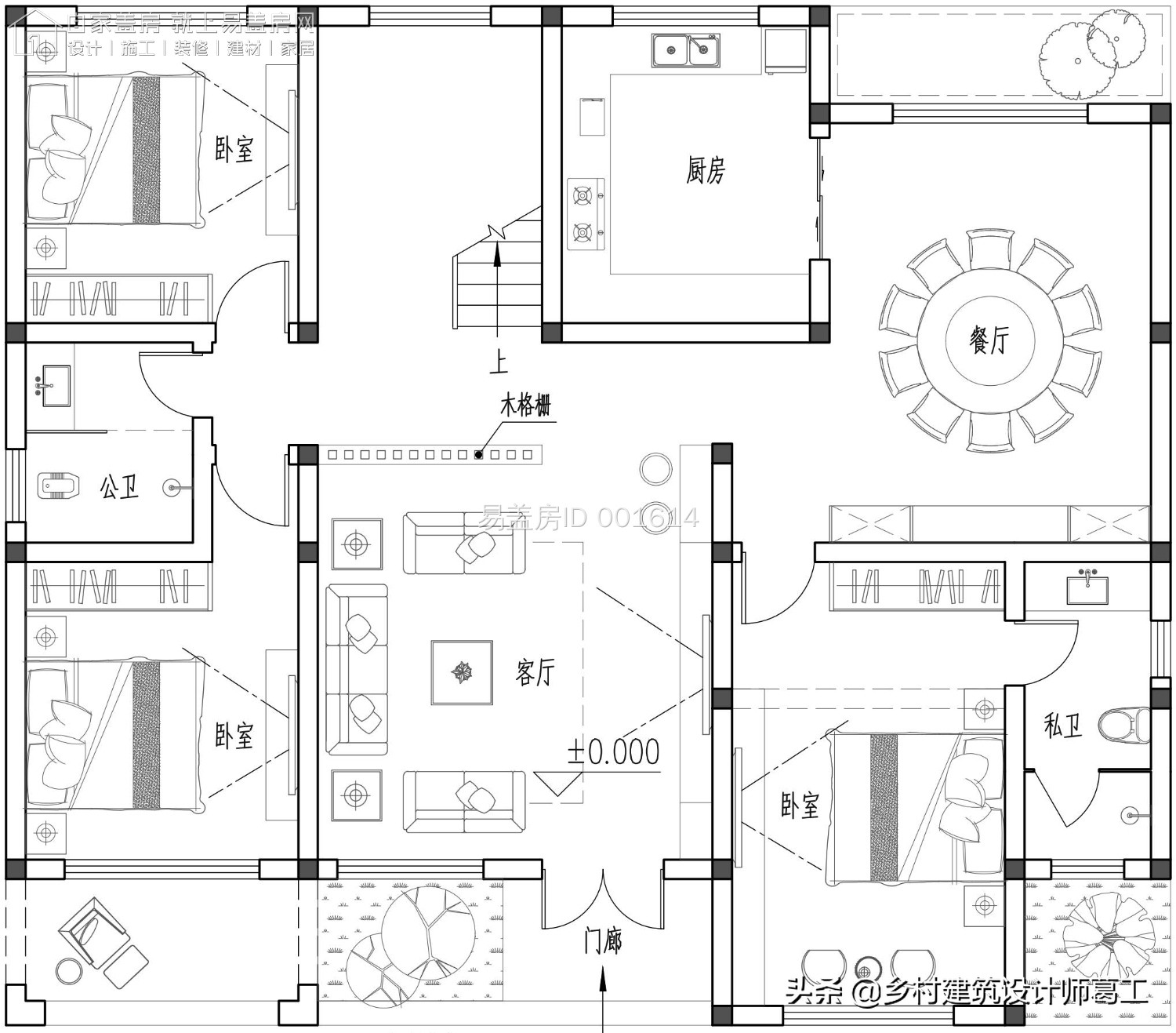
△一层平面图
一层整体的动静划分较为明确,由南侧入户,方便日常出入;卧室置于西侧,东北侧的厨房空间内部设置次入口,使业主及其家人出入更加便捷。

△二层平面图
二层以居住空间作为主要诉求,东南侧的主卧套房,预留衣帽间和独卫区域;南侧的起居室向外延伸出露台空间,丰富建筑的娱乐休闲空间。
造型设计

△鸟瞰图

△南侧效果图
建筑整体为新中式风格,立面采用两段式设计,突出简洁大气的效果,搭配挑出的檐沟,深浅的呼应,同时融入一些现代元素手法,凸显整体的“刚柔并济”。

△西南侧效果图

△鸟瞰图
主立面的窗户采用大开窗设计,通透玻璃与休闲空间搭配,利用深色窗框做局部点亮。宽阔的室外空间,摆上舒适的桌椅,在阳光之下,伴着微风,在家便可享用度假的惬意。

△南侧效果图
建筑主立面放到南、北两侧,与前后庭院相呼应;利用露台空间将其进行联系,让居住者在室内各处都能享用到庭院的美景。

△东立面图

△西立面图

△南立面图

△北立面图