公租房.
东城配租公租房啦!
房源都在通州!!
东城区发布公告,位于通州区的璟秀欣苑、盛达嘉园这两个公租房项目的剩余房源,将面向东城区保障房轮候家庭进行快速配租,8月14日起登记。
一
房源情况

璟秀欣苑公租房项目,位于通州区台湖镇东石东三路7号院。本次可配租房源共计26套,其中小套型8套,建筑面积约为39.05-39.43平方米;中套型10套,建筑面积约为51.69-51.99平方米;大套型8套,建筑面积约为57.38-58.02平方米。租金标准为31元/建筑平方米•月。
盛达嘉园公租房项目,位于通州区台湖镇东石东五路2号院。本次可配租房源共计72套,小套型15套,建筑面积约为39.05-41.42平方米;中套型53套,建筑面积约为51.65-53.29平方米;大套型4套,建筑面积约为57.31-58.11平方米。租金标准为31元/建筑平方米•月。
租金包含物业费,不包含供暖费、水费、电费、燃气费、电话费、上网费、有线电视初装及收视费等。
二
配租对象和登记原则

1
配租对象
2019年8月9日(含)前通过“三审两公示”程序获得公租房备案资格,且尚未配租、配售保障性住房的东城区保障性住房轮候家庭。
本次配租家庭分为第一序列优先家庭、第二序列优先家庭及普通家庭。
第一序列优先家庭:
2018年11月20日前,经民政部门认定的低保、低收入或特困资格未进行保障的,且2018年11月20日至2019年8月9日期间未参加过公租房配租的轮候家庭。
第二序列优先家庭:
经廉租住房、经济适用住房和限价商品住房轮候取得公租房备案资格的家庭(统称“三房轮候家庭”),或家庭成员中有60周岁(含)以上老人、患大病或做过大手术人员、重度残疾人员、优抚对象及退役军人、省部级以上劳动模范、成年孤儿、计划生育特殊困难家庭和市区有关部门认定的见义勇为家庭。

普通家庭:
除第一序列优先家庭、第二序列优先家庭以外的其他保障性住房轮候家庭。
特殊说明:此次登记通过系统自动采集家庭资格信息,如申请家庭资格正在变更或正在进行其他住保业务可能无法正常注册登记。如满足上述条件的家庭不能注册或注册成功后系统显示家庭信息和实际不相符的,请前往户籍所在街道,由民生保障办窗口工作人员协助登记。
2
登记原则
一个家庭仅可选择唯一套型进行意向登记,且选定后不能更改。申请家庭应按照公租房备案通知单中所规定的套型标准进行意向登记,不允许升、降档登记。如发现申请家庭同时登记多个套型,该家庭登记结果将自动作废,并取消其登记资格。
已经签约配租、配售其他保障房项目的家庭,不得参加本次房源意向登记。
三
配租排序原则

1
配租原则
本次配租工作按照“第一序列优先家庭先配租,第二序列优先家庭及普通家庭后配租”的总原则进行配租。第一序列优先家庭按照排序号配租完成后,第二序列优先家庭及普通家庭按照排序号进行配租。
2
排序原则
1.第一序列优先家庭排序原则
第一序列优先家庭中,意向登记时间早的家庭排序在前,意向登记时间晚的家庭排序在后。
2.第二序列优先家庭及普通家庭排序原则
第二序列优先家庭及普通家庭按照备案年份、优先配租情况、意向登记时间进行排序,具体排序原则如下:
(1)备案年份早的家庭排序在前、备案年份晚的家庭排序在后。
(2)备案年份相同的,具备优先配租资格的家庭(第二序列优先家庭)排序在前、具备普通配租资格的家庭排序在后。
(3)备案年份、优先配租资格相同的,意向登记时间早的家庭排序在前、意向登记时间晚的家庭排序在后。
意向登记工作结束后,按照排序原则对登记家庭进行分项排序,并在数字东城区住房和城市建设委员会网站公示。
四
配租程序

1
意向登记
1.登记时间
2019年8月14日上午10:00-8月16日下午17:00(3天)
登记结果仅针对本次配租工作,公布房源配租完成后,登记结果自动失效。
特殊说明:登记时间截止登记系统将自动关闭不再接受更改登记意愿申请。
2.登记方式
本次意向登记工作由申请家庭通过网络自行登记的方式进行。申请家庭自行登录北京市保障性住房建设投资中心官网(http://www.bphc.com.cn/),点击“业务办理”—“快速配租登记”按钮进入登记系统界面,并按照相应提示进行操作。
对于不熟悉电脑操作或网络办理意向登记存在困难的家庭,也可在规定时间内携带身份证原件及保障性住房备案通知单原件,到街道民生保障办由工作人员协助进行网络登记。
3.协助登记时间及地点
协助登记窗口开放时间:2019年8月14日——2019年8月16日,上午:9:30-11:30,下午14:00-17:00。
各街道协助登记地点如下:
(↓往下滑动看全部内容)
安定门街道民生保障办:东城区分司厅胡同41号
联系方式:010-64061303
北新桥街道民生保障办:东城区民安街14号
联系方式:010-64025446
朝阳门街道民生保障办:东城区朝阳门南小街西水井胡同3号楼
联系方式:010-65229445
崇文门外街道民生保障办:东城区西花市南里东区14号楼
联系方式:010-67022697
东花市街道民生保障办:东城区富贵园小区三区1号楼
联系方式:010-67183042
东华门街道民生保障办:东城区东安门大街55号
联系方式:010-65251244
东四街道民生保障办:东城区东四六条17号
联系方式:010-84050686
东直门街道民生保障办:东城区新中街66号
联系方式:010-64173264
和平里街道民生保障办:东城区青年湖南里24号院内
联系方式:010-84122055
建国门街道民生保障办:东城区建国门赵堂子胡同16号
联系方式:010-65278843
交道口街道民生保障办:东城区豆角胡同33号
联系方式:010-64038169
景山街道民生保障办:东城区美术馆东街1号
联系方式:010-84016772、84017939
龙潭街道民生保障办:东城区光明楼23号楼
联系方式:010-67168208
前门街道民生保障办:东城区南芦草园1号
联系方式:010-67029338
体育馆路街道民生保障办:东城区法华南里26号
联系方式:010-67108246
天坛街道民生保障办:东城区西草市东街66号
联系方式:010-67029128
永定门外街道民生保障办:东城区沙子口路70号院南楼1层102号
联系方式:010-67220477
4.登记标准

5.意向登记排序结果公示
意向登记家庭排序名单将于2019年8月20日前,在数字东城区住房和城市建设委门户网站上进行公示。
2
资格复核和选房入住
东城区住房保障管理部门对登记家庭进行资格复核。复核结果可向户籍所在地街、区住房保障管理部门咨询。北京市保障性住房建设投资中心将依序对复核通过家庭策划选房入住。
五
其他

北京东城区住房和城市建设委员会负责本次配租策划工作,北京市保障性住房建设投资中心负责本次配租工作的具体实施。
数字东城区住房和城市建设委门户网站:
http://www.bjdch.gov.cn/n7369201/n7425844/n7425862/index.html
咨询电话:64027600、64047711-6316、64047711-6311
咨询时间:工作日,上午9:00-11:00;下午2:00-17:00
附
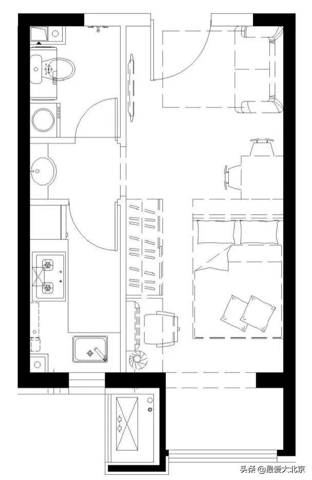
1
璟秀欣苑公租房项目户型图
小套型零居室B类户型

中套型一居室D类户型

大套型两居室A类户型

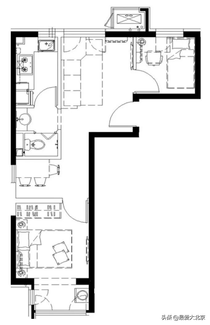
2
盛达嘉园租房项目户型图
小套型零居室B反户型

中套型一居室D反户型

中套型一居室A1户型

大套型两居室A户型

【公租房你问我答】
Q
什么人可以申请公租房?

1
"三房"轮候家庭
即廉租住房、经济适用住房、限价商品住房轮候家庭。
三房”轮候家庭是?
指的是已通过廉租住房、经济适用住房或限价商品住房资格审核正在轮候的家庭。
简单说,三房轮候家庭就是指廉租房、经适房及限价房轮候家庭。
什么是三房轮候优先?
三房轮候家庭是指廉租房、经适房及限价房轮候家庭,除三房轮候家庭外还有公租房轮候家庭,在摇公租房时,三房轮候家庭优先于公租房轮候家庭配租。
也就是说,这个优先是相对于(本次)公租房来说的,这次算优先,不是指你限价房配售时也优先哦。
2
其他具有本市城镇户籍家庭
家庭人均住房使用面积15平方米(含)以下;3口及以下家庭年收入10万元(含)以下、4口及以上家庭年收入13万元(含)以下。
注:市住房城乡建设主管部门会同市相关部门根据本市人均可支配收入水平变化等对上述标准及时进行动态调整。

3
外省市来京家庭(新北京人)
申请人应具有完全民事行为能力(年满18周岁)且年龄不超过45周岁(含)
申请人持有本市合法有效的居住证
申请人家庭成员在北京均无住房
申请人在京(项目所在区)连续缴纳社保或个税满5年(60个月及以上)
申请人须在京工作,工作单位须在北京注册,所处行业符合北京市产业发展需要
注:各区的公租房项目一般会要求申请人必须在所在区工作(主要看社保缴纳地),比如朝阳区的公租房,申请人必须在朝阳区缴纳社保,在其他区缴纳社保的不可以申请。当然,具体还是要依各项目而定。
Q
家庭年收入10万以内是指税前还是税后?

北京户籍家庭申请公租房要求家庭年收入在10万元以下。那么,家庭年收入10万以内是指税前还是税后?北京公租房家庭收入如何计算?
北京公租房家庭收入如何计算?
家庭收入是指家庭每个申请成员在申请当月前12个月的全部收入总和,包括每个人的工资、奖金(含年终一次性奖金)、津贴、补贴、各类商业保险金及其他劳动收入、储蓄存款利息等。公积金、税收和各项社会保险统筹费不算在内。
家庭年收入10万以内是指税前还是税后?
指的是税后收入——可支配收入。
申请家庭收入证明中“上年本人收入合计”为家庭成员申请当月前12个月的可支配收入,包括工资、薪金、奖金、年终加薪、劳动分红、津贴、补贴、养老金、其他劳动所得及财产性收入。不包括个人交纳的基本养老保险费、基本医疗保险费、失业保险费、工伤保险费、生育保险费等社会保险费、住房公积金和个人所得税。
Q
什么人可以优先配租?

•廉租住房、经济适用住房和限价商品住房轮候家庭优先配租;
•申请家庭成员中有60周岁(含)以上老人、患大病或做过大手术人员、重度残疾人员、优抚对象及退役军人、省部级以上劳动模范、成年孤儿优先配租。
Q
公共租可以租多久?

公共租赁住房租赁合同期限由双方约定,一般为3年,最长不超过5年。
承租人有下列情形之一的,应当腾退公共租赁住房:
(一)提出续租申请但经审核不符合续租条件的;
(二)租赁期内,通过购买、受赠、继承等方式获得其他住房并不再符合公共租赁住房配租条件的;
(三)租赁期内,承租或者承购其他保障性住房的。
承租人有前款规定情形之一的,公共租赁住房的所有权人或者其委托的运营单位应当为其安排合理的搬迁期,搬迁期内租金按照合同约定的租金数额缴纳。
搬迁期满不腾退公共租赁住房,承租人确无其他住房的,应当按照市场价格缴纳租金;承租人有其他住房的,公共租赁住房的所有权人或者其委托的运营单位可以向人民法院提起诉讼,要求承租人腾退公共租赁住房。
特别提醒
1、按照有关规定,申请家庭承租的公租房只租不售,不得买卖!
2、入住公租房后不可以转租、转借,否则房屋将被收回!
3、申请公租房是不需要缴纳任何费用的,市和区住房保障部门也不会委托任何单位代办公租房申请和租赁业务,凡是打着代办公租房手续,收取高额手续费的,一定是*子骗**!千万不要上当!
最爱大北京整顿发布,未经授权禁止转载!