油烟机选不好,做饭就如同打仗一样,满身的油烟味久久不散,油烟机选购要点是什么呢?安顺装修网给大家整顿了以下这篇文章,给大家介绍一下家用油烟机选购方法,希望可以帮助到大家。

一、科普:影响排烟效果的3大关键参数
市面上常用的油烟机主要有两种:侧吸和欧式顶吸。中式油烟机或者集成灶等也有人选用,但是侧吸和欧式顶吸是市场的主流烟机款式。油烟机怎么选?其实购买的时候主要是要看这3大关键参数,选购的时候可以着重对比和了解。
一个好的油烟机的参数应该是风量大、噪音低、风压大才是好油烟机。
1、顶吸和侧吸哪个排烟效果好?
根据中国消费者协会是市场上的16台油烟机做的测试,得出结论:当厨房有油烟时,顶吸的排烟效果比侧吸好。

而其中欧式顶吸还可以分为浅罩型和深罩型,深罩型比浅罩型的集烟腔更大,拢烟效果更好,排油烟更彻底,可以根据自家厨房的条件选择。

但是侧吸的颜值高点,然后不会碰头,也是许多爱好侧吸的人首选。比如方太侧吸式油烟机的风魔方,排烟效果也不错。
2、风量选多少量排烟效果最合适?越大越好吗?
风量的大小从12m³/min→21m³/min不等,风量越大,会让油烟排放的速度越快,漏出来的油烟就少了。风量大的油烟机会很快速把油烟排干净。建议家庭选购15m³/min→18m³/min就足够家庭使用,选购的时候可以看商家标出的风量值大小。

科普知识:有些人说那我买风量最大的油烟机就好了,就没有油烟。但是风量不是越大越好,太大风量会带走过多热量,影响烧菜,而且产生的噪音也大。噪音值要在70分贝以下最合适,不然太大噪音会吵的头晕眼花,影响做饭。19m³/min、20m³/min噪音会去到72分贝,选购的时候可以现场感受下噪音是否能接受。
3、风压选多少排烟效果最好?
风压值越大,油烟机的抗倒风能力越强,排烟效果越好。
选购的时候要看一下烟机的风压,特别是高楼和使用公共烟道的,建议选购风压达到280Pa,才能在做饭的高峰期不会被公共烟道的烟倒灌进来。选购的时候风量大,风压也大,可以参考一下。
二、选购抽油烟机要匹配你家户型和需求
有些人说选油烟机还要考虑家里的户型还有需求?是的,这个很关键,因为不同的户型和厨房结构会影响油烟机选购类型。
1、户型匹配:

小户型或封闭式厨房:建议选购侧吸式抽油烟机,吸力风量在15m³/min上下足够使用。

开放式、半开放式、岛式厨房:建议选购顶吸式抽油烟机,吸力风量在17m³/min以上才能减少油烟。
2、需求匹配:
如果家里很少开火,不常做饭,只是偶尔煮个面,从颜值和价格上来考虑,可以购买吸力风量15m³/min就可以了。相反如果家里喜欢爆炒,即使是封闭式厨房,建议购买吸力风量在18m³/min以上才能尽快排烟。
三、安装和清洁没做好,多贵都不好用
抽油烟机的正确安装方法:

抽油烟机的安装的好会让它发挥最大的功效,反之如果没有安装妥当,即使买的超贵,最后的使用效果大打折扣。
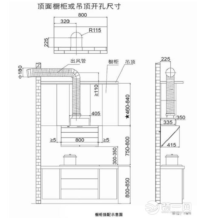
1、装烟机之前,墙上先要开一个直径18cm的烟道孔,不能太大或太小都会影响排烟效果。

2、油烟机的安装高度也有规定范围,油烟产生和上升规律,建议侧吸的油烟机安装高度在离台面大约35-40cm最合适,顶吸的油烟机安装高度在离台面65-75cm上方最合适,避免安装太低影响炒菜,太高导致油烟机抽风效果大打折扣。
3、安装位置尽量选择靠近公共烟道,减少油烟传送的距离,使得排烟速度加快,风道少拐弯。
4、止逆阀一定要购买最好的,防止公共烟道的烟倒灌。
抽油烟机的正确清洗方法:

不要相信自动清洗或免拆洗的噱头,清洗油烟机还是有必要的,特别是用了几年之后发现烟机不好用,那是因为里面脏了。里面会有油污在机器里面会导致磨损,排烟能力和寿命降低。
1、如果购买了没有带自动清洗或免拆洗,建议定期半年拆卸下来清洗。
2、如果是自带自动清洗功能或免拆洗,建议一年左右请专业的品牌售后上门清洁,比路边的游击队靠谱,怕游击队拆卸时弄坏油烟机。
四、抽油烟机的5大品牌和产品推荐
市面上的油烟机知名品牌主要是方太、老板、帅康、华帝、美的、樱花、万家乐、火星人、帅丰、西门子。其中帅康和火星人的集成灶相对出名,今天主要给你介绍方太、老板、华帝、美的、西门子这5个品牌的产品推荐哦。

方太电器:创建于1996年,属于国内的一线品牌,口碑和质量不错,价格也较贵。在技术上一直领先行业内,拥有8000平米先进的厨电实验室。
产品推荐:方太CXW-228-JQ26TA侧吸式抽油烟机
亮点推荐:近吸直排不跑烟,风量20m³/min吸力够,油烟不过拐弯,控烟范围大。

老板电器:公司总部在杭州,有40年的历史,专业生产吸油烟机、燃气灶、消毒柜等厨房电器、生活小家电产品。主要系列有尊朗系列、跨界系列、T型系列、巨幕拢吸系列、iCook系列等,品质和售后服务都不错。
产品推荐:Robam/老板67A7+36B0/36G3/58B1/58G6/37B0/37G1顶吸式烟灶套餐
亮点推荐:51分贝噪音小,风量19m³/min,一级能效省电,内置红外线感应,挥手即可感应爆炒。

华帝电器:成立于1992年,在国内华帝的知名度不错,产品质量也不错,是北京2008年奥运会燃气具独家供应商。
产品推荐:Vatti/华帝 CXW-248-i11090 天镜蒸水洗家用侧吸式抽油烟机
亮点推荐:专利滑屏幕,风量21m³/min,蒸水洗吸烟更彻底。

美的电器:1968年成立于中国顺德,美的是中国龙头企业,产品覆盖范围多,知名度不错,油烟机的质量和性价比不错。
产品推荐:美的T39抽油烟机自动清洗
亮点推荐:自动清洗,风量18m³/min,体积小不碰头,性价比高。

西门子电器:创立于1847年,是全球电子电气工程领域的领先企业。西门子的产品和创新在家电行业来说算是不错,油烟机也是许多人的选择。
产品推荐:SIEMENS/西门子 47SA951+231欧式自清洁油烟机燃气灶套餐烟灶套装
亮点推荐:净烟烹饪,爆炒无忧,风量18m³/min,免拆洗可以自动清洁。
装修中,像这种日常必备的家用电器一定要选择正规厂家,售后都是很有保障的,并且效果确实很不错,既把饭菜做的香甜可口又不用浑身的油烟味,一举两得。希望这篇文章可以帮助到大家,如果想了解更多装修或者家居知识的话,记得关注安顺装修网。