本课件节选自某房产公司。
说明:
1.所有空调机室外机均需放入设计预留机位,并用百页或金属栏杆围蔽。
2.采用小型中央空调和分体式空调两大类。
3.本节附图尺寸均为完成面净尺寸,不含批荡及保温层等。
小型中央空调系统
洋房首层大堂空调室外机位置应符合以下原则:
(1)优先摆放于竖向百页或开口天井内;
(2)其次摆放于住宅裙楼顶隐蔽处;
(3)同时不应对邻近住宅产生较大干扰和影响。
1.洋房空调室外机位应考虑必要的维修及进、出风空间,需预留人员安装检修通道300mm宽,检修位不小于400mm宽,并应预留安装通道。布置方式示意图如下:

室外机位参考净尺寸详见下表:

注:1、1~3为布置方式。
2、表中尺寸是根据三家合作品牌的综合最大尺寸确定,实际工程如采用其它品牌,应按实际选用品牌的外观尺寸确定最小机位尺寸。
附图二:机位尺寸与外观尺寸示意图:

分体式空调(含柜机和壁挂机)
空调室外机位的技术要求:
(1)空调室外机位净尺寸:(见下表)

机位净尺寸:表中尺寸是根据上年度三家合作品牌的综合最大尺寸确定,并预留不小于100mm 的安装空间(兼作进风通道)以及约50mm 施工误差的机位完成面尺寸。
(2)空调室外机位土建尺寸如下:
土建结构尺寸:应注意须在空调机位净尺寸上加找坡层、保温层、挂网抹灰厚度、铝合金百叶厚度等构造尺寸(见附图三)。
飘窗顶机位土建尺寸计算公式为:
飘板结构长度=机位净长度L+两端构造面层厚度(两端开放式的机位为0mm);
飘板结构宽度=机位净厚度B+外墙构造面层厚度+铝合金百叶厚度60mm;
飘板结构高度=机位净高度H +上下窗板构造面层厚度;
具体尺寸如下:(单位mm)

注:
(1)地区分类为大概划分,具体尺寸应根据当地气候及建筑构造习惯做法在设计条件图中明确。
(2)当机位长向两端为开放式时,土建长度为1100mm。
(3)表中的“窗台高”为窗台结构面至楼板砼层的高度,非完成面尺寸。
(4)本表不包含严寒地区(如:沈阳、包头等),严寒地区项目根据具体做法另定。
(3) 空调室外机的平面布置形式:
A、飘窗顶布置;
B、窗侧布置;
C、阳台挑板放置;
D、梁下或平层挑板放置等方式,根据立面效果决定。
优选飘窗顶布置方式(见附图三)。
附图三:洋房空调室外窗顶布置机位平面及剖面大样
图中:飘板宽度取值:
(1)无保温层时:550mm;
(2)有保温层时:600mm。



无保温层空调机位参考大样附图
有保温层空调机位参考大样
空调机位剖面示意图

空调机位立面示意图
(3) 空调室外机统一平面图例:(如下附图四)

设计原则:
(1) 分体式空调预留孔的规定:
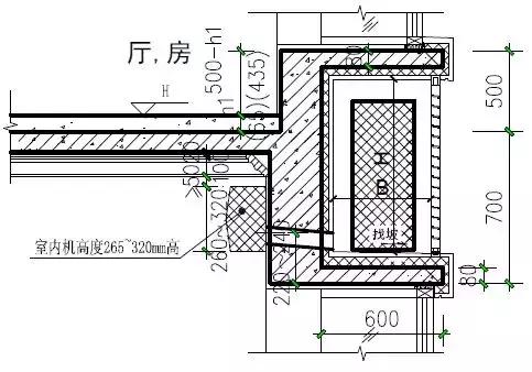
A.墙面预留φ80 PVC套管,向外倾斜,内外高差20mm 以利于冷媒回流及冷凝水的排放。
B.室内挂机套管的孔顶标高为梁底以上180~200mm(无保温层)/220~240mm(有保温层)穿梁预埋布置(见附图三),平面位置为窗边150mm。(见附图三)
C.客厅面积≤30㎡时:只考虑挂机,仅预留一个高位套管。装修无天花吊顶的套管高度同上第B 点;有天花吊顶的套管高度为梁下100mm,室内机安装于吊顶下50mm处。电源插座贴梁底安装,无梁时板下400mm安装。(见附图四)
D.客厅面积>30㎡时: 只考虑柜机,仅预留一个低位套管;首层4.45m层高的厅、房应同时考虑预留柜机和挂机的安装位置,上下各预留一个套管。
其中柜机套管孔中距地面(建筑完成面)200mm,电源插座底距地面(建筑完成面)300mm。挂机套管高度同上第B 点。
(2) 同一位置垂直上下安装两台空调室外机时,在平面相同位置不同标高处分别挑板上下安装,各自预留套管;中间隔板处宜预留φ100 预留孔,以便于下方机位拉管至上方穿预留孔洞接入室内。(见附图五)
(3) 室外机位应设置于邻近窗洞口,并靠近窗的开启一侧,严禁设于无窗的山墙上,以便于安装和维修。距离过近而对吹的两室外机应相互错位以免热风互扰;高层内天井、凹位等不易散热的位置不宜布置多台空调机位。
(4) 空调室外机位不应设于封闭阳台内。
(5) 客厅出阳台的推拉门应留门垛,以便于梁下100mm 穿墙垛安装套管;如该处为剪力墙肢则在浇筑前预埋套管,严禁空调管穿玻璃。(见附图四)
(6) 空调机位底板面层向外找坡,内外高差20mm,并在百叶横框上预留φ10小孔,确保能顺利排出雨水。
(7) 室内机安装高度应能使冷凝水从预留套管畅顺排出,并接入室外的PVC冷凝水竖管流下,接入口高度约为窗板下200mm。空调室外冷凝水管应为米黄色,与墙体主色协调。(见附图四的立面示意图)
(8) 空调管应尽量直接出外墙,忌穿别的房间,尽量减少拐弯。冷媒管、冷凝水管、连接电线应合为一束,集中从一个预留套管接外。
(9) 一般挂机电源插座顶紧贴梁底,有墙垛的插座边离转角墙边水平净距150mm。无墙垛的飘窗平面电源插座安装在窗旁距离150mm 处。空调机电源线应为白色,与室内装修墙身色协调。
附图四:


附图五:上下安装双空调机位示意图
