今天齐家依依给大家分享一套面积63平的小户型装修案例,设计师根据屋主的要求,把这个小户型设计成了一个开阔通透,还有充足的收纳的空间,给屋主呈现出了一个温馨有格调的空间。

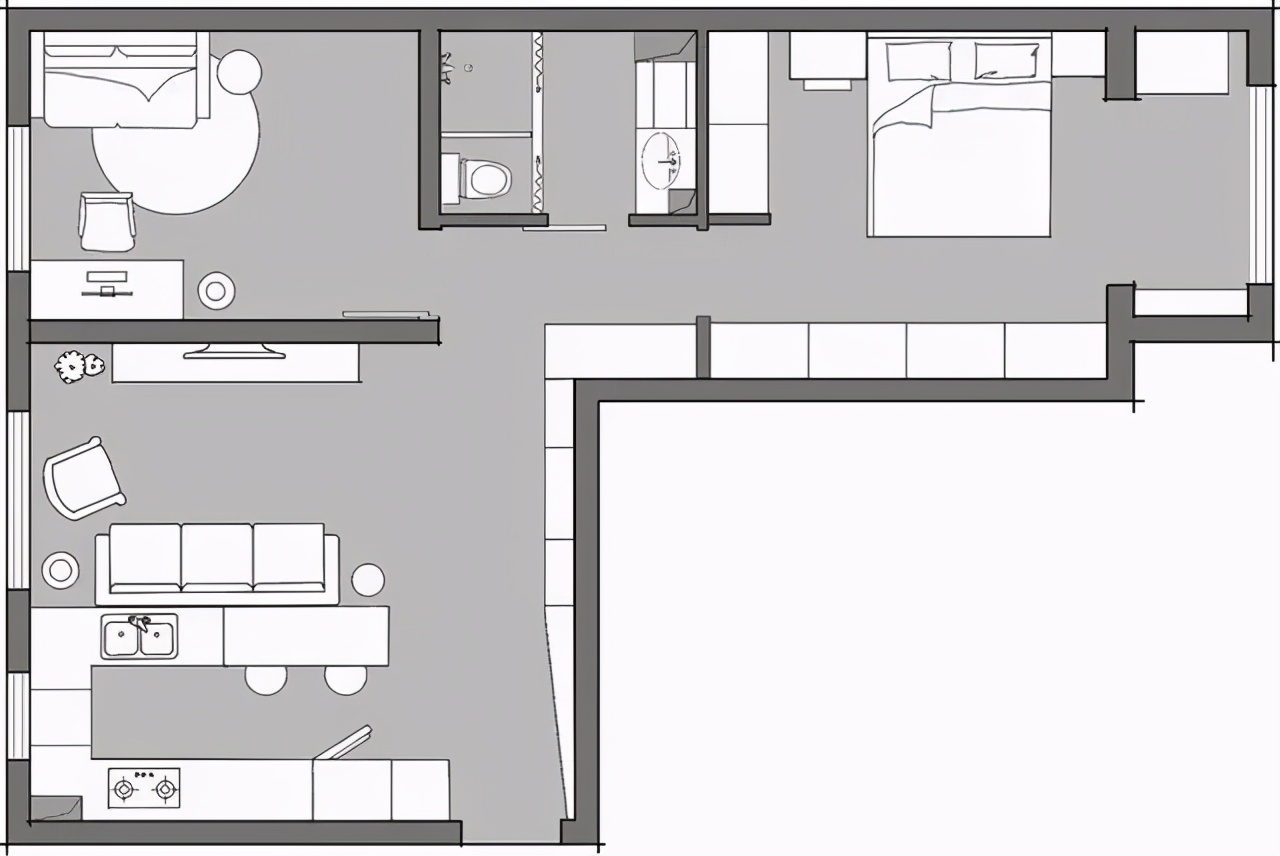
▲ 平面布置图

▲ 玄关空间不大,所以设计了一面异形的换鞋凳,一面容量大的储物柜,用来收纳换季鞋子,柜面做成穿衣镜,进出的时候更方便。换鞋凳上方采用目前很流行的洞洞板,可以摆放一些装饰品和帽子包包等。

▲ 玄关进来的左手边就是开放式的厨房,玄关柜的旁边是嵌入式的冰箱,进来是操作区,这样U字型的厨房设计,充分利用了空间,功能性也很强。

▲ 厨房另一面台面是一个吧台,这款实木的吧台台面,是一块完整的实木板材,纹理自然造型优美,闲暇时两人坐着聊聊天也是很舒服的。

▲ 玄关正面进来就是餐厅,餐厅的空间比较小,选择了一款宜家折叠餐桌,平时折叠起来放在两个柜子中间刚刚好,不占位置。

▲ 客厅空间比较小,简单的一字型布艺沙发和电视柜,由于空间较小,小圆几直接放在沙发一侧。沙发背靠开放式厨房中的吧台处,不管是吊顶还是灯光都营造出了一种干净明亮的气氛。

▲ 卧室中墨绿色的床头背景,搭配原木家具,自然复古。床头壁灯和吊灯和大灯都是金色的,提升的空间的质感。

▲ 放弃了对称的床头柜,一边是小小的梳妆台,满足女主人日常用。还有超有特点的仙人掌形的衣架,让这个卧室变得更加文艺。

▲ 书房中是一个办公加健身的设计,没有太多的家具。墙面的颜色跟卧室客厅都很统一,到后期也可以改导致儿童房使用。

▲ 卫生间用性感的长虹玻璃做隔断,精致感飙升,解决了一人洗澡一人上厕所的尴尬,进卫生间后左边是淋浴房和马桶,右边是洗漱池和洗衣机。六边形的地砖,从地面延伸到墙面,时尚美观且有趣。
(本文由齐家小编编辑,侵权删!)
(此处已添加小程序,请到*今条头日**客户端查看)