本来狭长又昏暗的户型,经过美女设计师改造后,变成极雅的新中式,清代饰品与宜家好物竟然能完美融合,还有全屋收纳柜相当于276个大箱,这改造实在太惊艳了
以下文章内容来自一兜糖家居APP:设计师王冰洁
前言
坐标:北京
风格:简约
装修花费:45万
装修时间:4个月
设计出品:北京七巧天工设计
手机:18510327272
屋主信息
职业 上班族
年龄 85后
地区 北京
个人简介 小白不白~
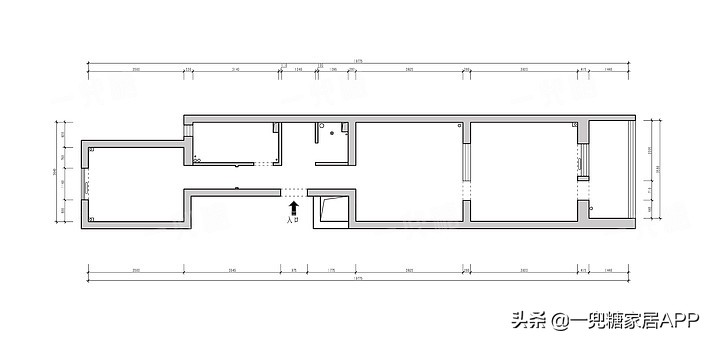
户型图

本案户型为南北向,典型的窄长结构老房,承重墙体的位置将整个户型分为四段式,且不可改动。东西向跨度不到3.6m,南北向跨度19m左右。
户型分析
优势:①南北通透
②各个房间相对较规整
③卧室竖向尺寸3.6m,空间相对比较开阔
④厨卫之间为轻体墙,可拆除
劣势:①入户门与厨卫间的过道狭长、利用率低
②中段空间无自然采光
③可拆墙体处却有不可拆管道及烟道,限制可改造空间
④老房管道多,且不能移动位置

无论两侧阳光多强,中间走廊部分都是极其昏暗的。

改造重点
①将可动的轻体墙全部拆除,用占用尺寸更小的玻璃隔断和组合柜体来重新进行空间划分。
②厨房改为开放式,原走廊的空间也不再只是当过道使用,墙面增加置物功能。
③卫生间在马桶位置不可移动的前提下改导致了多室分离。
④厨卫之间现场木工制作成双向收纳。
收纳图

每个家庭生活中都会有各种各样需要收纳的物品,衣服、鞋子、包、杂物、玩具、工具、被褥、展示品,还经常会有些用不上但又舍不得扔的东西......那么,本案设计师将小白家进行了两个部分来归类,一部分是利用定制家具做大面积收纳,另一部分则是利用零散的活动家具进行就近收纳,所秉持的理念是各个空间消化各自功能的收纳。

将固定纳进行统计(活动收纳不计算在内),最终计算出是等同于276个60L的大号收纳箱的容量,如果将这276个收纳箱在平地铺开,占地面积高达78m²,竟比整个屋子的使用面积还多了十多平。然而在这强大的储物量背后,却并没有影响到整个空间的视觉感,依然显得明亮整洁。
客厅

沙发背后做了一整面顶天立地的展示储物柜,与墙同宽,因为是嵌入式柜体,所以一点都不显得突兀,反而让空间变得更加规整,同时又承担了大量收纳的功能。

客厅处于户型偏中间的位置,无自然采光,所以设计师在整体风格上选用了白色和木色的结合,白蜡木家具的使用让整个空间提亮了不少。

沙发背后的空间可作为一些不常用的物品收纳,柜体最尽头因为有管道,特意做了百叶门板进行装饰。

这些看似不起眼的小物件,可全都是业主收藏的宝贝,历经千年岁月依然毫发未损的瓷塑,每一件唐宋瓷片残器都有着不同的意义。唐代的罐盖残片,是目前存在争议的唐代早期青花瓷,蓝色波点好似草间弥生的波点南瓜;南宋的粉盒残器,竟然还有当年的胭脂残留;建窑的兔毫盏残片,底款供御二字,意味着皇家专用。业主尤其喜爱宋瓷,今天的审美升级和宋瓷的极简风格一脉相承,由日本传递而来的「匠人精神」和「侘寂之美」,也都能在宋瓷中找到源头。

旁边有便于放置收纳的格子柜,餐桌上就不会变得混乱,偶尔喝喝茶、看看书,都是极为安静惬意的空间。客厅在整体光源上并没有选择主灯,而是用分散均匀的点光源来替换。

餐桌一角

这里的花瓶,其实是业主在老家淘来的晚清帽桶,是当时用来放置官员帽子的(脑补下清宫戏),旁边的老画是从京都东寺旧货市场带回来的。

透明边柜配收纳盒

藤编筐在这个空间毫无违和感,绿植的搭配为客厅增添了一丝生机。

客厅看向卧室的角度,一眼望去还是比较通透的,床尾进深65公分的衣柜一点都没显得拥挤。另外,谁也没想到后来这片地儿竟然成了小白撒欢奔跑的主干道,可以从南到北一路狂奔不受阻碍,据说搬了新家以后小白成功减下了堆积多年的脂肪。
卧室

山水意境的实木框玻璃推拉门。

主卧衣柜采用了吊柜折叠门+宜家艾格特。柜门两扇为一组,可以同时打开4扇门的宽度,这样会更方便拿取衣物。艾格特的选取减少了木材的用量,环保的基础上也相对增大了柜内空间利用率。柜内空间布置灵活,物品取放方便,后来这里成了综合的储物空间,不再仅是衣柜功能。

原始下半墙体不能拆除,借用这个高度订做了胡桃木的外飘桌板,可当备用书桌功能来使用。主卧阳台的顶部用木材做了饰面,围合成一个木屋的感觉,阳光洒进来,十分惬意。

新风机旁边的空间也利用艾格特做层板收纳,用白色纱帘遮挡既好看又实用。深度有60公分+,俨然成了一个小型储物间,像一些大件物品:行李箱、懒人沙发、音响包装盒统统都能放得下。

当天脱下来的衣物可以放在这里。

小白出镜,小白和业主不离不弃,10年间至少搬了6次家。

卧室看往客厅的角度,相比改造前,光线和视觉感有了大大的提高。
走廊

设计师在入户过道的位置增加了墙面置物功能,原先狭小逼仄的空间,用木板装饰完显得格外通透。顶面上也配备了多个暗装筒灯,用人为光源弥补了原先无采光、过于昏暗的缺陷。

进门处定制了不规则地垫,可以放下小两口近期所需要穿换的鞋子,换季的鞋子在其他位置储藏收纳。墙面平时可以挂一些钥匙、摆件、干花、小白的绳子等。
卫浴

用4扇推拉门将卫生间进行多空间分离,互不影响。

老房的马桶位是最让人头疼的一个问题,大部分都是不可移动的,利用上部空间,安置了壁挂洗衣机。同时在深度有限的空间里,选用了壁挂洗手盆,外观弧度避免磕碰,内空利用率也是比较高的。

业主对比了很多,最终选择了这款镜柜,多方向可伸缩折叠镜面+储物柜+集成式LED镜前灯,柜体尺寸888*725*142mm,深度刚好能容纳下戴森吹风机。

移动不同扇的推拉门,可自由组合出四种不同的使用方式。业主按固定尺寸,竟然找到了一款完全吻合的木质浴缸,相比同尺寸的亚克力浴缸,木质浴缸内部空间更大,平时洗淋浴也很方便。
厨房

厨房和卫生间之间的部分是木工师傅现场制作,作为双向收纳空间,一部分归厨房使用,可放些小的电器,另一部分配合玻璃归卫生间当壁龛使用,最大限度上利用了此处。

灵活的小推车为厨房增添了一个操作台的空间,同时本身还可以收纳一些零食。

伴随着年轻人对做饭热情的高涨,饭后刷碗盘也成了一项不容小视的问题。本案配备了一款独立式洗碗机,为了保证操作台的齐平,设计师特意将洗碗机上部的台面厚度尺寸减小。

将原先外侧墙体拆掉后,厨房空间变得格外通透,门边的主水管道用百叶门板进行装饰。
次卧

次卧榻榻米宽度1.8m,长度2.1m,高度0.4m,箱体部分可以完全储物,为了方便使用,在靠近前端的位置做了抽屉,不用掀开垫子也可以随意抽拉。衣柜旁边嵌入书桌柜体,办公时可以将腿自然垂下,平时也可以置物。

选用嵌入式的双色百叶窗,让房间更整洁,白蜡木桌板和床头板和榻榻米搭配自然。

椅子是清代的官帽椅,由于之前保存不好,还需要慢慢打磨修复。

主案设计师
以上就是一兜糖家居APP:设计师王冰洁 的全部内容了
最后,一兜糖家居交流微信群持续开放中,感兴趣的小伙伴备注*今条头日**,添加“yidoutang222”即可~
关注一兜糖家居公号“yidoutan123”,第一时间get到新出炉的家居干货哦~
本文由一兜糖家居APP头条号整顿发布,未经授权禁止以任何形式转载。