电路图

电路图是车辆上各种电气部件的配置和连接关系的图示表达方式。
作用:
- · 帮助了解系统的运作方式
- · 辅助寻找和确认各部件的位置
- · 提供判断电流走向的方法
- · 有助于对电气故障的排除
电路图

包含电气系统的信息有:
- · 电源分配
- · 电气部件
- · 线路
- · 搭铁点
- · 连接器
从电路图中不能确定电气部件、搭铁点、连接器等的具体位置,需要结合维修手册中部件定位图,来确定它们的位置
灯泡:

灯泡通常用在车辆的内部和外部照明上。
- 绘制1个灯丝,表示单丝灯泡
- 绘制2个灯丝,表示双丝灯泡
电机:

车辆上的起动机、风挡刮水器、风扇等均用到电机。
圆内绘制M表示电机,圆的两侧绘制短线表示电机的电刷,
有时也采用不同的符号来表示两速电机和双向可逆电机
线圈:

车辆中的电磁阀、点火线圈都用到线圈。
- 线圈用多圈导线缠绕而成
- 符号采用波纹线表示
加热器件:

车辆上的座椅加热器、后窗除雾器、点烟器均用到加热丝。
电路图上绘制矩形方波符号来表示加热丝
电路控制部件:
- 开关
- 继电器
- 电阻
- 可变电阻
- NPN型晶体管
- PNP型晶体管
- 短接器
这些事常见的零部件符号

开关:

符号是以开关在未通电时的状态来表示的,有:
- 常开的
- 常闭的
维电器:

符号是以继电器在未通电时的状态来表示的,有:
- 常开的
- 常闭的
符号包括线圈与开关两个部分。
电阻:

图示符号表示的是定值电阻
在电路中通常用于限制电压
可变电阻:

车辆中可变电阻的类型有电位器、热敏电阻、光敏电阻等
符号是在电阻上加一个箭头,表示可变
NPN型晶体管:

晶体管是由三个部分构成
把N型半导体材料放在两端,把P型半导体材料放在中间,构成NPN型晶体管
符号中有一个向外的箭头表示其属于NPN型晶体管
PNP型晶体管:

把P型半导体材料放在两端,把N型半导体材料放在中间,构成PNP型晶体管
符号中有一个向内的箭头表示其是属于PNP型晶体管
短接器:

用于在连接器被断开时能把接线端子短接在一起
主要用于安全气囊线束,以防止安全气囊意外爆开
其它常见的电气符号:
- 接点
- 接线端子
- 二极管
- LED (发光二极管)
- 气囊游丝
- 爆震传感器
- 计量仪表
接点:

两根导线的交接点
接线端子:

位于线束连接器中在电路图上标出接线端子的号码及其公母
二极管:
符号的箭头方向指出了二极管的正向偏压或反向偏压稳压二极管的符号有所差别
LED (发光二极管) :

- 是正向偏压的二极管,内部有一个很小的透镜
- 加电时,二极管发光,透镜的颜色确定了发光的颜色
- 在二极管的符号.上增加小箭头来表示是发光二=极管
气蠹游丝:

- 也可称为时钟弹簧
- 用于确保安全=气囊的电路在方向盘旋转时,始终可靠的连接
- 采用类似弹簧形状的符号表示
爆震传感器:

- 用于测量发动机的爆震
- 符号中黑色矩形表示压电感应装置
计里仪表:

告诉驾驶员车辆的信息
符号上的箭头表示仪表上有可移动的指针
电路图的类型
按照一张图包含的系统来分,有全系统图与单系统图。
全系统图:

- 包含车辆上所有电气系统的电路
- 无论是印刷版还是电子版,都非常复杂
- 看图时,尽量顺沿电路的走向来看,避免跳跃
单系统图:

- 比较容易使用
- 只显示一个系统
各汽车制造厂商不仅会使用不同形式的电气符号,而且还会改变电路图的格式。
通常情况下,根据电流流向的表现形式,可以归结为两种格式的电路图:
- 从顶部到底部
- 从左到右



一张复杂的完整车型电路图,主要内容包括:电源分配、搭铁分布、既有电源也有搭铁的单系统图。
电源分配图

电源分配图只给出电流到各个元器件的线路。从电源分配图中,我们可以查找到元器件供电的保险丝、断路器以及供电的方式。
搭铁分布图

搭铁分布图显示了在某个特定位置搭铁的所有电路。 譬如,此图中所有的元器件和电路在G401处搭铁。
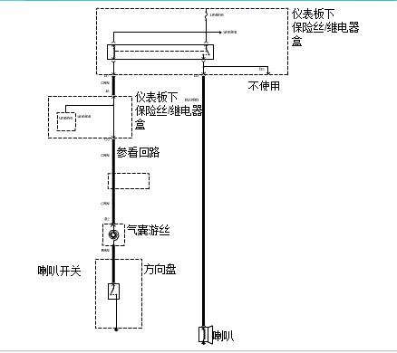
单系统图

在单个系统的电路图中表示出了该系统所有的元器件,以及各元器件从电源到搭铁的完整电流路线。图示电路图给出了喇叭系统中所有的元器件,以及喇叭从电源到接地端的电流流动路线。