

Year Periodical: 2021年第19期
Project Details: 广东省东莞市清溪镇东鹏瓷砖专卖店
Project Area: 227㎡
Design Units: 东鹏设计院
Project Schedule: 2021.8完工

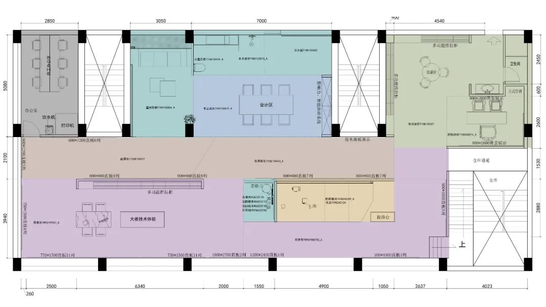
东莞清溪镇东鹏瓷砖专卖店,店面层高分为两个层次,前高后低,通过功能分区的形式使得店面既能很好的展示产品也能实现店面正常的功能需求。大规格产品集中在高层高区域展示,通过推拉柜的补充让产品展示更多样化。样间和功能区设置在后半部分,通过空间通透的效应使得功能区和样间的完美融合并让空间不会产生压抑感。


广东省东莞市清溪镇东鹏瓷砖专卖店平面图



△ 形象展示区+接待台

△ 莫兰迪+苏格兰空间

△ 选材区+技术体验区+洽谈区

△ 十里银装+蓝金棕客厅

生活不该只有城市的律动,更应有诗文之洗礼,择一处清净,闲读一段时光,唤醒内心深处的依恋与回归。客厅通过解构重组带来空间的冲突,为空间塑造丰富韵律,台灯强调了空间的纵深与层次,金属、木质、岩板的碰撞,刚柔并济。花基和绿色墙漆的结合,散发出浓郁的生态气息,舒缓空间节奏的同时,沁人心脾的馥郁芬芳唤醒访客心之所向。

Project Address: 广东省东莞市清溪镇
Design Team: 东鹏设计院终端设计四组/软装组/平面组
Space Photography: 空间摄影-李丽允/图片处理-设计院平面组
Project Time: 2021年
东鹏设计院是致力于东鹏门店设计的专业团队,涵盖空间设计、软装设计、标准设计、平面设计、礼品开发等。东鹏设计院致力于为客户打造专业的门店设计,落实东鹏SI标准,项目遍布全国,设计团队以专业的能力和经验,结合文化和商业,与时俱进,创新、突破、融合,致力于打造中国陶瓷行业优质门店。
终端设计四组是主要负责华南部分地区和华中地区(江西)店面设计的设计团队。成功落地项目涉及江西、湖南、广东、福建、海南等省份城市。

项目设计师:李瀚宇(左)
设计指导:彭飞鹏(右上)
软装设计师:李丽允(右下)
Year Periodical: 2021年第20期
Project Details: 广东省东莞市寮步镇东鹏瓷砖专卖店
Project Area: 200㎡
Design Units: 东鹏设计院
Project Schedule: 2021.8完工

东莞市寮步镇东鹏瓷砖专卖店,店面采用回字形穿插的布局,在有限的空间里将选材、空间展示、功能区有效的结合在一起,让客户在进店选择产品的同时也能看到样间里的特点产品,既展示了产品也让店面展示更加多样化,更好的增加了店面的体验感。


广东省东莞市寮步镇东鹏瓷砖专卖店平面图



纹路精美的松石绿洲加上随性的化龙,打造空间的虚实,搭配上软装红色的财富之门,使得大堂气势磅礡,质朴的肌理交相辉映,张弛有度。通过具有戏剧性的表现手法,让空间带出波澜壮阔又宁静四野的庄严感,干净简洁的接待台,稳定了人的心境。形成独特的艺术语汇,展现寻光而生的蓬勃生命力。

△ 十里银装+蓝金棕客厅

茶室是店面的子空间,介乎封闭与开放之间,既保证了一定的私密性又与外界相互交融。软装兼具舒适感与艺术展示性,打碎常规的陈设路径,构建出品味卓绝而体验丰沛的艺术化茶艺场景,空间精神得以升华。

△ 水墨丹青卫浴空间

△ 莫兰迪儿童空间

△ 设计师区

Project Address: 广东省东莞市寮步镇
Design Team: 东鹏设计院终端设计四组/软装组/平面组
Space Photography: 空间摄影-李丽允/图片处理-设计院平面组
Project Time: 2021年

项目设计师:李瀚宇(右上) 、袁凤平(左下)
设计指导:彭飞鹏(左上) 软装设计师:李丽允(右下)
东莞市寮步镇东鹏瓷砖专卖店是设计师李瀚宇/袁凤平共同完成设计的店面。美源于生活高于生活,设计师利用丰富的设计经验,融合科技与艺术,打造出舒适的商业设计空间。
Year Periodical: 2021年第21期
Project Details: 广东省东莞市塘厦镇东鹏专卖店
Project Area:171 ㎡
Design Units: 东鹏设计院
Project Schedule: 2021.8完工

东莞市塘厦镇东鹏专卖店在商场的主入口,由于位置较后,因此采用开放式的大堂,通过形象产品和呼吸灯的展示,使得店面形象和周边品牌有较大的差异化,展现品牌个性的同时让门面在商场内更加突出。


广东省东莞市塘厦镇东鹏专卖店 平面图



针对紧凑型店面选择将店面空间做成全开放式,既能丰富店面的展示效果,也能让店面空间显得不局促,做到麻雀虽小五脏俱全。最后设置茶室,描绘出了生活的宁静致远和静谧无尘,细腻的情绪氛围中带有一种舒适怡然,令客户重拾清净幽远的心境,从繁忙的工作状态中暂时抽离,享用片刻的闲暇。

客厅并不需要以电视为中心,生活的空间应该是自由的,流动的,茶几,沙发、台灯,都可以成为中心,没有清晰的边界,空间是灵动的,随每一处生活场景变化,和谐而有力量的控制着整个空间格局与情绪释放。


△ 样间区

△ 设计师区+智能换砖体验区

Project Address: 广东省东莞市寮步镇
Design Team: 项目设计师:李瀚宇 / 设计指导:彭飞鹏 / 软装设计:李丽允
Space Photography: 空间摄影-李丽允/图片处理-设计院平面组
Project Time: 2021年
该项目设计师因地制宜,根据不同的店面情况把东鹏SI标准灵活运用,在统一中寻求变化,既能把SI标准成功落地,也保证了店面设计的特点。
Year Periodical: 2021年第22期
Project Details: 广东省东莞市黄江美佳乐建材东鹏店
Project Area: 164㎡
Design Units: 东鹏设计院
Project Schedule: 2021.8完工

店面所在市场相对低端,周边店面比较陈旧,通过门头的升级从色调和外观方面得到了很大的提升,相对于其他店面显得格外的亮眼,既提升了品牌的定位也更好的吸引了客流。


广东省东莞市黄江美佳乐建材东鹏店平面图



迎宾前厅明亮气阔,运用了删繁从简的设计手法,简洁的空间气宇风华,色彩搭配张弛有度。极具个性的墙面,营造出一个开敞宽阔的大厅空间。

△ 星辰大海vip茶室

店面在视觉上以浅灰、纯粹、极简的东方精髓,描摹空间气度。“墙面”纯粹浑然天成,“色彩”朴实内敛自然。空间的骨干呈现,讲究现代,但内涵气质,却散发着东方,完整表达了现代东方的经典并蓄。更是以回归内心的宁静优雅去突破地域、人文、艺术的界限探索当代诗意的生活方式。

Project Address: 广东省东莞市黄江美佳乐建材城
Design Team: 项目设计师:李瀚宇 / 设计指导:彭飞鹏 / 软装设计:李丽允
Space Photography: 空间摄影-李丽允/图片处理-设计院平面组
Project Time: 2021年