
▲ “锦寄行”精品生活馆 "Jinjihang" Boutique Furniture Store ©YUJI
01. 项目概况 | Project Overview
Usual Studio 寻常设计事务所新作“锦寄行”精品生活馆坐落于杭州西湖满觉陇,是集家具饰品展示、茶歇、接洽功能的美学生活馆。地块紧邻满觉陇路,前庭后院,闹中取静,周边景致优美。
Usual Studio’s new work "Jinjihang" boutique furniture store, located in Manjuelong, West Lake, Hangzhou, is an aesthetic lifestyle house used as a display area for fueniture and household decoration, tea break and contact.The site is close to Manjuelong Road with a front courtyard and a back yard to separate the space from the noisy neighbourhood and enhance the beautiful scenery around.

▲ 满觉陇路 Manjuelong Road ©Internet
02. 日常的诗意 | Daily Poetry
场地位于满觉陇这样具典型烟雨江南意境的场域,所经营的又是东方风格的家具产品,那么对于“东方美学“的呈现自然而然地成为改造设计的核心。“东方美学“是个笼统并且朦胧的语汇,我们是否能将之具象化并可被感知?
The site is located in Manjuelong a place with a typical misty and rainy artistic conception from Jiangnan, specialized in dealings with oriental-style furniture products. So the presentation of "Oriental aesthetics" naturally becomes the core concept of the transformation design."Oriental aesthetics" is a general and obscure vocabulary. Can we visualize and perceive it?

▲ 雨落屋瓦 Rain on Roof Tiles ©Internet
我们从“雨落屋瓦”这个细小日常但又带有强烈江南韵味的意向找到设计的支点,并将之放大到整个空间场所中。提取原建筑还保留的瓦片作为立面的设计要素,建筑如同被赋予了一层新的肌肤。
We found the fulcrum of the design from "rain on roof tiles" a small daily event with strong Jiangnan charm and applied it to the entire space.

▲ “浮瓦”设计 "Floating Tiles" Design ©USUAL Studio

▲ “浮瓦”设计 "Floating Tiles" Design ©YUJI
“浮瓦”从原始瓦屋顶开始向整个主立面延伸覆盖,在空间的内与外都能最直接感受到这个新的立面。以瓦为帘,局部轻轻撩起,室内外景观得以相互渗透;由此形成了犹抱琵琶半遮面的立面形象。
The "floating tile" extends from the original tile roof to the entire facade. This new facade can be sensed directly from both the inside and the outside space. With the tiles as the curtain, some parts are gently lifted, the indoor and outdoor landscapes can resonate with each other. Therefore a half-concealed facade image is formed.






▲ “浮瓦”立面 "Floating Tiles"Facade ©YUJI
03. 内外交融 | Fusion of Inside and Outside
通透的落地玻璃将室外景观与室内空间紧密联系,在展厅内部游走也如同置身自然。
The transparent floor-to-ceiling glass closely connects the outdoor landscape and the indoor space. Walking around the exhibition hall feels like being in the nature.

▲ 建筑入口 The Building Entrance ©USUAL Studio
浮瓦组成的半透立面表皮过滤着西南面而来的阳光,也能起到遮阳作用,也使得室内空间光线充足的同时富有光影的变化。设计意图让阳光与景致在这里汇集交融,升华着生活馆的空间体验。
The translucent facade skin composed of floating tiles filters the sunlight from the southwest and plays a role in shading. It also makes the indoor space being full of light and shadow changes. The design intent is to allow sunlight and scenery to gather and blend here, sublimating the space experience of the lifestyle house.




▲ 室内外空间的景观渗透 Landscape Penetration of Indoor and Outdoor Spaces ©YUJI





▲ 室内外空间的景观渗透 Landscape Penetration of Indoor and Outdoor Spaces ©USUAL Studio
04. 温润之物 | Warm Wood Tones
作为家具展示的主要空间场所,我们采用温润的木色调来烘托家具产品的舒适宜家。设计采用多种材料,藤编、原木与深色大理石的组合运用让空间呈现出自然温馨与稳重的气场。
In the main space for furniture display, we use warm wood tones to highlight the comfort that are suitable of furniture products. The design uses a variety of materials,the combination of rattan, log material and dark marble, makeing the space present with a natural, warm and stable atmosphere.


▲ 家具展示一角 The Corner of Furniture Display ©YUJI



▲ 温润木色调 Warm Wood Tone ©USUAL Studio





▲ 设计采用多种材料 Design with Multiple Materials ©YUJI
05. 改造前后|Before and After Transformation
改造前的场地原来是个餐厅,已经荒置多年。改造后的老房子在功能使用上获得了新生,也是寻常设计回应传统文化空间设计的一次有益思辩与实践。
The project site before the renovation was originally a restaurant, which has been abandoned for many years. The renovated old house has gained a new life in terms of functional use. And it is also a benefit reflection and practice in response to traditional cultural space design.

▲ 改造前 Before Transformation ©USUAL Studio



▲ 改造后 After Transformation ©YUJI
06. 技术图纸|Technical Drawings

▲ 轴测分解图 Axonometric Exploded View ©USUAL Studio

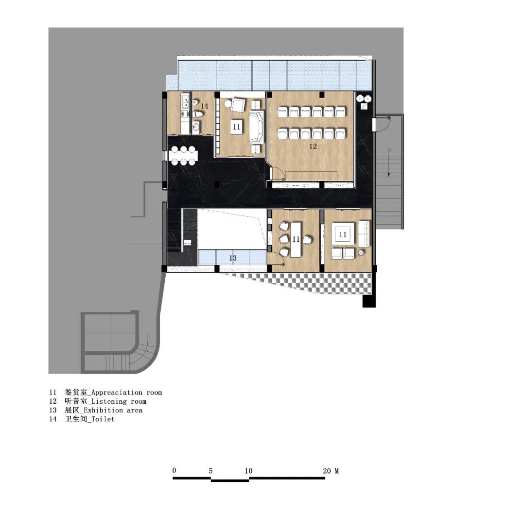
▲ 首层平面图 The Ground Floor Plan ©USUAL Studio

▲ 二层平面图 The Second Floor Plan ©USUAL Studio

▲ 西南立面图 Southwest Elevation ©USUAL Studio

▲ A-A 剖面图 Section View ©USUAL Studio

▲ B-B 剖面图 Section View ©USUAL Studio
项目名称:《浮瓦听雨》杭州“锦寄行”精品生活馆设计
项目地点:杭州,满觉陇
建筑面积:450㎡
项目时间:2019年(设计)2021年(竣工)
设计公司:寻常设计事务所 USUAL Studio
设计范围:建筑设计、景观设计、室内设计
主创建筑师:林经锐、王坤辉
设计团队:林经锐、王坤辉、温馨、Laura Canto López、吴海伦、关柳霞
图片摄影:余几、寻常设计事务所
主要材料:金属烤漆铝板、玻璃、木饰面,藤编、大理石、白色外墙涂料
Project Name: Floating Tiles – Hangzhou "Jinjihang" Boutique Furniture Store Design
Project Location: Hangzhou, China
Gross Built Area (square meters): 450㎡
Design Year: 2020 / Completion Year: 2021 Design
Design Company: USUAL Studio
Design Contents: Architecture, Landscape, Interior Design
Leader Designer: Lin Jingrui
Design Team: LIN Jingrui, WANG Kunhui, WEN Hsin, Laura Canto López, WU Hailun, GUAN Liuxia
Photo Credits: YUJI Studio, USUAL Studio
Building Materials: Metal Painted Aluminum Plate, Glass, Wood veneer, Rattan,Marble,White Exterior Wall Paint