一、实测实量
1
混凝土结构工程实测标准:

质量通病描述


实测实量要求

(1) 剪力墙/暗柱:选取长边墙,任选长边墙两面中的一面作为1个实测区。累计实测实量15个实测区、60个测点进行计算。
(2) 当所选墙长度小于3米时,同一面墙4个角(顶部及根部)中取左上及右下2个角。按45度角斜放靠尺,累计测2次表面平整度。跨洞口部位必测。这2个实测值分别作为判断该指标合格率的2个计算点。
(3) 当所选墙长度大于3米时,除按45度角斜放靠尺测量两次表面平整度外,还需在墙长度中间位置水平放靠尺测量1次表面平整度,这3个实测值分别作为判断该指标合格率的3个计算点。
(4) 跨洞口部位必测。实测时在洞口45度斜交叉测1尺,该实测值作为新增实测指标合格率的1个计算点。
节点改进


梁高≤450mm的过口模板:跨洞口处梁模板做 L 型模板,墙次龙骨压制模板竖向拼缝处;抱箍钢管压制梁底侧面木方,抱箍入梁600mm;梁侧底部侧面木方在墙边处断开,墙次龙骨伸至梁顶侧面木方处。
梁高>450mm的过口模板:跨洞口处梁模板做 L 型模板,墙次龙骨压制模板竖向拼缝处;抱箍钢管压制梁中间侧面木方,并尽量压制到墙的次龙骨,抱箍入梁600mm,设3道对拉螺杆固定;梁侧底部侧面木方在墙边处断开,墙次龙骨伸至梁中间侧面木方处
质量通病描述


实测实量要求

(1)剪力墙:任取长边墙的一面作为1个实测区。累计实测实量15个实测区、45个测点作为计算点。
(2) 当墙长度小于3米时,同一面墙距两端头竖向阴阳角30cm位置,分别按以下原则实测2次:一是靠尺顶端接触到上部砼顶板位置时测1次垂直度,二是靠尺底端接触到下部地面位置时测1次垂直度,砼墙体洞口一侧为垂直度必测部位。这2个实测值分别作为判断该实测指标合格率的2个计算点。
(3) 当墙长度大于3米时,同一面墙距两端头竖向阴阳角30cm和墙中间位置,分别按以下原则实测3次:一是靠尺顶端接触到上部砼顶板位置时测1次垂直度,二是靠尺底端接触到下部地面位置时测1次垂直度,三是在墙长度中间位置靠尺基本在高度方向居中时测1次垂直度,砼墙体洞口一侧为垂直度必测部位。这3个实测值分别作为判断该实测指标合格率的3个计算点。
(4) 砼柱:任选砼柱四面中的两面,分别将靠尺顶端接触到上部砼顶板和下部地面位置时各测1次垂直度。这2个实测值分别作为判断该实测指标合格率的2个计算点。
节点改进
砼墙竖向模板支撑节点


木方背楞墙板体系:采用45mm*90mm木方;中心间距150mm。
对拉螺杆设置要求:层高2900mm及以下的墙柱最少设置5排对拉螺杆,层高2900~3200mm的墙柱必须设6排,自下而上第一排螺杆离地200mm,一、二排间距450mm,二、三排间距450mm,最上道距顶板300mm,其余均分,模板根部应进行水平加固,转角部位的对拉螺栓距阴角200mm。


内外墙柱斜撑:采用拉顶结合,楼面上预埋钢筋拉结点,斜拉间距≤2000 mm ,距墙柱边≤500 mm。楼板上安装固定件作为斜支撑底部固定,另一端分别支顶在墙的第二、五道水平钢管上。
实测要求
顶板水平度与厚度控制节点




管控要求

2
砌筑工程实测标准:

实测实量测量要求

平整度测量示意图
(1) 每一面墙都可以作为1个实测区,优先选用有门窗、过道洞口的墙面。测量部位选择正手墙面。累计实测实量20个实测区。
(2) 当墙面长度小于3米,各墙面顶部和根部4个角中,取左上及右下2个角。按45度角斜放靠尺分别测量2次,其实测值作为判断该实测指标合格率的2个计算点。
(3) 当墙面长度大于3米时,还需在墙长度中间位置增加1次水平测量,3次测量值均作为判断该实测指标合格率的3个计算点。
(4) 墙面有门窗、过道洞口的,在各洞口45度斜交测一次,作为新增实测指标合格率的1个计算点。
(5)所选2套房中墙面表面平整度的实测区不满足20个时,需增加实测套房数。

垂直度测量示意图
(1) 每一面墙都可以作为1个实测区,优先选用有门窗、过道洞口的墙面。测量部位选择正手墙面。累计实测实量20个实测区。
(2) 实测值主要折射砌体墙体垂直度,应避开墙顶梁、墙底灰砂砖或砼反坎、墙体斜顶砖,消除其测量值的影响,如两米靠尺过高不易定位,可采用1米靠尺。
(3) 当墙长度小于3米时,同一面墙距两侧阴阳角约30CM位置,分别按以下原则实测2次:一是靠尺顶端接触到上部砌体位置时测1次垂直度,二是靠尺底端距离下部地面位置约30CM时测1次垂直度。墙体洞口一侧为垂直度必测部位。这2个实测值分别作为判断该实测指标合格率的2个计算点。
(4) 当墙长度大于3米时,同一面墙距两端头竖向阴阳角约30CM和墙体中间位置,分别按以下原则实测3次:一是靠尺顶端接触到上部砌体位置时测1次垂直度,二是靠尺底端距离下部地面位置约30CM时测1次垂直度,三是在墙长度中间位置靠尺基本在高度方向居中时测1次垂直度。这3个测量值分别作为判断该实测指标合格率的3个计算点。
(5) 所选2套房中墙面垂直度的实测区不满足20个时,需增加实测套房数。

门窗洞口测量示意图
(1) 对于平外墙面的门窗洞口:同一外门或外窗洞口均可作为1个实测区,累计实测实量10个实测区。测量时不包括抹灰收口厚度,以砌体边对边,各测量2次门洞口宽度及高度净尺寸(对于落地外门窗,在未做水泥砂浆地面时,高度可不测),取高度或宽度的2个实测值与设计值间的偏差最大值,作为判断高度或宽度实测指标合格率的1个计算点。
(2) 所选2套房中的外门窗洞口尺寸偏差的实测区不满足8个时,需增加实测套房数。
节点改进

排版要求:
砂加气墙体砌筑前需进行排版,由梁高、砌块高度、窗台板、过梁高度、等综合推算出导墙高度,提高砌体利用效率,杜绝使用小于三分之一高度的砂加气;
砌块排列应上下错缝搭接,搭接长度宜大于砌块长度1/3,且最小搭接长度不得小于100㎜;
对于强弱电箱和管线集中部位,可采用预留底盒管线位置或使用构造柱浇筑的方式设置,避免后开槽开孔对墙体强度的影响;

砌筑施工要求:
砂加气墙体砌筑时,水平缝、竖缝均需满批粘结剂,饱满度需保证不低于80%,与砼墙、柱交接位置的头缝需重点关注;
内外墙均需双面勾缝;
砌块与钢筋混凝土柱(墙)相接处应设置拉结钢筋进行拉结或L型铁件连接(铁片与砌体采用三根不短于50mm铁钉进行连接;铁片与剪力墙/柱间采用三根不短于27mm射钉进行连接;铁片与构造柱间需在构造柱浇筑前,与铁片钉眼内插入三根不短于50mm铁钉进行锚固),设置间距应为两皮砌块的高度,铁件和混凝土结构、砂加气间采用铁钉固定;
砌块配块时,禁止刀劈斧剁,应用台锯或手锯切割,墙上凿孔等应采用专用工具,不得随意剔凿;
3
设备安装工程实测标准:

实测实量测量要求

座便坑距测量示意图
(1) 每一个座便预留排水管孔作为一个实测区,累计实测实量4个实测区。所选2套房实测区不满足4个时,需增加实测套房数。
(2) 本指标在墙面打灰饼或抹灰完成或装饰面完成阶段,且管孔填嵌固定后测量。
(3) 实测前,通过图纸确定座便器预留排水管孔距,并将其管孔中心距换算为管外壁距距墙体装修完成面距离。如墙体装修面还未完成,现场测量值要减去2cm(墙面瓷砖铺贴预留厚度),以此作为偏差计算的数值进行合格性判断。
(4) 每1个座便器预留排水管孔距的实测值与设计值之间的偏差值,作为判断该实测指标合格率的1个计算点。

底盒标高测量示意图
(1) 本指标原则上在抹灰阶段或底盒标高调整并固定完成测量。
(2) 每一个功能房间作为1个实测区,累计实测实量12个实测区。
(3) 在所选套房的某一功能房间内,使用激光扫平仪在墙面打出一条水平线。以该水平线为基准,用钢卷尺测量该房间内同一标高各电气底盒上口内壁至水平基准线的距离。选取其与水平基准线之间实测值的极差,作为判断该实测指标合格率的1个计算点。
(4) 所选2套房中同一室内底盒标高差的实测区不满足12个时,需增加实测套房数。
4
粉刷工程实测标准:

实测实量测量要求

平整度测量示意图
(1)实测区与合格率计算点:每一面墙作为1个实测区,累计16个实测区。所选2套房实测区不满足16个时,需增加实测套房数。每一测尺的实测值作为一个合格计算点。
(2)测量方法:同一实测区内
当墙面长度小于3米,在同一墙面顶部和根部4个角中,选取左上、右下2个角按45度角斜放靠尺分别测量1次,在距离地面20CM左右的位置水平测1次当墙面长度大于3米,在同一墙面4个角任选两个方向各测量1次,在墙长度中间位置增加1次水平测量,在距离地面20CM左右的位置水平测1次;所选实测区墙面优先考虑有门窗、过道洞口的,在各洞口45度斜测一次;以上各实测值作为合格率1个计算点。
(3)数据记录:同一实测区,一个实测值作为一个合格率计算点。

垂直度测量示意图
(1)实测区与合格率计算点:每一面墙作为1个实测区,累计16个实测区;所选2套房实测区不满足16个时,需增加实测套房数;每一测尺的实测值作为一个合格计算点。
(2)测量方法:同一实测区内
当墙长度小于3米时,同一面墙距两端头竖向阴阳角约30CM位置,分别按以下原则实测2次:一是靠尺顶端接触到上部砼顶板位置时测1次垂直度,二是靠尺底端接触到下部地面位置时测1次垂直度;
当墙长度大于3米时,同一面墙距两端头竖向阴阳角约30CM和墙体中间位置,分别按以下原则实测3次:一是靠尺顶端接触到上部砼顶板位置时测1次垂直度,二是靠尺底端接触到下部地面位置时测1次垂直度,三是在墙长度中间位置靠尺基本在高度方向居中时测1次垂直度。
(3)数据记录:同一实测区,一个实测值作为一个合格率计算点;

阴阳角测量示意图
(1) 每面墙的任意一个阴角或阳角均可以作为1个实测区,累计实测实量12个实测区。所选2套房的实测区不满足12个时,需增加实测套房数。
(2) 选取对观感影响较大的阴阳角,同一个部位,从地面向上300mm和1500mm位置分别测量1次。2次实测值作为判断该实测指标合格率的2个计算点。
节点改进
粉刷使用材料要求:
砂:抹灰用砂应选用中砂,使用前应过筛,含泥量控制在不大于3%;
水泥:抹灰用的水泥宜为硅酸盐水泥、普通硅酸盐水泥,其强度等级不应小于32.5;不同品种不同标号的水泥不得混合使用;
粉刷用水泥砂浆:面层砂浆标号不能高于打底砂浆,而打底砂浆不能高于基层墙体,以免在凝结过程中产生较强的收缩应力,破坏强度较低的基层;水泥砂浆不得抹在石灰砂浆或混合砂浆上;严禁使用熟化不透的石灰膏,以防爆灰;
粉刷用石膏砂浆:石膏砂浆需选用采用正规厂家生产的符合规范及合同要求的产品,已拌制完成未及时使用导致硬化的废料不得重复使用;
水:拌制混凝土、砂浆的水应当是清洁干净、不含杂质的淡水,需满足《混凝土拌和用水标准》JGJ63的规定。当使用混凝土搅拌站中的回收水时,应经过沉淀,去除砂石、泥浆澄清后方可使用;
合格的抹灰照片


二、质量风险
1
地下室质量风险评估标准:

地下室底板和侧墙防水搭接


地下室穿墙套管


地下室止水螺杆
建议采用可卸式的止水螺杆

止水钢板节点样图


2
外墙质量风险评估标准:

3
3、砼导墙质量风险评估标准:

导墙支模

导墙凿毛及成型质量


4
防水施工及构造质量风险评估标准(一):

4
防水施工及构造质量风险评估标准(二):

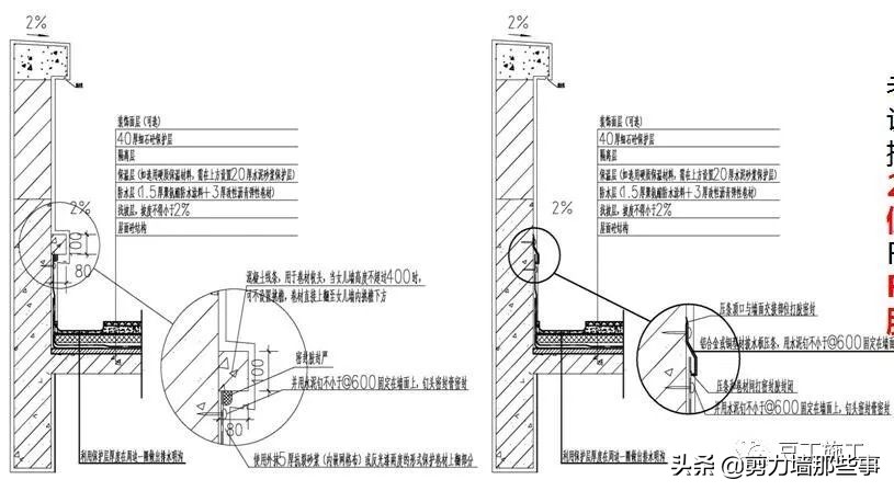
女儿墙样图

老鹰嘴及滴水线:女儿墙压顶需设老鹰嘴或10×5mm滴水线;
排水坡度:女儿墙压顶需设2%~5%排水坡度,坡向屋面内侧;
R角:屋面与女儿墙交接处设置R100水泥砂浆圆角并要求密封胶封牢;
防水附加层样图

防水附加层:在迎水面处一侧,在穿墙管周边施工防水附加层,防水附加层材料及做法同防水层,防水附加层沿穿墙管及外墙周边宽度均为250。
变形缝样图

变形缝顶盖应设不小于3%双坡排水,两侧下口应设老鹰嘴与滴水线。
变形缝内应填充柔性聚苯乙烯泡沫板,变形缝内不得有砼,砖块等建筑垃圾;变形缝内上口卷材均应拉通并在缝内应做弯折处理,上口填充聚乙烯泡沫塑料棒。
砼上翻高度同屋面泛水,其余做法同泛水做法一致。
5
空鼓/开裂质量风险评估标准(一):

5
空鼓/开裂质量风险评估标准(二):

砌筑排版样图

过梁、塞缝样图

管线开槽要求
管线开槽:
砼楼板和砼墙面留槽需采用预留方式,严禁人工打凿,预留槽深≤15mm,槽宽≤dn 60mm;
砌体墙给水管槽深度≤dn 10mm,槽宽≤dn 60mm,砂加气砌块墙水平开槽长度不大于500mm;
砌体墙电线管槽深度≤dn 20mm,槽宽≤dn 60mm,砂加气砌块墙水平开槽长度不大于500mm;
尽可能避免交叉或双面开槽,必须交叉或双面开槽时,宜使双面开槽的部位相距至少600㎜范围以外。穿越墙体的水管应严防渗水;
管线开槽埋管应固定牢固,用聚合物砂浆分两次补平,第一次填实至距表面5~8㎜ 待干后再用聚合物水泥砂浆补平为提高抗裂性,在做腻子时,应沿缝贴200㎜ 宽耐碱玻纤网格布或加设镀锌钢丝网增强;
检查开槽开洞的宽度、深度,检查墙体是否松动、断裂,检查是否将墙体打穿
开槽样图

挂网样图

挂网、抹灰样图


6
质量风险评估标准:

构造柱样图


7
成品保护、结构安全质量风险评估标准:

后浇带成品保护


后浇带支撑样图

三、安全文明
1
安全文明防火评估标准:

气瓶存放样图


2
三宝、四口、五临边、脚手架评估标准(一):

安全带佩戴样图

临边防护样图

电梯井防护样图

洞口防护样图

2
三宝、四口、五临边、脚手架评估标准(二):

通道口样图

卸料平台样图

刚性连墙件样图

采用钢管、扣件或预埋件等刚性拉杆或构件组成的连墙件为刚性连墙件。其连接构造既可承受拉力、又可承受压力,附墙端的连接固定方式可视工程条件确定,一般有:
a.拉杆穿过墙体,并在墙体两侧固定;
b.拉杆通过门窗洞口,在墙两侧用横杆夹持和背楔固定;
c.在墙体结构中设预埋铁件,与装有花篮螺栓的拉杆固接,用花篮螺栓调节拉结间距和脚手架的垂直度;
d.在墙体中设预埋铁件,与定长拉杆固结。
脚手架样图

剪刀撑样图

脚手架悬挑样图

3
安全用电评估标准:

接电原理

配电箱样图

4
机械设备评估标准:

吊篮样图

施工升降机防坠器

5
施工机具评估标准:

施工机具防护棚样图

本篇文章转载于豆丁施工