

▲ 建筑面积100平,造价35万(不含家电),项目坐标:成都,完成时间:2021年2月,本案采用设计+施工+全屋木作的全屋托管方式,整屋根据长辈的喜好设计,并使用环保、自然、稳重的主材,利用成熟的施工工艺呈现一套兼具东方与中古气质的养老生活空间

▲ 平面结构图

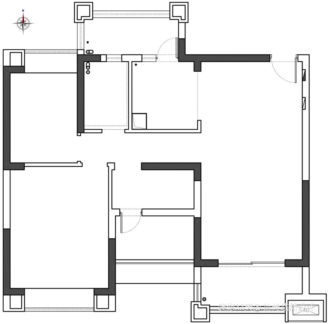
▲ 平面布置图

▲ 入户,薄柜作为日常挂件,斜边柜作为日常出行的外套收纳,为保证斜边柜与其他柜体之间做到无缝衔接保证整体美观,先安装斜边柜体再根据现场情况下单板材,运输到现场再对门板边缘进行45°∠切割,从而达到严丝合缝的斜边柜效果

▲ 客厅纳入休闲阳台后,弧形拱门作为两个空间中的隔断,柔和的线条打碎墙面的硬朗,自然、东方、底蕴是整个空间软装搭配的主旋律

▲ 客厅软装选择 MAZAY 经典的柚木系列茶几以及藤编休闲椅,搭配 ASIDES 皮埃蒙特布艺沙发组合,这个老牌家具制造商出品的家具既有经典简约的造型同时满足舒适度

▲ 客厅望向餐厅视角

▲ 餐厅,选择二黑木作的胡桃木圆桌配合藤编椅作为生活的开场白,一组L型白色餐边柜配合就餐人的生活习惯

▲ 餐厅以入户柜体为背景,圆形的餐桌与茶色圆形玻璃吊灯呼应,一开灯营造温馨氛围

▲ 入户后LDK格局映入眼帘,厨房门调整至过道,以铁艺玻璃窗作为半开放式厨房的主要元素,选择可开合的橱窗设计,空间通透显得更加开阔

▲ 厨房门调整至过道,以铁艺玻璃窗作为半开放式厨房,热情好客且爱看电视的长辈,在烹饪时便能一眼捕捉到客厅的情况

▲ 过道左侧的两间次卧打通作为独立茶室,改变主卧的门位,将其与茶室进行连接,同时也互不干扰

▲ 次卧是屋主小姐姐的房间,在靠近飘窗台的位置以榻榻米+床头收纳柜的形式满足空间功能上的需求

▲ 主卧床头背景墙选择奥丽芙的复古鎏金细节图案的艺术墙纸,也是整个主卧空间的点睛之笔

▲ AB款的藤编床头柜相互照应且独立

▲ 主卧选择环保用材,这也是屋主小姐姐的初衷,大色块的背景墙搭配用柜门适当的留白,满足收纳与视觉的平衡

▲ 主卧床尾的梳妆台

▲ 卫生间,简约灰搭配原木台盆柜,镜柜扩大视觉效果,同时将小件收纳其中,还原一个整洁干净的洗漱环境
视频加载中...
▲ 视频
文字编辑 | 深深
设计 | 拾光悠然设计(成都)
关注公众号:装修33天,可获得设计师更多信息
版权声明:装修33天出品,未经许可不得转载。