面积:180㎡
户型:上下复式
风格:中式原木风

案例色调以以往中式设计不同,主要以浅色系列色为主,白色、米色、裸色、灰色、淡褐色,给人一种清爽的感觉,就像一个化了淡妆的女子,精致久看不腻。
● 客 厅

客厅用原木定制沙发搭配布艺沙发垫,自然舒适;客厅的沙发背景墙设计绝对是亮点,竹林鸟兽墙绘,栩栩如生,仿佛置身于竹林。
● 餐 厅

餐厅与客厅之间没有隔断,这样的一厅两用一体化设计在现代设计中越来越流行,空间更通透,更具层次感。

餐厅的设计采用时尚的卡座设计,节省空间,背景圆形挂画搭配圆吊灯,仿古餐边柜,方圆之间达到一种设计的平衡。
● 主 卧

主卧采用古代中式卧室床的设计形式——架子床,搭配原木材质,古香古色颇有韵味;床头背景墙,延续客厅的壁画风格,清新浪漫。

床尾的斗柜设计,既有收纳作用又不缺装饰效果,摆上一些复古的小玩意儿点缀,档次一下就上来了。
● 次 卧

绿色,是用眼最舒适的一个颜色,小孩的房间用浅绿色装饰,简单大方,适合孩子的成长。

次卧的背景墙用挂画装饰,相对主卧的壁画更加简约,更换也简单,房间到处有绿植装饰,充满生机和活力。
● 负一层
|茶 室|

茶室空间简单清新,未来居住的时间可以慢慢将它一点一点填满丰富起来,留白的空间给生活带来更多的可能性。

精致的茶具摆设,品茶不是一种简单的喝茶,生活就是要有仪式感,才会更加有乐趣。
|书 房|

书房利用墙壁做书柜,整面到顶书柜,不落灰,同时增大收纳空间。
|健 身 区|

书房与健身区要是同时使用的时候用窗帘隔开,全面镜和瑜伽垫,可见户主肯定是个瑜伽爱好者。
● 庭 院

负一层的采光井封了一个玻璃顶,形成一个室内小花园的空间,绿色草坪加上青石板,旁边种着小青竹,温暖的阳光洒进来,竹影斑驳,倒印在粉白的墙面上,夏雨冬雪都有不一样的可观的美好景致,趣味盎然。
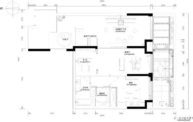
● 平面布置图
|一层平面图|

|负一层平面图|

↙ 5秒帮你算出家里装修价格, 戳原文链接
买了房不知道怎么装修?
推荐一个超赞的微信订阅号:绘本家居
长按二维码关注