地面
1、篮球专用运动地板
篮球专用运动地板三维示意图

1. 设计时应考虑地板下通风,并在施工图中绘出地板通风箅子和龙骨骨通风阵位置及大样2. 粘结用胶需选用运动用木地板专用胶粘剂3. 详细技术参数见厂家资料

2、网络地板安装
静电地板安装三维示意图

1、原建筑钢筋混凝土楼板 2、1:3水泥砂浆找平3、1:3水泥砂浆抹面压实赶光,干后卧铜条分格(铜条打眼穿22号镀锌低碳钢丝卧牢,每米4眼)4、可调节支架系统 5、静电地板

3、自流平做法
自流平做法三维示意图

1、原建筑钢筋混凝土楼板 2、50厚C10细石混凝土垫层,Φ6钢筋@1503、20厚1:3水泥砂浆找平层 4、1.5厚JS或聚氨酯涂膜防水层 5、10厚1:3水泥砂浆保护层6、20厚1:3水泥砂浆找平层 7、自流平界面剂 8、水泥基自流平砂浆层 9、底涂层10、环氧树脂(或聚氨酯薄涂层)

4、地沟做法
地沟做法三维示意图

1、最低处增加暗藏地漏且有暗沟防止第 二层防水渗满 2、原建筑钢筋混凝土楼板 3、∮50 水管,丝扣固定 4、20厚1:3水泥砂浆找平层 5、1.5厚JS或聚氨酯涂膜防水层(一次防水)6、10厚1:3水泥砂浆防水保护层(一次防水) 7、灰砖砌筑水沟一次防水完成后做防水保护(厚度依现场实际) 8、30厚1:3水泥砂浆找平层 9、1.5厚JS或聚氨酯涂膜防水层(二次防水)10、30厚1:3水泥砂浆粘结层 11、10厚素水泥膏 12、防滑砖 13、1.5厚不锈钢 14、20厚不锈钢防滑格栅 15、10厚1:3水泥砂浆防水保护层 16、20厚1:3水泥沙浆粘结层17、地砖(8~12厚,干水泥擦缝)(找坡)

5、铝型材轨道门槛制作
铝型材轨道门槛制作三维示意图

1、原建筑钢筋混凝土楼板 2、1:3水泥沙浆找平层 3、改性沥青防水层,水泥砂浆防水保护层4、1:3干硬性水泥沙浆结合层 5、10厚素水泥膏(黑/白水泥膏) 6、铝型材移门下轨道预埋7、石材(六面防护)

6、木地板+门槛石+地砖工艺
木地板+门槛石+地砖工艺三维示意图


吊顶
1、风口与金属板相接
风口与金属板相接三维图示意图


工艺说明:1、根据图纸确认风口的大小和位置2、根据开好的风口与吊顶的高度确认帆布的大小长短3、安装空调系统风管4、龙骨的安装5、风口的安装

2、玻璃隔断与铝板相接
玻璃隔断与铝板相接三维图示意图


工艺说明:1、在顶棚和地面弹出玻璃隔断的位置线2、安装固定下部的锚固件3、再完成隔断上部的安装4、中间填满橡皮垫或填充剂5、最后用密封胶密封

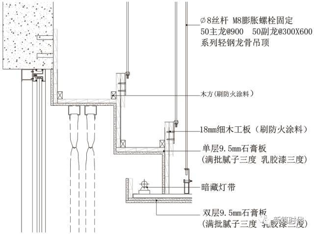
3、窗帘盒与玻璃幕墙相接
窗帘盒与玻璃幕墙收口节点三维图示意图


工艺说明:1、龙骨吊件与钢架转换层焊接固定,连接处满焊,刷防锈漆三遍2、50主龙间距900mm,50副龙间距300mm,副龙横称间距600mm3、18mm细木工板刷防火涂料三度,与吸顶吊件采用35mm自攻螺丝固定4、9.5mm厚纸面石膏板,用自攻螺丝与龙骨固定5、满批耐水腻子三度6、乳胶漆涂料饰面

4、暗藏灯带窗帘盒
暗藏灯带窗帘盒三维图示意图


工艺说明:1、龙骨吊件与钢架转换层焊接固定,连接处满焊,刷防锈漆三遍2、50主龙间距900mm,50副龙间距300mm,副龙横称间距600mm3、18mm细木工板刷防火涂料三度,与吸顶吊件采用35mm自攻螺丝固定4、9.5mm厚纸面石膏板,用自攻螺丝与龙骨固定5、满批耐水腻子三度6、乳胶漆涂料饰面

5、木饰面与钢结构圆柱相接
木饰面与钢结构圆柱相接三维图示意图


工艺说明:1.龙骨吸顶吊件用膨胀螺栓与钢筋混凝土板固定; 2.50主龙间距900mm,50副龙间距300mm,副龙横称间距600mm; 3.9mm厚多层板刷防火涂料三度,用自攻螺丝与龙骨固定; 4.木饰面采用挂条固定;5.加工定制内经300mm,外径350mm成品木饰面线条,与木饰面固定

6、纸面石膏板与钢结构圆柱相接
纸面石膏板与钢结构圆柱相接三维图示意图


工艺说明:1.龙骨吸顶吊件用膨胀螺栓与钢筋混凝土板固定; 2.50主龙间距900mm,50副龙间距300mm,副龙横称间距600mm; 3.加工定制成品石膏线条,内经300mm,外径450mm,预留20*10的凹槽;4.9.5mm厚纸面石膏板与成品石膏线条用自攻螺丝与龙骨固定; 5.满批耐水腻子三度; 6.乳胶漆涂料饰面;注意:留20*10的凹槽

墙面
1、石材与混凝土墙相接
石材与混凝土墙相接三维示意图


工艺说明:1.墙面做JS防水层;2.选用石材18mm,均经过六面防护、晶面处理;3.塑造石材造型,上下口做3mm倒角;4.石材安装前进行打眼,方便铜丝固定(上下共4个眼);5.钢筋与石材固定;6.土建墙体固定膨胀螺栓;7.钢筋于螺栓固定,钢筋成网状;8.铜丝栓绑与钢筋网;9.石材与墙体之间填充水泥砂浆,即灌浆。

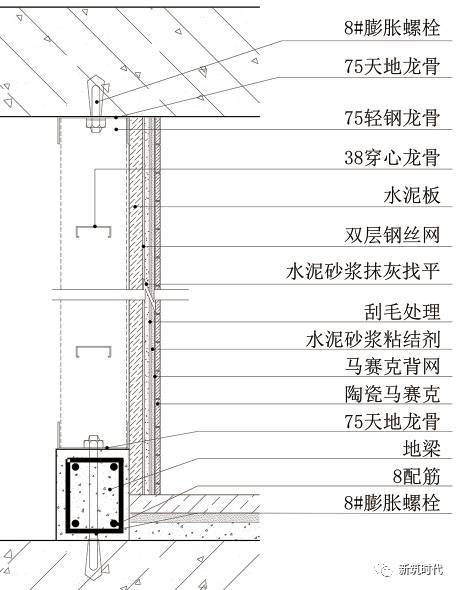
2、陶瓷马赛克隔墙工艺做法
陶瓷马赛克隔墙工艺做法三维示意图


工艺说明:1.选用马赛克,表面平整、尺寸正确、边棱整齐。2.上下固定75天地龙骨,上38穿心龙骨完成基层施工。3.固定水泥板,上双层钢丝网。4.水泥砂浆抹灰找平处理,一定保证平整度。5.刮毛处理,保证粘结层的附着力。6.铺贴马赛克,完成施工。7.揭纸、调缝、擦缝。

3、玻璃窗户与墙面相接
玻璃窗户与墙面相接三维示意图


工艺说明:1.玻璃物料选样,无划痕,无损伤。2.钢架基层预埋。3.U型槽的焊接安装。4.弹性胶垫填充。5.安装玻璃,透明胶条填充。6.收口处3mm打胶处理。7.清理,保护。

4、加气块墙石材干挂
加气块墙石材干挂三维示意图


工艺说明:1.选用石材18mm,均经过六面防护、晶面处理。2.塑造石材造型,上下口做3mm倒角。3.加气块墙体固定镀锌钢板,一般用8#穿墙螺栓固定。4.在干挂件无法满足造型的需求下,采用满焊5#角钢转接件,以调整完成面与墙体的间距。5.满焊8#镀锌槽钢竖向。6.满焊5#镀锌角钢横向龙骨。7.固定不锈钢干挂件。8.固定不锈钢干挂件,AB胶固定石材,完成安装。9.近色云石胶补缝,水抛晶面。

5、艺术玻璃与墙面相接做法
艺术玻璃与墙面相接做法三维示意图


工艺说明:1.玻璃物料选样,无划痕,无损伤。2.钢架基层预埋。3.钢架基层焊接。4.使用结构胶安装艺术玻璃。6.安装完成,清理,保护。

6、木龙骨干挂木饰面墙面做法
木龙骨干挂木饰面墙面做法三维示意图


工艺说明:1.30*40mm木龙骨中距300mm,刷防火涂料三度,用钢钉与木桢固定,木桢固定在混凝土墙体内。2.12mm厚多层板基层找平处理,用钢钉与木龙骨固定,刷防火涂料三度。3.木挂条中距300mm,用枪钉与多层板固定,木挂条背面刷胶,且刷防火涂料三度。4.木挂条背面刷胶与木饰面用枪钉固定。5.木饰面卡件安装,木饰面平整度调整。

7、混凝土隔墙乳胶漆类做法
混凝土隔墙乳胶漆类做法三维示意图


工艺说明:1.混凝土隔墙表面清除干净,墙面滚涂界面剂一遍,素水泥浆一道内掺水重3%~5%的108胶。2.10厚1:0.3:3水泥石灰膏砂浆打底扫毛3.6厚1:0.3:2.5水泥石灰膏砂浆找平层4.满刮三遍腻子(内掺水重3%~5%的108胶)5.封闭底涂料一道,待干燥后找平、修补、打磨6.第三遍涂料滚刷要均匀,滚涂要循序渐进,最好采用喷涂。

文章来源筑龙论坛,仅作交流分享