
一、墙柱模板
1、测量放线
1)由测量人员弹出20cm 模板控制线及模板定位边线;
2)离转角10cm 弹大脚垂直度控制线。

大角控制线

模板边线及控制线
2、墙模板安装 点击☞工程资料免费*载下**
1)模板内侧与定位线重合;
2)底排螺杆离地面不大于20cm,顶排螺杆距离顶板底部30-35cm,阴角螺杆距离阴角墙面不大于20cm,阳角螺杆距离阳角不大于10cm;
3)木方间距不大于25cm,垂直度不大于3mm。
阴阳角配模

剪力墙接槎部位配模
3、模板脱模剂
1)每使用2 层涂刷一次脱模剂;
2) 墙模板周转8~9 层更换一次(视模板质量而定)。

涂刷脱模剂
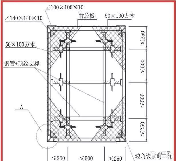
4、柱模板施工
1)木方间距≤200mm,最下端木方距地面≤50mm;
2)最下端钢管(对拉螺杆)距地面≤200mm,间距≤450mm。


柱模板安装
5、梁柱接头
1)采用多层板定型加工制作,严格控制加工尺寸;
2)槽宽=梁宽+梁侧模×2,槽深=梁高-板厚,背面竖向50×100mm 木方加固。

梁柱节点接头

梁柱节点模板支设
6、模板检查 点击☞工程资料免费*载下**
1)螺杆位置及间距符合加固要求;
2)模板垂直度控制在3mm 内;
3)螺帽紧固力矩40~65N•m。

螺帽拧矩检查

模板垂直度检查
二、墙体模板加固
1、直线型墙体模板
1)螺杆直径不小于φ14,螺帽与螺杆需配套,最下面三排使用双螺帽;
2)拼缝之间需粘贴海绵条,主次龙骨间距要按照方案铺设;
3)距离地面20cm 处设置第一道螺杆,距离顶板底20cm 处设置一道螺杆,两侧距边10cm 处设置一到螺杆。
4)对拉螺杆根据墙体高度、长度等分,间距450mm~500mm 为宜。

直线型模板配模剖面图
2、T 型墙体模板
1)墙垛长度超过30cm 增加一道螺杆,慕板拼缝处用木方压实;
2)其余条件同直线型墙体模板加固。

T 型模板配模剖面图
3、L 型墙体模板
1)墙垛长度超过30cm 增加一道螺杆,慕板拼缝处用木方压实;
2)其余条件同直线型墙体模板加固。


L 型模板配模剖面图
三、洞口模板
1)采用φ14 以上螺杆加固,螺帽螺杆必须配套;
2)最下面三排需使用双螺帽,拼缝之间贴好海绵条,木方压实;
3)木方间距<225mm 为宜,离地面20cm 设置第一道螺杆,离顶板
底20cm 设置第一道螺杆,两侧距离边角10cm 设置一道螺杆。 点击☞工程资料免费*载下**


洞口模板加固

洞口模板加固节点
四、模板支撑体系
1)严格按照方案执行,稳固、顺直、规范的支撑体系,确保混凝土浇筑过程中实体结构不移位;
2)在支撑立杆底部加设满足承载力要求的垫块;
3)顶丝伸出立杆顶部不得大于250mm。

垫块

碗扣式节点

架体搭设美观、稳固、顺直
五、楼梯模板
1)模板必须煤层清理干净并涂刷脱模剂;
2)模板每6 层更换一次(视模板质量而定);
3)定位和固定木方不得少于两根;
4)模板拼装接缝需平整严密,防止漏浆;
5)斜板底部预留垃圾清扫口。

楼梯模板

楼梯中间部位加强刚度,防止变形
六、后浇带独立支撑
1)支撑点应位于主要受力构件的边缘;
2)悬挑2m 以内(上部无荷载)可不支撑,悬挑3m 以上需经过计算确定支撑形式及间距;
3)独立支撑在后浇带混凝土浇筑完成,强度达到设计要求后方可拆除。

废旧工字钢支撑

混凝土圆柱支撑

混凝土方柱支撑
七、模板早拆支撑体系
1)按早拆支撑体系布置图在地面弹出定位点线;
2)模板拆除时间根据现场同条件试块强度确定,但不应低于设计强度的50%,严禁先拆后支;
3)早拆体系立杆采用油漆涂刷,粘贴标志牌。

早拆头节点图

早拆头效果图
八、大跨度梁独立支撑
1)大跨度梁独立支撑立杆间距控制在2m 以内,与梁板模板同时支设,构件强度达到100%后拆除;
2)独立支撑上下层位置对齐,避免对构件产生剪切破坏;
3)独立支撑与模板支撑体系不得连接,粘贴标志牌,防止误拆。


独立支撑效果图
九、工具式吊模
1)根据图纸尺寸利用角钢制作定性吊模模板,统一编号;
2)模板可加工成2 块,施工时连接而成;
3)吊模底部设置混凝土撑块,保证在混凝土浇筑过程中吊模模板不下陷。


工具式吊模
十、柱大模板
1)大模板拼装前必须涂刷脱模剂,清除表面油污、垃圾;
2)在根部距地面50~70mm 处按墙身线焊定位筋每面不少于2 处,定位筋长度为柱截面尺寸-2mm,两头刷防锈漆;
3)柱模下口采用砂浆封堵,不得漏浆。


柱大模拼装加固
十一、剪力墙大模板
1)大模板拼装前必须涂刷脱模剂,清除表面油污、垃圾;
2)在根部距地面50~70mm 处按墙身线焊定位筋,定位筋长度为柱截面尺寸-2mm,两头刷防锈漆;
3)外墙外侧大模安装时,利用下层螺栓孔固定三脚架支撑,间距1200mm,支撑架平方铺垫木方,并固定到位;
4)下口采用砂浆封堵,不得漏浆。

刷脱模剂

三脚架支撑

剪力墙大模拼装加固
十二、大模板梁口预留
1)梁口处用钢丝网闸槎,待大模板拆除时,立即安排人员对梁口进行弹线切割,切割深度为保护层厚度,不得伤害墙体钢筋;
2)垂直于墙面的小梁(10cm,15cm),可以不预留洞口,拆模后立即弹线剔除。


剪力墙梁口预留