在小助手看来,室内设计的魅力不在于攀比装修有多豪华,多抢眼。而是总能通过不同的设计手段,实现不同人群的居住诉求,为屋主私人订制一套符合其气质和生活需求的理想住宅。
一套好的室内设计,一定是可以“化腐朽为神奇”,通过户型的改造让房屋针对屋主生活诉求发挥更大的价值,便是一种成功。

今日案例便是如此,设计前后,针对68㎡的原户型做了“大刀阔斧”的改造,区别于一般的客餐厅家具布置,这套案例“不走寻常路”,把餐桌椅摆放在客厅正中间,配合严谨的设计巧思,把全屋装满柜子,打造一套拥有“闭环式”动线主轴的家,别看面积不算大,实际藏着满满的设计智慧,实用性不输大户型,非常值得参考。好的设计,一段话当然介绍不完,别急,跟随我的脚步了解设计和全屋实景吧!
房屋基本情况和设计理念简介
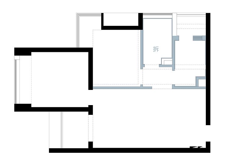
68㎡为全屋不含公摊的实测使用面积(公摊数约为22㎡),纵观原户型,几乎是没有什么浪费的空间,两室两厅,格局合理,空间面积划分均匀。

▲原始户型图
但有多处位置不符合屋主的生活需求:
①餐厅太小,无独立门厅,家具摆放和储物空间设定会起冲突。
②屋主热情好客,客餐厅无法满足多人休闲聚餐。
③屋主需要大量储物空间,但全屋几乎没有太多可以配置储物空间的地方。

▲改造后方案图
结合屋主的生活需求,设计师针对户型本身结构扬长避短,在保证不拆除承重墙的情况下,做了如下巧妙改造:
①、②两处改造,缩小了次卧面积,把小阳台纳入厨房,多出来的空间给到客餐厅,让主空间倍增,也完美节约出一个过道面积。
③摒弃传统客厅、餐厅分离式格局,把餐桌椅、吧台、电视墙融为一体,居中摆放,形成闭环式动线主轴。
④围绕闭环动线,把主空间四周可以利用的墙壁装满柜子,采用隐形门设计,让大量储物机能藏而不露。
屋内实景

▲入户门厅
大门右侧的墙壁上藏着两个突兀的强电箱和弱电箱,巧妙利用白色的隐形拉手顶天立地柜,遮挡电箱,藏入柜子当中。

柜体以白色为基,适当以浅胡桃木色板材打造开放式壁龛收纳,可以完美收纳零碎小物,也更显视觉层次和灵动效果。
底部悬空大约30cm高度,主要用来收纳常换的鞋子,客人来家里,一堆鞋子放在下面整洁不突兀。右侧紧邻棕色矮脚真皮沙发,留出30cm空间设置手机充电位,细节满分。

沙发至多能坐三人,低矮的靠背能拉伸沙发的视觉效果,起到“以小见大”的视觉对比感,显得客厅更为大气。灰色乳胶漆墙面和灰色地砖打底,更承托棕皮沙发的暖调,冷暖结合层次鲜明,极简高级又不失温馨,完美匹配男主人气质。


右侧紧邻阳台区域,也定制了两组顶天立地极简拉手柜子,从空间层次上来说,呼应左侧鞋柜,两两对称更显美观。而沙发墙借由柜体层次凹进视线当中,带来一种空间上的包裹感,视觉效果充实饱满,空间极致利用。

借用次卧和厨房面积在之后,整个主空间宽敞不少,客厅的整个长宽尺寸也更为接近,其实这样的格局对于客餐厅布置来说,是有些困难的。
恰恰结合了屋主的生活诉求,设计师巧妙把餐桌椅摆放在客厅正中间,整体定制,连带右侧电视墙和背后吧台一同打造。

把整个生活区和功能区集中于客厅正正中间,这样一来,沙发的三人位,加上餐厅的四人位,以及吧台的双人位为,整个主空间可以容纳7个人宽松入座。

▲餐厅
定制餐桌没有复杂的桌腿,平时打扫卫生的时候非常方便,餐椅不用的时候可以推到餐桌下方,更显简洁。

整个空间的休闲气息和互动能力超强。可以在吧台区域品酒,在餐桌区域阅读,也能躺靠在沙发上看电视。电视机嵌入定制的电视柜之内,浅胡桃木色木质结构呼应鞋柜处的同色系木材,细节收口严丝合密,可以看到工艺很是精湛。

▲主空间动线示意图
餐桌桌椅和电视墙居中摆放之后,四周形成了一个“口字型”的动线闭环,在室内走动的时候,可以选择两个方向,不必折返,生活效率会提升很多。而围绕闭环式动线,四周的可用墙体都布满了屋主需要的大量储物空间,整个房屋的功能利用率发挥到极致。

这个视角可以看到吧台区域,相比餐桌要更高一些,休闲气息更强,整个设计错落有致,功能完善又紧凑。背后的过道就是扩大的主空间面积,在右侧的改造细节图中也可以看出亮点。针对屋主的生活需求来说,改造后的设计充满智慧。实用性绝不输大户型。

主卧门两侧也通过柜子做了加厚,结合整个客厅吊顶的设计,正中央空调的风口恰好藏入柜子顶部,外面持平后依旧可以保证整个客厅的方正、整洁。而收纳空间彻底做到了藏而不露,白色的极简主卧门也能从视觉上和墙面以及柜体进行更好的融合,从外观看丝毫不突兀。

▲主卧

主卧改造前后空间格局保持不变,因为主空间拥有了很多柜子,所以对主卧收纳空间的要求就不会太高,在床右侧定制一排常用衣柜即可。摆放一张1.8米宽大床,一个人睡别提多舒服了。


黑色金属烤漆和实木抽屉打造的现代拼接茶几,炫酷又好看,从家具细节就能看出男主人是一个重视生活品质和生活品味的人。

▲次卧
次卧改造后面积确实缩小不少,考虑到作为书房和临时客房,飘窗拆除改导致了L型转角办公区,富余空间定制榻榻米床,能睡人能储物。以目前的经济条件看,屋主未来结婚还会换房子,所以不必担心娶妻生子空间不够住的问题。

▲卫生间
卫生间 的整体面积没有缩小,考虑到空间利用,左侧定制悬空浴室柜,采用台盆一体无缝台面,保证打扫卫生的便利和收纳功能的最大化。

▲厨房
有了北阳台的面积加持,实际厨房的总面积没有缩小。因为平时很少做饭,基本的洗切炒动线可以满足偶尔的烹饪需求。
