本案不愧为是“仙女堡”~
房子是母亲为了即将毕业的双胞胎女儿所购置的,希望她们在城市里有个栖身之所,而不用为住所奔波。
出于这一份爱,本案设计的主题就是温馨、舒适的生活空间。

从设计、到家居的摆放、到色彩的配合,所有的一切无不在遵循舒适性原则。
# LAYOUT #
因为常住人口是两位小姐姐,所以在空间布局上会更多考虑女孩子的需求,比如说衣帽间,在注重休闲的同时也提高空间的美观度。
风格上,两位女主选择了日系的休闲北欧风,以原木作为主元素,多用单一的米色系布艺,衬托出气质的恬淡清新。

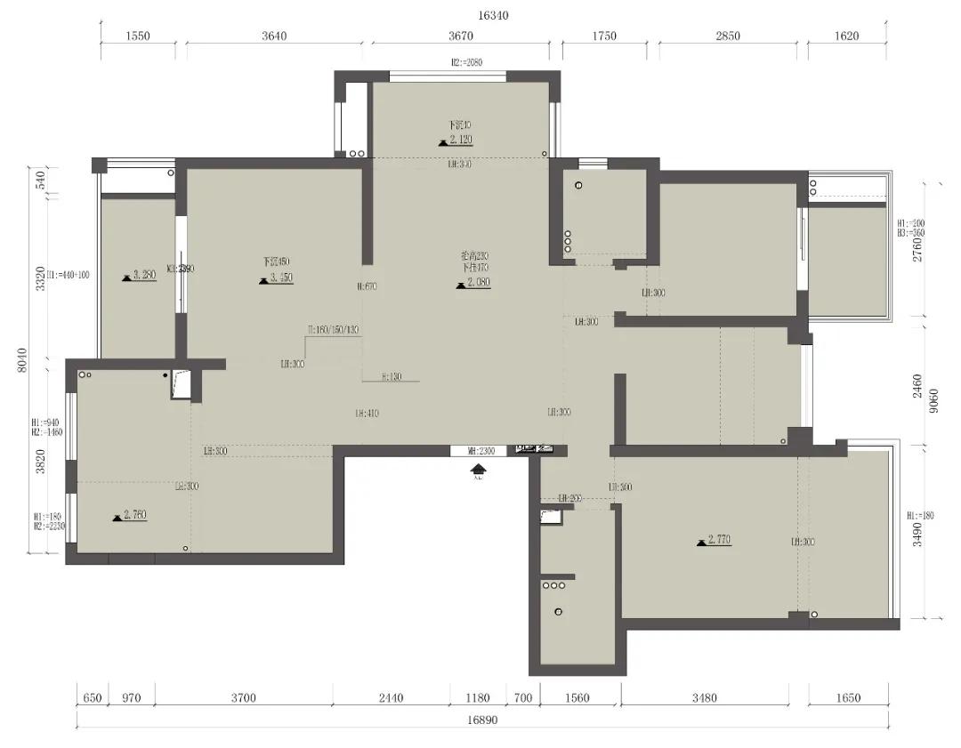
/原始结构图

/平面布置图
设计亮点:
①进门之后正对的休闲空间延长,隔出一个大衣帽间;
②阳台位置包进来,作为客厅使用,客厅做台阶式下沉。
玄 / 关
进门玄关做了一个偏向于日式的禅意造景,以圆窗做出端景层次感。放置超具设计感的摆件,空间的意境顿显。


本来是不存在玄关的,因为衣帽间的设计留下了一整面的白墙。于是做了造景设计,为空间增添了不少的艺术美感。
客 / 厅
因为本来的空间较其他区域是有下沉的落差,于是独用一个空间作为客厅,以台阶作为过渡,完成空间的联动。


半墙的设计让客厅多了些许灵动感,同时又能作为客厅的隔断。电视机嵌入背景墙,并设计等宽的镂空部分,实现储物的功能。

客厅空间,本来面积不算大,所以布置会以简单舒适为准, 比较注重空间本来的功能实用性 。米色的沙发作为客厅的主角,间或格纹的图案,木制的框架,都凸出来日系的简单。
装饰画斜挂,有助于从视觉上拉伸空间;同时,将阳台打通也让空间采光翻倍,拓展视线。

客厅与过道选择 以半高的玻璃扶手作为隔断 ,这样客厅的一角呈现出半开放的效果,增加空间的动性,同时也把客厅的光带入其他空间。
餐 / 厨
餐厅与厨房,位于进门后的左手边,两个空间本身是狭长的,所以可以把他们合整为一个区域。


先说客厅部分。
靠墙整排成品木饰板定制的 ,餐边柜,增加收纳功能。自然的木色很给人清爽、简洁的质感。
桌子选择稍深的木色,同一色系又拉开了层次感,入眼极为舒适。圆形的桌子可以容纳较多人同时入座,朋友来访也不怕。

靠半墙选择了成品的柜体,可以放置杯具之类,这个位置,无论是厨房、餐厅亦或是客厅都是不错的转角。长虹的玻璃柜门也为矮柜添上恰到好处的美与空间感。

厨房需要通过餐厅进入,所以选择了玻璃移门的形式,一来延伸感增加,二来也将光线引入餐厅。
通过隔断门,可以清楚看见厨房的格局,依旧是以原木+白作为主色,搭配很显干净、整洁。
主 / 卧
主卧同样也是将阳台包进,整体感非常强。


色彩依旧是原木+白,满满日杂风。背景墙以木饰面、硬包进行搭配,质感颇显。
阳台区域不是简单的拆除,而是留下梁,可以作为视觉上的一种分割。本来的阳台就可以放置梳妆台,懒人沙发的存在是为了增加空间的休闲特质。


女生会喜欢抱着期待的心情提前准备第二天的着装,所以除了衣柜,还是需要展示性的挂衣架,就床尾的墙面摆放,慢慢日系通勤味道。
衣/ 文/ 间
衣帽间的位置是整屋的中心区域,方便大家进行衣物的选择更换。

衣帽间整体也是以木饰板定制,内里设计U字形,最大化提高收纳能力。落地式穿衣镜,方便移动,实现穿衣幸福感。

衣帽间仅一盏顶部照明,满足基本功能即可。
休/ 文/ 区
休闲区是提供姐妹俩放松的空间。

除了休闲,墙体部分还悬挂了展示架,用作工艺品的收纳展示。当然,要是客人来了,也能直接带到这个区域娱乐。
阳 / 台
次卧的阳台未进行包进,所以做了生活阳台的设计,承担洗衣晾晒的职责。

卫 / 浴
白色北欧砖,原木台盆柜,外加一些贴心的插座细节设计,符合生活习惯。
