导读:护墙板,又称墙裙,壁板,是近年来发展起来的新型装饰墙体的材料,一般采用木材等为基材。
护墙装饰板具有质轻,防火、防蛀,施工简便,造价低廉,使用安全,装饰效果明显,维护保养方便等优点。它既可代替木墙裙,又可代替壁纸、墙砖等墙体材料,因此使用十分广泛。



护墙板主要由墙板 + 装饰柱 + 顶角线 + 踢脚线 + 腰线几部分组成。根据不同分类要求,有下面一些类型:
材料:纯实木墙板、实木综合类墙板及实木复合墙板三类。
组合形式:墙裙板、墙框两组合(简称落樘)、墙裙墙框两组合、墙板两组合(简称满护墙)、墙裙墙框上围裙组合、护墙板包柱与背景墙组合、护墙板罗马柱与背景墙组合、床头背景墙、门洞套、窗套和装饰垭口套等几种形式。
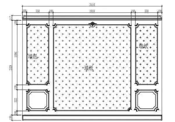
餐厅背景墙




构图方式:对称式构图法、圆形式构图法、左中右式构图法、上中下式构图法、上下式构图法。
风格:中式、新中式、欧式(巴洛格风格、洛可可风格、新古典风格)、美式、地中海、简约风格等。
设计师可根据不同的客户需求,用不同的材质和风格,结合不同的组合方式和构图方式设计出精彩的护墙板产品。
此文按照使用空间为大家分享多款护墙板设计样式供设计师参考,如果你也是做整木定制的,就快快收藏吧!
客厅背景墙




卧房床头背景墙




卧式背景墙






