
案例信息
房屋类型:毛坯房
户型格局:2室2厅1卫
空间面积:46㎡(室内)
常住人口:3人(两大+一小)
设计风格:简约混搭风
案例设计:嘉富设计
主要建材:超耐磨木地板、乳胶漆、定制柜

案例故事
我们以生活为基调,运用每个基地的自然条件特性,结合建筑思考与室内设计的专业知识与背景,创造专属于空间的剧本。
因为我们相信,
好的设计来自于最微小的生活轨迹。
Because we believe,
Good design comes from the tiniest traces of life!
——嘉富设计
本案是一套新房设计,有意思的是,每次沟通结束后,设计师都能够见到一家三口大手牵小手离开,因此本案以“牵手”为规划灵感,为幸福的他们交出了一份满意的答卷。
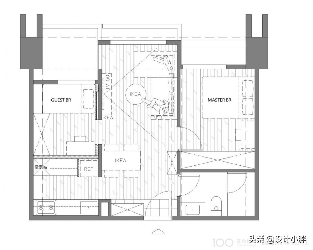
【户型资料】

▲原始结构图

▲平面布置图
【屋主需求 】
1. 希望有充足的收纳空间。
2. 喜欢简单不复杂的设计风格。

【设计师说】
一、改造要点
其一,由于原厨房区有着畸零且不完整的隔墙,因此仅对平面格局施以微调,将墙面补齐并拉直,避免相邻的房间出现隔音破口,也争取到理想的收纳空间。
其二,屋主对于偏冷色系的接受度高,便以此颜色定调。不过,为了确保色彩实际运用在空间后的感受,能够跟原有想像彼此契合,也请来油漆师傅现场打样,分别就白天、夜晚不同情境与光源状态下,调配出最适切舒服的颜色。

全屋以2020年度流行色彩“曙光青”(Tranquil Dawn)延伸创意,通过颜色取代具象造型诠释主题。利用公共厅区中的浅灰绿跳色墙面,以及包覆感的弧形线条,传达手心张开两两交互感受温度和“家”的意象,走,看看去!
案例设计
【客厅设计】

开门入户,只见与充沛日光相偎的客厅,整片天花板与部分墙体均刻意刷上了灰绿色,以此界定区域:灰绿之下的长向空间是一家人最常聚集之处,左右两侧则为私人卧室。

同时通过柔弧元素垂直向下延伸的效果,模糊房屋的垂直、水平轴线,让人一入门便能感受完整且放大的空间视野。

极简的电视背景墙没有夺取视觉焦点,保证了客厅功能性,将繁复装饰最小化缩减。考虑到屋主幼儿活动的安全性,尽可能简化家具与陈设,并以活动式家具为主,未来也可随着孩子的成长弹性调整。
【餐厨区设计】
设计师将厨房和餐厅,设计在了一个较大的区域,餐烹饪时炒菜声,聊天声,嬉笑声,贯串整个空间,平凡的烟火气是对生活的真实记录,空间里记录着美好生活的分分秒秒。

即便餐厅的设计再简单,也逃不了时尚的味道,马卡龙色系北欧吊灯为空间点亮不同的氛围,在光影之间传递家的温情,无论在这里一人食还是亲友小聚,都显得小资又惬意。
值得一提的是,餐桌椅设计师特意选用了暖意木质,与灰绿主题色相辅相成,在净白区块背景下围塑出自然雅致的调性。

一眼可见,顺着厨房和餐桌背景墙间的柱体设计师规划了一列悬挑式柜体,不仅满足玄关鞋柜、餐厨器皿等收纳需求,也将配电箱隐藏于其中。
浅灰色石质感墙砖衬托纯白色的橱柜,给予纯粹干净的视觉效果,纯色与纹理的配搭又显得十分高级。
【卧室设计】

卧室的设计给人很素雅的感觉,简简单单之间使视觉上极度舒适,没有明晃晃的亮色,而都是清新淡雅的配色,能够让屋主置身其中,将繁杂远远抛掷脑后。

由于面积精巧,仍以洁净的白为基调,一旁衣柜柜门抹上天空蓝,清新又俐落。设计师循着低矮大梁向下延伸出一排纯白床头柜,让换季被套和行李箱等用品皆有所归,亦有效化解了空间压迫感,仅留下舒适惬意的卧眠氛围。
Editor’s Comment
不论家有多大,将生活细节揉进家的设计风格之中,目之所及都是自己想要的模样,便足矣。
(以上为屋主依据自身需求装修的过程点滴,所有材料、时间、花费等皆为屋主能接受的范围,并非人人适用,仅供参考!若想追求更为讲究及细致的生活,建议找专业设计师处理,看更多亲子房案例,请关注小胖,谢谢!)