水暖工程作业指导书
目 录
1 总 则 2
2 书 语 3
3 基本规定 5
4 室内给水系统安装 8
4.1 给水管道及配件安装 8
4.2 室内消火栓及自动喷淋系统安装 20
4.3 给水设备安装 22
5 室内排水系统安装 28
5.1 一般排水管道及配件安装 28
5.2 同层排水管道及配件安装 33
5.3 雨水管道及配件安装 34
6 室内热水供应系统安装 36
6.1 管道及配件安装 36
6.2 辅助设备安装 36
7 室内采暖系统安装 38
7.1 管道及配件安装 38
7.2 辅助设备及散热器安装 43
7.3 系统水压试验及调试 46
1 总 则
1.0.1 为了加强建筑工程质量管理,提高施工技术水平,特制定本施工指导书。
1.0.2 本施工指导书适用于建筑给水、排水及采暖工程的施工及验收。
1.0.3 建筑给水、排水及采暖工程施工过程中的验收要求不得低于本施工指导书的规定。
1.0.4 建筑给水、排水及采暖工程施工应具备下列条件:
1 设计图纸及其他技术文件齐全,并且经过“四方”会审。
2 按批准的施工方案已进行技术交底。
3 现场材料和设备能满足进度需求,施工设备、机具等能保证正常使用。
4 施工场地及施工用水、电等临时设施,能满足施工需要。
5 如果条件允许,先做施工样板做到样板引路,避免大面积施工出现问题和偏差。
1.0.5 建筑给水、排水及采暖工程所使用的主要材料、设备及制品,应有符合国家或部颁现行标准的技术质量鉴定文件或产品合格证。
1.0.6 建筑给水、排水及采暖工程的施工,应与其它有关专业工种密切配合。在施工过程中应做好质量检验评定,保证工程质量达到国家标准和设计要求。
1.0.7 本施工指导书与国家标准《建筑工程施工质量验收统一标准GB 50300》、《建筑给水排水及采暖工程施工质量验收规范GB 50242》等标准配套使用。
1.0.8 建筑给水、排水及采暖工程的施工及质量验收除应执行本指导书标准外,还应符合国家现行有关标准、规范及地方相关标准的规定。
2 术 语
2.0.1 给水系统
通过管道及辅助设备,按照建筑物和用户的生产、生活和消防的需要,有策划的输送到用水地点的网络。
2.0.2 排水系统
通过管道及辅助设备,把屋面雨水及生活和生产过程所产生的污水、废水及时排放出去的网络。
2.0.3 热水供应系统
为满足人们在生活和生产过程中对水温的某些特定要求而由管道及辅助设备组成的输送热水的网络。
2.0.4 卫生器具
用来满足人们日常生活中各种卫生要求,收集和排放生活及生产中的污水、废水的设备。
2.0.5 给水配件
在给水和热水供应系统中,用以调节、分配水量和水压,关断和改变水流方向的各种管件、阀门和水嘴的统称。
2.0.6 辅助设备
建筑给水、排水及采暖系统中,为满足用户的各种使用功能和提高运行质量而设置的各种设备。
2.0.7 试验压力
管道、容器或设备进行耐压强度和气密性试验规定所要达到的压力。
2.0.8 额定工作压力
指锅炉及压力容器出厂时所标定的最高允许工作压力。
2.0.9 管道配件
管道与管道或管道与设备连接用的各种零、配件的统称。
2.0.10 固定支架
限制管道在支撑点处发生径向和轴向位移的管道支架。
2.0.11 活动支架
允许管道在支撑点处发生轴向位移的管道支架。
2.0.12 静置设备
在系统运行时,自身不做任何运动的设备,如水箱及各种罐类。
2.0.13 分户热计量
以住宅的户(套)为单位,分别计量向户内供给的热量的计量方式。
2.0.14 热计量装置
用以测量热媒的供热量的成套仪表及构件。
2.0.15 卡套式连接
由带锁紧螺帽和丝扣管件组成的专用接头而进行管道连接的一种连接形式。
2.0.16 防火套管
由耐火材料和阻燃剂制成的,套在硬塑料排水管外壁可阻止火势沿管道贯串部位蔓延的短管。
2.0.17 阻火圈
由阻燃膨胀剂制成的,套在硬塑料排水管外壁可在发生火灾时将管道封堵,防止火势蔓延的套圈。
2.0.18 同层排水
同层排水是指卫生间内卫生器具排水管(排污横管和水支管)均不穿越楼板进入他户。从墙体结构安装方式上分为三种不同的方式:①降板:即采用卫生间楼板(或局部楼板)下层的方式②墙排(以管道隐蔽安装系统为主要特征)方式③垫层式。 3 基本规定
3.1 建筑给水、排水及采暖工程与相关各专业之间,应进行交接质量检验,并形成记录。
3.2 隐蔽工程应在隐蔽前经验收各方检验,合格后方能隐蔽,并形成记录。
3.3 地下室或地下构筑物外墙有管道穿过的,应采取防水措施。对有严格防水要求的建筑物,必须采用柔性防水套管。
3.4 管道穿过结构伸缩缝、抗震缝及沉降缝敷设时,应根据情况采取下列保护措施:
1 在墙体两侧采取柔性连接。
2 在管道或保温层外皮上、下部留有不小于150mm的净空。
3 在穿墙处做成方形补偿器,水平安装。
3.5 在同一单位工程,同类型的采暖设备、卫生器具及管道配件,宜安装在同一高度上;在同一房间内,除有特殊要求外,应安装在同一高度上。
3.6 明装管道成排安装时,直线部分应互相平行。曲线部分:当管道水平或垂直并行时,应与直线部分保持等距;管道水平上下并行时,弯管部分的曲率半径应一致。
3.7 管道支、吊、托架的安装,应符合下列规定:
1 位置正确,埋设应平整牢固。
2 固定支架与管道接触应紧密,固定应牢靠。
3 滑动支架应灵活,滑托与滑槽两侧间应留有3~5mm的间隙,纵向移动量应符合设计要求。
4 无热伸长管道的吊架、吊杆应垂直安装。
5 有热伸长管道的吊架、吊杆应向热膨胀的反方向偏移。
6 固定在建筑结构上的管道支、吊架不得影响结构的安全。
3.8 钢管水平安装的支、吊架间距不应大于下表的规定。
钢管管道支架的最大间距表
|
公称直径(mm) |
15 |
20 |
25 |
32 |
40 |
50 |
70 |
80 |
100 |
125 |
150 |
200 |
250 |
300 |
|
|
支架的最大间距(m) |
保 温 管 |
2 |
2.5 |
2.5 |
2.5 |
3 |
3 |
4 |
4 |
4.5 |
6 |
7 |
7 |
8 |
8.5 |
|
不保温管 |
2.5 |
3 |
3.5 |
4 |
4.5 |
5 |
6 |
6 |
6.5 |
7 |
8 |
9.5 |
11 |
12 |
|
3.9 采暖、给水及热水供应系统的塑料管及复合管垂直或水平安装的支架间距应符合下表的规定。采用金属制作的管道支架,应在管道与支架间加衬非金属垫或套管。
塑料管及复合管管道支架的最大间距表
|
管径(mm) |
12 |
14 |
16 |
18 |
20 |
25 |
32 |
40 |
50 |
63 |
75 |
90 |
110 |
||
|
最大间距(m) |
立管 |
0.5 |
0.6 |
0.7 |
0.8 |
0.9 |
1.0 |
1.1 |
1.3 |
1.6 |
1.8 |
2.0 |
2.2 |
2.4 |
|
|
水平管 |
冷水管 |
0.4 |
0.4 |
0.5 |
0.5 |
0.6 |
0.7 |
0.8 |
0.9 |
1.0 |
1.1 |
1.2 |
1.35 |
1.55 |
|
|
热水管 |
0.2 |
0.2 |
0.25 |
0.3 |
0.3 |
0.35 |
0.4 |
0.5 |
0.6 |
0.7 |
0.8 |
||||
3.10 铜管垂直或水平安装的支架间距应符合下表的规定。
铜管管道支架的最大间距表
|
公称直径(mm) |
15 |
20 |
25 |
32 |
40 |
50 |
65 |
80 |
100 |
125 |
150 |
200 |
|
|
支架的最大间距(m) |
垂直管 |
1.8 |
2.4 |
2.4 |
3.0 |
3.0 |
3.0 |
3.5 |
3.5 |
3.5 |
3.5 |
4.0 |
4.0 |
|
水平管 |
1.2 |
1.8 |
1.8 |
2.4 |
2.4 |
2.4 |
3.0 |
3.0 |
3.0 |
3.0 |
3.5 |
3.5 |
|
3.11 采暖、给水及热水供应系统的金属管道立管管卡安装应符合下列规定:
1 楼层高度小于或等于5m,每层必须安装1个。
2 楼层高度大于5m,每层不得少于2个。
3 管卡安装高度,距地面应为1.5~1.8m,2个以上管卡应匀称安装,同一单位工程中管卡宜安装在同一高度上;同一房间内管卡应安装在同一高度上。
3.12 管道及管道支墩(座),严禁铺设在冻土和未经处理的松土上。
3.13 管道穿过墙壁和楼板,宜设置金属或塑料套管。
3.14 弯制钢管,弯曲半径应符合下列规定:
1 热弯:应不小于管道外径的3.5倍。
2 冷弯:应不小于管道外径的4倍。
3 焊接弯头:应不小于管道外径的1.5倍。
4 冲压弯头:应不小于管道外径。
3.15 管道接口应符合下列规定:
1 管道接口采用粘接接口,管端插入承口的深度不得小于下表的规定。
管端插入承口的深度表
|
公称直径(mm) |
20 |
25 |
32 |
40 |
50 |
75 |
100 |
125 |
150 |
|
插入深度(mm) |
16 |
19 |
22 |
26 |
31 |
44 |
61 |
69 |
80 |
2 熔接连接管道的结合面应有一均匀的熔接圈,不得出现局部熔瘤或熔接圈凹凸不匀现象。
3 采用橡胶圈接口管道,允许沿曲线敷设,每个接口的最大偏转角不得超过2°。
4 法兰连接时衬垫不得凸入管内,其外边缘接近螺栓孔为宜,不得安放双垫。
5 连接法兰的螺栓,直径和长度应符合标准,拧紧后,突出螺母的长度不应大于螺杆直径的1/2。
6 螺纹连接管道安装后的管螺纹根部应有2~3扣的外露螺纹,多余的麻丝或生料带应清理干净,清除油污后做相应防腐处理。
7 承插口采用水泥捻口时,油麻必须清洁、填塞密实,水泥应捻入并密实饱满,其接口面凹入承口边缘的深度不得大于2mm。
8 卡箍(套)式连接两管口端应平整、无缝隙,沟槽应均匀,卡紧螺栓后管道应平直,卡箍(套)安装方向应一致。
3.16 各种承压管道系统和设备应做水压试验,非承压管道系统和设备应做灌水试验。
3.17 管道和设备安装前,必须清除内部污垢和杂物;安装中断或完毕的敞口处应临时封闭。
4 室内给水系统安装
4.1 给水管道及配件安装
4.1.1 工艺流程
室内给水系统管道及配件安装工艺流程如下图所示。
安装准备
套管制作预 埋
管 道
预制加工
防腐处理
卡架安装
管道安装
水压试验
系统冲洗
调试
验收
管道保温
系统消毒
室内管道安装工艺工艺流程图
4.1.2 施工要点
1 管道预制加工
1) 管道的连接方式一般按设计要求,当设计没要求时可根据管道系统不同的材质、不同的工作压力、不同的温度、不同的安装位置的等情况确定管道连接方式参见下表。
管材、连接方式、切割机具选用表
|
序号 |
管 材 选 用 |
连 接 方 式 |
切 割 记 具 |
|
1 |
不锈钢管 |
焊接或专用接头 |
专用钢锯、专用机械切割机 |
|
2 |
镀锌钢管(热浸镀锌、电镀) |
DN<100丝扣连接,DN≥100沟槽式连接或法兰连接 |
手锯、切割机或氧乙炔火焰 |
|
3 |
焊接钢管 |
丝扣连接或焊接 |
手锯、切割机或氧乙炔火焰 |
|
4 |
螺旋钢管 |
焊接 |
氧乙炔火焰 |
|
5 |
衬塑钢管、涂塑钢管 |
丝扣、法兰、沟槽式连接 |
床、盘锯、手锯 |
|
6 |
给水硬聚氯乙烯管(PVC-U) |
胶粘剂粘接 |
细齿锯、割刀、专用断管机 |
|
7 |
给水用改性聚丙烯管(PP-R) |
热熔连接 |
切管器 |
|
8 |
给水用聚乙烯管(PE) |
热熔连接、电容连接 |
PE热熔对焊机、管道切割机、电熔机 |
|
9 |
铜管 |
焊接或专用接头 |
钢锯、砂轮锯 |
2) 弯管
(1) 根据管道材质和管径的不同,弯管制作有冷弯和热弯之分。
(2) 弯制钢管,弯曲半径应符合规定。
3) 钢管螺纹连接
螺纹连接管道安装后的管螺纹根部应有2~3扣的外露螺纹,多余的麻丝等填料应清理干净并做防腐处理。


螺纹连接样板
4) 管道法兰连接
(1) 凡管段与管段采用法兰盘连接或管道与法兰阀门连接者,必须按照设计要求和工作压力选用标准法兰盘。
(2) 法兰盘的连接螺栓直径、长度应符合标准要求,紧固法兰盘螺栓时要对称拧紧,紧固好的螺栓,突出螺母的丝扣长度应为2~3扣,不应大于螺栓直径的1/2。
(3) 法兰盘连接衬垫,一般给水管(冷水)采用厚度为3mm的橡胶垫,供热、蒸汽、生活热水管道应采用厚度为3mm的石棉橡胶垫。
(4) 法兰连接时衬垫不得凸入管内,其外边缘接近螺栓孔为宜。


法兰连接样板
5) 管道焊接
(1) 根据设计要求,高层建筑消防管道及给水管道等根据所用管道材质可选用电、气焊连接。
(2) 焊缝的设置应避开应力集中区,便于焊接。除焊接及成型管件外的其他管子对接焊缝的中心到管子弯曲起点的距离不应小于管子外径,且不应小于100mm;管子对接焊缝与支、吊架边缘的距离不应小于50mm。
(3) 不宜在焊缝及其边缘上开孔。当不可避免时,应对开孔直径1.5倍或开孔补强板直径范围内的焊缝进行无损检验,确认焊缝合格后,方可进行开孔。


焊接样板
6) 钢塑复合管管道连接
(1) 螺纹连接
套丝应符合下列要求:套丝应采用自动套丝机;套丝机应采用润滑油润滑;圆锥形管螺纹应符合现行国家标准《用螺纹密封的管螺纹》GB/T 7306的要求。
(2) 法兰连接
钢塑复合管法兰现场连接应符合下列要求:
在现场配接法兰时,应采用内衬塑凸面带颈螺纹钢制管法兰,被连接的钢塑复合管上应绞螺纹密封用的管螺纹。
(3) 沟槽连接
A 沟槽连接方式可适用于公称直径不小于65mm的涂(衬)塑钢管的连接。
B 沟槽式管接头应符合国家现行的有关产品标准,沟槽式管接头的工作压力应与管道工作压力相匹配。
7) 给水硬聚氯乙烯管管道连接
(1) 配管时,应对承插口的配合程度进行检验。将承插口进行试插,自然试插深度以承口长度的1/2~2/3为宜,并做出标记。
(2) 管道的粘接连接应符合如下要求:
A 管道粘接不宜在湿度很大的环境下进行,操作场所应远离火源。
B 涂抹胶粘剂应使用鬃刷或尼龙刷,用于擦揩承插口的干布不得带有油腻及污垢。
C 在涂抹胶粘剂之前,应先用干布将承、插口处粘接表面擦净。
D 涂抹胶粘剂后,应在20s内完成粘接。若操作过程中胶粘剂出现干涸,应在清除干涸的胶粘剂后,重新涂抹。
F 粘接时,应将插口轻轻插入承口中,对准轴线,迅速完成。插入深度至少应超过标记。插接过程中,可稍做旋转,但不得超过1/4圈。
8) 给水用改性聚丙烯(PP-R)管管道连接
(1) 切断管材,切断时,必须使用切管器垂直切断,切断后应将切头清除干净。
(2) 当加热完成后,把管材平稳而均匀地插入管件中,形成牢固而完美的结合,并按规定时间冷却。
(3) 熔接连接管道的接合面应一定均匀的熔接圈,不得出现局部熔瘤或熔接圈凸凹不均匀现象。
9) 给水用聚乙烯管(PE)管道连接
(1) 热熔连接
A、热熔承插:待热熔器工作温度指示灯亮后,无旋转地将管材与管件分别插入加热头加热,然后无旋转的拔出,迅速的将管材无旋转的插入管件中,使接头处形成均匀的凸缘,完成后自然冷却一段时间即可。
B、热熔对接:将需焊接的管材、管件固定在对接机上,按管材尺寸使用夹具,端面用铣刀刨光,使对接面光滑、平整、清洁、垂直。 调整管材、管件的高度,使需焊接的管材、管件端面尽量吻合,并接通电源预热加热板。 加热板自动升温至绿色指示灯亮,将需焊接的管材、管件合拢使端面加热,达到加热时间后,将管材、管件从加热
板上分开,再将两加热端面合拢对接,使两端面对接处形成均匀的一圈凸缘,待冷却后即可。
(2) 电熔连接

电熔连接样板
2 预留套管及预埋铁件
1) 在混凝土楼板、梁、墙上预留孔、洞、槽和预埋件时应有专人按设计图纸将管道及设备的位置、标高尺寸测定,标好孔洞的部位,将预制好的模盒、预埋铁件在绑扎钢筋前按标记固定牢,盒内塞入泡沫或木屑等物,在浇注混凝土过程中应有专人配合看护。2) 凡属预制墙板楼板需要剔孔洞,必须在装修或抹灰前剔凿,其直径与管外径的间隙不得超过30mm,遇有剔混凝土空心楼板或断钢筋,必须预先征得有关部门的同意及采取相应补救措施后,方可剔凿。
3 套管安装
1) 管道穿过墙壁和楼板,应设置金属或塑料套管。地下室或地下构筑物外墙有管道穿过的,应采取防水套管。对有管道穿过墙壁之处受有振动或有严密防水要求的构筑物,必须采用柔性防水套管。
2) 安装在楼板内的套管,其顶部宜高出装饰地面20mm;安装在卫生间及厨房内的套管,其顶部应高出装饰地面50mm,底部应与楼板底面相平。安装在墙壁内的套管其两端与饰面相平。
3) 穿过楼板的套管与管道之间缝隙应用阻燃密实材料和防水油膏填实,端面光滑。穿墙套管与管道之间缝隙宜用阻燃密实材料填实,且端面应光滑。管道的接口不得设在套管内。样板如下:
|
|
4) 普通套管:根据所穿构筑物的厚度及管径尺寸确定套管规格、长度,下料后套管内刷防锈漆一道,用于穿楼板套管应在适当部位焊好架铁。管道安装之前,把预制好的套管穿好。
5) 防水套管:根据构筑物及不同介质的管道,按照设计或施工安装图册中的要求进行预制加工。将预制加工好的套管在浇注混凝土前按设计要求部位固定好,校对规格、数量、标高、位置等,校对合格后浇注混凝土,待管道安装完毕后按照要求封堵管道和套管之间的间隙。防水套管样式如下:
|
|
|
刚性防水套管 |
柔性防水套管 |
4 支、吊、托架的制作安装
1) 支吊架的制作:
(1) 管道支吊应按照设计图纸要求选用材料制作,其加工尺寸、型号、精度及焊接均应符合设计要求。
(2) 下料前,先将型钢调直。下料时应采用砂轮切割机切割型钢。大型型钢在现场用气割切断时,应将切口用砂轮将氧化层磨光,切口表面应垂直。
(3) 用台钻钻孔,不得使用氧乙炔焰吹割孔;煨制要圆滑均匀。各种支吊架要无毛刺、豁口、漏焊等缺陷,支架制作或安装后要及时刷漆防腐。
2) 管道支、吊、托架的安装,应符合下列规定:
(1) 位置正确,埋设应平整牢固。管道支、吊、托架安装时应及时进行固定和调整工作。
(2) 固定支架与管道接触应紧密,固定应牢靠。必须严格安装在设计规定的位置上,并应使管子牢固地固定在支架上。
(3) 滑动支架应灵活,滑托与滑槽两侧间应留有3~5mm的间隙,纵向移动量应符合设计要求。
(4) 无热伸长管道的吊架、吊杆应垂直安装。
(5) 有热伸长管道的吊架、吊杆应向热膨胀的反方向偏移。
(6) 固定在建筑结构上的管道支、吊架不得影响结构的安全。
5 管道安装
1) 工艺流程
安装准备→预制加工→干管安装→立管安装→支管安装→管道试压→管道防腐和保温→管道冲洗→管道消毒
2) 干管安装
(1) 给水镀锌管道安装:安装时一般从总进入口开始操作、总进口端头加好临时丝堵以备试压用。
(2) 热水管道的穿墙处均按设计要求加好套管及固定支架,安装伸缩器按规定做好预拉伸,待管道固定卡件安装完毕后,除去预拉伸的支撑物,调整好坡度,翻身处高点要有放风、低点有泄水装置。
3) 立管安装:
每层从上至下统一吊线安装卡件,将预制好的立管按编号分层排开,顺序安装。立管截门安装朝向应便于操作和修理。
4) 支管安装
将预制好的支管从立管或横干管甩口依次逐段进行安装,根据管道长度适当加好临时固定卡,核定不同卫生器具的冷热水预留口高度、位置是否正确,找平找正后栽支管卡,去掉临时固定卡,上好临时丝堵。支管如装有水表先装上连接管,试压后在交工前拆下连接管,安装水表。
6 阀门及水表等附件安装
1) 阀门的安装
(1) 安装前应仔细检查,核对阀门的型号、规格是否符合设计要求。
(2) 安装止回阀时,必须特别注意阀体上箭头指向与介质的流向相一致,才能保证阀盘能自由开启。
(3) 安装杠杆式安全阀和减压阀时,必须使阀盘中心线与水平面互相垂直,发现斜倾时应予以校订。
(4) 安装法兰阀门时,应保证两法兰端面相互平行和同心。
(5) 螺纹阀门应保证螺纹完整无缺,并按不同介质要求涂以密封填料物,拧紧时,必须用扳手咬牢拧入管子一端的六棱体上,以保证阀体不致拧变形或损坏。
2) 水表安装
(1) 水表应水平安装,并使水表外壳上的箭头方向与水流方向一致,切勿装反;水表前后应装设阀门。
(2) 对于不允许停水或设有消防管道的建筑,还应设旁通管道,此时水表后侧要装止回阀;旁通管上的阀门应设有铅封。
(3) 为了保证水表计量准确,水表前面应装有大于水表口径10倍的直管段,水表前面的阀门在水表使用时全部打开。
(4) 家庭独用小水表,明装于每户进水总管上,水表前应有阀门,水表外壳距墙面不得大于30mm,水表中心距另一墙面(端面)的距离为450~500mm,安装高度为600~1200mm,水表前后直管段长度大于300mm时,其超出管段应用弯头引靠到墙面,沿墙面敷设,管中心距离墙面20~25mm。
7 管道试压
金属及复合管给水管道系统在试验压力下观测10min,压力降不应大于0.02MPa,然后降到工作压力进行检查,应不渗不漏;塑料管给水系统应在试验压力下保持1h,压力降不得超过0.05MPa,然后在工作压力的1.15倍状态下保持2h,压力降不得超过0.03MPa,同时检查各连接处,不得渗漏。
1) 当设计未注明时,各种材质的给水管道系统试验压力均为工作压力的1.5倍,但不得小于0.6MPa。
2) 试压前应将预留口堵严,关闭入口总阀门和所有泄水阀门及低处放风阀门,打开各分路及主管阀门和系统最高处的放风阀门。水压试验之前,对试压管道应采取安全有效的固定和保护措施,但接头部位必须明露。
3) 打开水源阀门,往系统内缓慢充水,将管道内气体排出并将阀门关闭。
4) 检查全部系统,如有漏水处应做好标记,并进行修理,修好后再充满水进行加压,而后复查,如管道不渗、不漏,采用加压泵缓慢升压。
5) 冬季施工期间竣工而又不能及时供暖的工程进行试压时,必须采取可靠措施把水泄净,以防冻坏管道和设备。
6) 对粘接连接的管道,水压试验必须在粘接连接安装24h小时后进行。
8 管道系统消毒
1) 管道试压合格后,将管道内的水放空,各配水点与配水件连接后,进行管道消毒。用含20~30mg/L的游离氯的水灌满管道进行消毒,含氯水在管道中应留置24h小时以上。
2) 消毒结束后,放空管道内的消毒液,用生活饮用水冲洗管道,至各末端配水件出水水质符合现行国家《生活饮用水卫生标准》GB 5749为止。
9 管道系统冲洗
1) 管道系统的冲洗应在管道试压结束后,交付使用前进行。
2) 管道冲洗进水口及排水口应选择适当位置,并能保证管道系统内的杂物冲洗干净为宜。排水管截面积不应小于被冲洗管道截面的60%,排水管应接至排水井或排水沟内。
3) 冲洗时,以系统内可能达到的最大压力和流量进行,直到出口处水质达到生活饮用水标准。
10 管道防腐
给水管道铺设与安装的防腐均按设计要求及国家验收规范施工,所有型钢支架及管道镀锌层破损处和外露丝扣要补刷防锈漆。下面分管道油漆防腐、埋地管道防腐两个部分介绍。
1) 管道油漆防腐施工
(1) 工艺流程
施工准备→表面去污除锈→调配涂料→刷漆或喷涂施工→养护
(2) 金属管道表面去污除锈
金属表面锈垢的清除程度,是决定管道防腐效果的重要因素。为增强漆料与金属的附着力,取得良好的防腐效果,必须清除金属表面的灰尘、污垢和锈蚀,露出金属光泽方可刷、喷底漆。
- 管道涂色分类和色环宽度:管道应根据输送介质选择漆色。


管道油漆防腐样板
(4) 油漆涂刷施工要点
A 手工涂刷:用油刷、小桶进行。漆层厚薄均匀一致,不得漏刷和漏挂。多遍涂刷时每遍不易过厚。必须在上一遍涂膜干燥后,才可涂刷第二遍。
B 浸涂:把调和好的漆倒入容器或槽里,然后将物件浸渍在涂料液中,浸涂均匀后抬出涂件,搁置在干净的排架上,待第一遍干后,再浸涂第二遍。这种方法厚度不易控制。一般仅用于形状复杂的物件防腐。
- 埋地管道防腐施工
埋地管道采用沥青防腐时,分为三个等级即:普通防腐层、加强防腐层和特加强防腐层,具体结构见下表。
沥青防腐等级结构表
|
防腐层等级 |
结 构 |
|
普通级 |
底漆一面漆一面漆 |
|
加强级 |
底漆一面漆一玻璃丝布一面漆一面漆 |
|
特加强级 |
底漆一面漆一玻璃丝布一面漆一玻璃丝璃布一面漆一面漆 |
(1) 工艺流程
施工准备→沥青底漆的配制→调制沥青→埋地管道防腐施工→牺牲阳极保护
(2) 埋地管道防腐施工
由设计确定管道防腐结构级别,分别进行各道工序的施工。
12 管道保温
1) 参照图集03S401《管道和设备保温、防结露及电伴热》室内(含地沟)给水管道及设备的保温有三种形式:热水保温、冷水防结露、热水电伴热保温及冷水电伴热防冻工程。
2) 主要的保温和防结露的材料有:玻璃棉制品、泡沫橡塑制品、酚醛泡沫制品、岩棉制品、聚乙烯泡沫制品、聚氨酯泡沫制品等。
3) 泡沫橡塑制品保温防结露施工
(1) 材料展示


(2) 优点及适用范围
a 绝热效果佳,具有密闭孔结构,且表面细腻,传热系数低且保持稳定。
b 既是绝热层,又是防潮层,无须另加防潮层;即使表面局部损伤,也不会影响整体的防潮性能。
c 安装只需切割粘合,施工简易快捷。
e 不耐高温,一般适用于65℃以下的低温管道保温。
(3) 施工要点:
a 保温材料的接口、所有缝隙均要求使用橡塑专用胶水粘结严密,不得存在粘接不牢或松散现象。b 胶水涂刷时必须在保温管壳内部和管道外壁进行满涂。在保温材料粘接时,必须将管道表面的杂物、灰尘、油污清理干净,以保证胶水的粘接效果。为保证保温观感效果,保温层的纵向拼缝应置于管道上部,并且相邻保温层的纵向拼缝应错开一定角度。c 夏季保温施工,橡塑保温材料不能拉得过紧,以防冬季温度过低时,保温层收缩开胶。冬季保温施工时,要求室内环境温度不能低于5℃,粘接剂及胶带低于5℃时粘接效果不好。d 本工程冷冻水管保温层最厚为60mm,需要分2层进行保温。
4) 岩棉制品保温施工
(1) 材料展示


(2) 优点及适用范围
a 具有良好的绝缘性能(隔热、隔冷、隔声、吸声)、化学稳定性、耐热性和不燃性等特点。
b 岩棉毡:广泛用于形状复杂、工作温度较高等设备的保温、隔热和吸声。 岩棉管套:广泛用于管道(小口径管道)的保温和隔热。
c 岩棉可用于温度在-25℃至400℃的保温部位,一般多用于高温热力管道或电力设备的保温。
(3) 施工要点:
a 需保温的设施以及管道应没有任何泄漏,表面干燥,无油脂,无锈蚀。b 为了能够达到热损失最小目的,板和毡的所有接头一定要对接十分紧密,在多层保温时各个十字接缝应该交错开来,以免形成热桥。c 岩棉制品用于室外保温或者在易受机械磨损的地方宜用金属或塑料包皮,并注意接头,接缝的密封,必要时加胶质封条,包裹层重叠部分不小于100mm 。d 当温度超过200℃ 时,保温必须加合适的外护,这样可能产生的膨胀就不会使厚度和容重发生变化。
4.2 室内消火栓及自动喷淋系统安装
本节适用于民用和一般工业建筑的消火栓及自动喷淋系统的管道安装工程。
施工要点
1 管道预制加工
1) 管道预制加工可参照生活给水管道做法。
2) 管网安装前应校直管子,并应清除管子内部的杂物;安装时应随时清除已安装管道内部的杂物。
3) 在具有腐蚀性的场所安装管网前,应按设计要求对管子、管件等进行防腐处理。
4) 管网安装,当管子公称直径DN<100mm时,应采用螺纹连接;当管子公称直径DN≥100mm时,可采用焊接或法兰连接。
2 预留孔洞及预埋铁件、套管安装可参照生活给水管道的相关做法。
3 支、吊、托架的制作安装
1) 参见生活给水管道的相关做法。
2) 管道的安装位置应符合设计要求,当设计无要求时应符合下表的要求。
管道的中心线与梁、柱、楼板等的最小距离表
|
公称直径(mm) |
50 |
70 |
80 |
100 |
125 |
150 |
200 |
|
距离(mm) |
60 |
70 |
80 |
100 |
125 |
150 |
200 |
5 管道安装
1) 参生活给水管道的相关做法。
2) 干管安装
(1) 消火栓系统干管安装应根据设计要求使用管材,按压力要求选用碳素钢管或无缝钢管。
(2) 管道连接紧固法兰时,检查法兰端面是否干净,采用3~5mm的橡胶垫片,法兰接口应安装在易拆装的的位置。
(3) 配水干管、配水管应做红色或红色环圈标志。
(4) 管道穿墙处不得有接口(丝接或焊接);管道穿过伸缩缝处应有补偿措施。
3) 消火栓系统立管安装
(1) 立管暗装在竖井内时,在管井预埋铁件上安装卡件固定,立管底部的支吊架要牢固,防止立管下坠。
(2) 立管明装时每层楼板要预留孔洞,立管可随结构穿入,以减少立管接口。
4) 消火栓及支管安装
(1) 消火栓箱体要符合设计要求(其材质有木、铁和铝合金等),栓阀有单出口和双出口双控等。
(2) 消火栓支管要以栓阀的坐标、标高定位甩口,核定后再稳固消火栓箱,箱体找正稳固后再把栓阀安装好,栓阀侧装在箱内时应在箱门开启的一侧,箱门开启应灵活。
(3) 消火栓箱体安装在轻质隔墙上时,应有加固措施。
(4) 箱式消火栓的安装应符合下列规定:
A 消火栓不应安装在门轴侧,宜平行于墙面。
B 栓口中心距地面为1.1m,允许偏差±20mm。
C 按要求设置减压孔板或者减压阀。
D 消火栓箱体安装的垂直度允许偏差为3mm。


减压孔板
消火栓箱安装样板
(5) 遇到风管、并排水管、桥架的宽度大于1.2米时需要增设下喷头。样板如下:


6 阀门及其他附件安装
1) 阀门安装参见生活给水管道的相关做法。
2) 节流装置应安装在公称直径不小于50mm的水平管段上;减压孔板安装在管道内水流转弯处下游一侧的直管上,且与转弯处的距离不应小于管子公称直径的2倍。
3) 末端试水装置宜安装在系统管网末端或分区管网末端。
4) 湿式报警阀的安装。
7 管道试压
管网完装完毕后,应对其进行强度试验、严密性试验。
8 屋面明装或者地下室入口处的消防管道需要增设保温层。


消防管道保温样板
9 管道系统冲洗
1) 参见生活给水管道系统的冲洗。
2) 管网冲洗应在试压合格后分段进行。冲洗顺序应先室外后室内,先地下后地上,室内部分的冲洗应按配水干管,配水管、配水支管的顺序进行。
3) 冲洗前,应对管道支架、吊架进行检查,必要时应采取加固措施。
4) 对不能经受冲洗的设备和冲洗后可能存留脏物、杂物的管段,应进行清理。
5) 冲洗直径大于100mm的管道时,应对其焊缝、死角和底部进行敲打,但不得损伤管道。
6) 管网冲洗的水流方向应与灭火时管网的水流方向一致。
10 管道及设备的防腐、保温参照生活给水管道的相关做法。
4.3 给水设备安装
本节适用于室内给水设备安装,包括生活水泵、消防水泵、水箱、罐体等。
4.3.1 工艺流程
1 动设备安装工艺流程
基础验收复核、放线→放置垫铁→吊装就位→找正找平→地脚螺栓灌浆→设备找平→联轴器对中→二次灌浆抹面→清洗拆检组装→设备试验→电气仪表接线调试→设备配管→电动机空载试车→联轴机组空负荷试车→负荷试车→竣工验收
2 静设备安装工艺流程
基础验收复核→吊装就位→找正找平→(地脚螺栓灌浆)→设备找平二次灌浆、抹面→配管配线→试验调整→吹扫清洗、试验→联动试车→竣工验收
4.3.2 施工要点
1 基础验收复核
1) 土建移交设备基础时,策划施工班组依照土建施工图及时提交的有关技术资料和各种测量记录、安装图和设备实际尺寸对基础进行验收,并作好记录。
2) 具体验收内容包括以下各项:
(1) 检查土建提供的中心线、标高点是否准确。
(2) 设备基础部分的偏差
2 基础放线及垫铁布置
1) 基础验收合格后进行放线工作,划出安装基准线及定位基准线、地脚螺栓的中心线。对相互有关连或衔接的设备,按其关连或衔接的要求确定共同的基准。
2) 在基础平面上,划出垫铁布置位置,放置时按设备技术文件规定摆放。
3) 整个基础平面要修整铲麻面,预留地脚螺栓孔内的杂物清理干净,以保证灌浆的质量。
3 设备安装
1) 离心泵机组安装
(1) 离心泵机组分带底座和不带底座两种型式。
(2) 带底座水泵的安装
A 安装带底座的小型水泵时,先在基础面和底座面上划出水泵中心线,然后将底座吊装在基础上,套上地脚螺栓和螺母,调整底座位置,使底座上的中心线和基础上的中心线一致。
B 用水平仪在底座加工面上检查是否水平。不水平时,可在底座下承垫垫铁找平。
C 垫铁的平面尺寸一般为:60×800mm~100×150mm,厚度为10~20mm。垫铁一般放置在底座的地脚螺栓附近。每处迭加的数量不宜多于三块。
D 垫铁找平后,拧紧设备地脚螺栓上的螺母,并对底座水平度再时行一次复核。
E 底座装好后,把水泵吊放在底座上,并对水泵的轴线、进出水口中心线和水泵的水平度进行检查和调整。
F 如果底座上已装有水泵和电机时,可以不卸下水泵和电动机而直接进行安装,其安装方法与无共用底座水泵的安装方法相同。
(3) 无共用底座水泵的安装
A 安装顺序是先安装水泵,待其位置与进出水管的位置找正后,再安装电动机。吊水泵可采三角架。起吊时一定要注意,钢线绳不能系在泵体上,也不能系在轴承架了,更不能系在轴上,只能系在吊装环上。
B 水泵就位后应进行找正。水泵找正包括中心找正、水平找正和标高找正。
C 中心线找正:水泵中心线找正的目的是使水泵摆放的位置正确,不歪斜。找正时,用墨线在基础表面弹出水泵的纵横中心线。然后在水泵的进水口中心和轴的中心分别用线坠吊垂线,移动水泵,使线锤尖和基础表面的纵横中心线相交。
D 水平找正:水平找正可用水准仪或0.1~0.3mm/m精度的水平尺测量。
E 标高找正:标高找正的目的是检查水泵轴中心线的高程是否与设计要求的安装高程相符,以保证水泵能在允许吸水高度内工作。标高找正可用水准仪测量,小型水泵也可用钢板尺直接测量。
(4) 电动机安装(联轴器对中)
A 安装电动机时以水泵为基准,将电动机轴中心调整到与水泵的轴中心线在同一条直线上。
B 通常是靠测量水泵与电动机连接处两个联轴器的相对位置来完成。即把两个联轴器调整到既同心又相互平行。
C 两联轴器的轴向间隙,可用塞尺在联轴器间的上下左右四点测得;塞尺片最薄为0.03~0.05mm。各处间隙相等,表示两联轴器平行。测定径向间隙时,可把直角尺一边靠在联轴器上,并沿轮缘圆周移动。如直角尺各点都和两个轮缘的表面靠紧,则表示联轴器同心。
(5) 电动机找正后,拧紧地脚螺栓和联轴器连接螺栓,水泵机组即安装完毕。
(6) 在安装过程中,应同时填写“水泵安装记录”。
2) 水箱的安装
(1) 设备吊装就位,进行校平找正工作。
(2) 现场制作的水箱,按设计要求制作成水箱后须作盛水试验或煤油渗透试验。
(3) 盛水试验后,内外表面除锈,刷红丹两遍。
(4) 整体安装或现场制作的水箱,按设计要求其内表面刷汽包漆两遍,外表面如不作保温再刷油性调用漆两遍,水箱底部刷沥青漆两遍。
(5) 水箱支架或底座安装,其尺寸及位置应符合设计规范规定。
(6) 按图纸安装进水管、出水管、溢流管、排污管、水位讯号管等。水箱溢流管和泄放管应设置在排水地点附近但不得与排水管直接连接。
(7) 按系统进行水压试验,需绝热的要进行保温处理。
3) 水泵基础的减震措施
一般水泵基础采用的减震措施大概有以下几种:复合橡胶减震垫块,阻尼弹簧减震器,橡胶减震器。水泵减振器(垫块)的安装应注意以下事项:
(1)减振元件应按水泵机组的中轴线对称布置。
(2)当机组减振元件采用六个支承点时,其中四个布置在惰性 块或型钢机座四角,另两个应设置在长边线上,并调节其位置,使减振元件的压缩变形量尽可能保持一致。
(3)卧式水泵机组减振安装橡胶减振垫或阻尼弹簧减振器时,一般情况下,橡胶减振垫和阻尼弹簧减振器与地面,及与惰性块或型钢机座之间不需粘接或固定。
(4)立式水泵机组减振安装使用橡胶减振器时,在水泵机组底 座下,宜设置型钢机座并采用锚固式安装;型钢机座与橡胶减振器之间应用螺栓(加设弹簧垫圈)固定。在地面或楼面中设置地脚螺栓,橡胶减振器通过地脚螺栓后固定在地面或楼面上。
(5).橡胶减振垫的边线不得超过惰性块的边线;型钢机座的支 承面积应不小于减振元件顶部的支承面积。
(6)橡胶减振垫单层布置,频率比不能满足要求时,可采取多 层串联布置,但减振垫层数不宜多于五层。
(7)垫与钢板应用粘合剂粘接。镀锌钢板的平面尺寸应比橡胶减振垫每个端部大10mm。 镀锌钢板上、下层粘接的橡胶减振垫应交错设置。


设备减振样板
4 泵房管道、附件、管件、仪表的安装
1) 在水泵二次灌浆混凝土强度达到75%以后,水泵经过精校后,可进行配管安装。
2) 配管时,管道与泵体连接不得强行组合连接,且管道重量不能附加在泵体上。
3) 对水平吸水管有以下几点要求:
(1) 水泵吸水道如变径,应采用偏心大小头,并使平面朝上,带斜度的一段同朝下。
(2) 为防止吸水管中积存空气而影响水泵运转,吸水管的安装应具有沿水流方向连续上升的坡度接至水泵入口,坡度应小于0.005。
(3) 吸水管道靠近水泵进水口处,应有一段长约2~3倍管道直径的直管段,避免直接安装弯头,否则水泵进水口处流速分而不均匀,使流量减少。
(4) 吸水管应设有支撑件。
(5) 吸水管段要短,配管及弯头要少,力求减少管道压力损失。
(6) 水泵底阀与水底距离,一般不小于底阀或吸水喇叭口的外径;水泵出水管安装止回阀和阀门,止回阀应安装在靠近水泵一侧。
5 消防供水设施安装与施工
1) 消防水泵、消防水箱、消防气压给水设备、消防水泵接合器等供水及其附属管道的安装,应消除其内部污垢和杂物。安装中断时,其敞口处应封闭。
2) 供水设施安装时,其环境温度不应低于5℃。
3) 消防水泵和稳定泵安装
(1) 消防水泵和稳压泵的规格、型号应符合设计要求,并应有产品合格证和安装使用说明书。
(2) 当设计无要求时,消防水泵的出水管上应安装止回阀和压力表,并宜安装检查和试水用的放水阀门,消防水泵泵组的总出水管上还应安装压力表和泄压阀,安装压力表时应加设缓冲装置。压力表和缓冲装置之间安装旋塞,压力表量程应为工作压力的1.5~3倍。
(3) 吸水管及其附件的安装应符合下列要求:
A 吸水管上的控制阀应在消防水泵固定于基础上之后再进行安装,其直径不应小于消防水泵吸水直径,且不应采有蝶阀;
B 当消防水泵和消防水池位于独立的两个基础上且相到为刚性连接时,吸水管上应加设柔性连接管;
C 吸水管水平段上不应有气囊和漏气现象。
4) 消防水箱安装和消防水池施工
(1) 消防水池、消防水箱的施工和安装应符合现行国家标准《给水排水构筑物施工及验收规范》的有关规定。
(2) 消防水箱的容箱、安装位置应符合设计要求。消防水箱间的主要通道宽度不应小于0.7m;消防水箱顶部至楼板或梁底的距离不得小于0.6m。
(3) 消防水池、消防水箱的溢流管、泄水管不得与生产或生活用水的排水系统直接相连。
5) 消防气压给水设备安装
(1) 消防气压给水设备的气压罐、其容积、气压、水位及工作压力应符合设计要求。
(2) 消防气压给水设备上的安全阀,压力表、泄水管、水位指示器等的安装应符合产品使用说明书的要求。
(3) 消防气压给水设备安装位置,进水管及出水管方向应符合设计要求、安装时其四周应检修通道,其宽度不应小于0.7m,消防气压给水设备顶部至楼台板或梁底的距离不得小于1.0m。
5 室内排水系统安装
5.1 一般排水系统
5.1.1 工艺流程
施工准备→管道预制→干管安装→立管安装→通球试验→支管安装→灌水试验→管口保护
5.1.2 施工要点
1 通用要求
1) 生活污水铸铁管道的坡度必须符合设计或下表规定。
生活污水铸铁管道的坡度表
|
项次 |
管径(mm) |
标准坡度(‰) |
最小坡度(‰) |
|
1 |
50 |
35 |
25 |
|
2 |
75 |
25 |
15 |
|
3 |
100 |
20 |
12 |
|
4 |
125 |
15 |
10 |
|
5 |
150 |
10 |
7 |
|
6 |
200 |
8 |
5 |
2) 生活污水塑料管道的坡度必须符合设计或下表规定。
生活污水塑料管道坡度表
|
项 次 |
管 径(mm) |
标准坡度(‰) |
最小坡度(‰) |
|
1 |
50 |
25 |
12 |
|
2 |
75 |
15 |
8 |
|
3 |
110 |
12 |
6 |
|
4 |
125 |
10 |
5 |
|
5 |
160 |
7 |
4 |
3) 金属排水管道上的吊钩或卡箍应固定在承重结构上。固定件间距:横管不大于2m;立管不大于3m。楼层高度小于或等于4m,立管可安装1个固定件。立管底部的弯管处应设支墩或采取固定措施。
4) 排水塑料管道支、吊架间距应符合下表的规定。
排水塑料管道支架最大间距(单位:m)表
|
管径(mm) |
50 |
75 |
110 |
125 |
160 |
|
立 管 |
1.2 |
1.5 |
2.0 |
2.0 |
2.0 |
|
横 管 |
0.5 |
0.75 |
1.10 |
1.30 |
1.60 |


铸铁管和塑料管的支架安装样板
5) 用于室内排水的水平管道与水平管道、水平管道与立管的连接,应采用45°三通或45°四通和90°斜三通或90°斜四通。立管与排出管端部的连接,应采用两个45°弯头或曲率半径不小于4倍管径的90°弯头。
6) 在生活污水管道上设置的检查口或清扫口,当设计无要求时应符合下列规定:
(1) 在立管上每隔一层设置一个检查口,但在最底层和有卫生器具的最高层必须设置。检查口中心高度距操作地面一般为1m,允许偏差±20mm;检查口的朝向应便于检修。暗装立管,在检查口处应安装检修门。
(2) 如排水支管设在吊顶,应在每层立管立管上均装立管检查口,以便做灌水实验。
(3) 在连接2个或2个以上大便器或3个及3个以上卫生器具的污水横管上应设置清扫口。当污水管在楼板下悬吊敷设时,可将清扫口设在上一层楼地面上,污水管起点的清扫口与管道相垂直的墙面距离不得小于200mm;若污水管起点设置堵头代替清扫口时,与墙面距离不得小于400mm。
(4) 在转角小于135°的污水横管上,应设置检查口或清扫口。
(5) 污水横管的直线管段,应按设计要求的距离设置检查口或清扫口。
(6) 埋在地下或地板下的排水管道的检查口,应设在检查井内。井底表面标高与检查口的法兰相平,井底表面应有5%坡度,坡向检查口。
7) 通向室外的排水管,穿过墙壁或基础必须下返时,应采用45°三通和45°弯头连接,并应在垂直管段顶部设置清扫口。
8) 排水塑料管必须按设计要求及位置装设伸缩节,如设计无要求时,伸缩节的间距不得大于4m。排水横管上的伸缩节位置必须装设固定支架。
10) 高层建筑中明设排水塑料管道(De≥110mm)应按设计要求设置阻火圈或防火套管或防火套管。


阻火圈样板和防火套管样品
11) 由室内通向室外排水检查井的排水管,井内引入管应高于排出管或两管顶相平,并有不小于90°的水流转角,如跌落差大于300mm可不受角度限制。
12) 排水通气管不得与风道或烟道相连,且应符合下列规定:
(1) 通气管应高出屋面300mm,但必须大于最大积雪厚度。
(2) 在通气管出口4m以内有门、窗时,通气管应高出门、窗顶600mm或引向无门、窗一侧。
(3) 在经常有人停留的平屋顶上,通气管应高出屋面2m,并应根据防雷要求设置防雷装置。
(4) 屋顶有隔热层应从隔热层板面算起。
2 污水立管的安装
1) 根据施工图校对预留管洞尺寸有无差错,如系预制混凝土楼板则需剔凿楼板洞,应按位置画好标记,对准标记剔凿。如需断筋,必须征得土建施工人员同意,按规定要求处理。
2) 安装立管应二人上下配合,一人在上一层楼板上,由管洞内投下一个绳头,下面一人将预制好的立管上半部栓牢,上拉下托将立管下部插口插入下层管承口内。
3) 立管插入承口后,下层得人把甩口及立管检查口方向找正,征的土建施工人员同上层的人用木锲将板在楼板洞处临时卡牢,打麻、吊直、捻灰。复查立管垂直度,将立管临时固定固牢。
4) 立管安装完毕后,配合土建用不低于楼板标号的混凝土将洞灌满堵实,并撤除临时支架。如系高层建筑或管道井内,应按设计要求用型钢做固定支架。
5) 高层建筑考虑管道胀缩补偿,可采用法兰柔性管件,但在承插口处要留出胀缩补偿余量。
6) 高层建筑采用辅助透气管,可采用辅助透气导型管件连接。
3 污水支管安装
1) 支管安装应先搭好架子,并将托架按坡度栽好,或栽好吊卡,量准吊棍尺寸,将预制好的管道托到架子上,再将支管插入立管预留口的承口内,将支管预留口 尺寸找准,并固定好支管,然后打麻、捻灰口。
2) 支管设在吊顶内末端有清扫口,应将管接止上层地面上,便于清掏。
3) 支管安装完后,可将卫生洁具或设备的预留管安装到位,找准尺寸并配合土建将楼板孔洞堵严,预留管口装上临时丝堵。
4 试验
隐蔽或埋地的排水管道在隐蔽前必须做灌水试验。
1) 工艺流程
封闭排出管口→向管道内灌水→检查、做灌水试验记录→通球试验
2) 封闭排出管口
3) 向管道内灌水
用胶管从便于检查的管口向管道内灌水,一般选择出户排水管离地面近的管口灌水。当高层建筑排水系统灌水试验时,可从检查口向管内注水。边灌水边观察卫生设备的水位,直到符合规定为止。
4) 检查,做灌水试验记录
(1) 停止灌水15min后在未发现管道及接口渗漏的情况下再次向管道灌水,使管内水面恢复到停止灌水时的水面位置,第二次记录好时间。
(2) 施工人员、施工技术质量管理人员、业主、监理等相关人员在第二次灌满水5min后,对管内水面进行共同检查,液面没有下降、管道及接口无渗漏为合格,立即签写排水管道灌水试验记录。
(3) 检查中若发现水面下降则为灌水试验不合格,应对管道及各接口、堵口全面细致地进行检查、修复,排除渗漏因素后重新按上述方法进行灌水试验,直至合格。
(4) 高层建筑的排水管灌水试验须分区、分段、分层进行,试验过程中依次作好各个部分的灌水记录,不可混淆,也不可替代。
(5) 灌水试验合格后,从室外排水口放净管内存水。把灌水试验临时接出的短管全部拆除,各管口恢复原标高,拆管时严防污物落入管内。
5) 通球试验
(1) 为防止水泥、砂浆、铁丝、钢筋等物卡在管道内,排水主立管及水平干管管道均应做通球试验,通球球径不小于排水管道管径的2/3,通球率必须达到100%。
(2) 试验顺序从上而下进行,以不堵为合格。
5 埋地排水管道灌水试验合格后方可进行回填。管道沟的回填土应分层夯实,管道的周围严禁回填石块等坚硬性固体。管沟回填后应再次按上述要求做灌水试验,合格后方可进行地面施工。
6 排污泵的安装
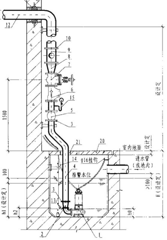
安装时要注意阀门、仪表等附件的安装顺序,下图以WQ型液位自动控制潜泵污做参考:


5.2 降板同层排水管道及配件安装
5.2.1工艺流程
精装房:降板层找平→立管安装→降板层防水施工→保护层施工→50mm厚干粒料层回填→排水支管安装→回填100mm厚陶粒或其他轻质材料混凝土→顶层防水施工→地面装饰层
毛坯房:降板层找平→立管安装→De20小地漏安装→降板层防水施工(余下部分工序由小业主自理)


5.2.2 精装房降板同层排水施工要点
- 降板层找平:用1:2.5的水泥砂浆将下沉楼板找坡,以1%-2%坡度向排水立管方向找坡。
- 立管、地漏安装:按照设计确定的卫生间器具位置将PE膨胀伸缩节、PE三通或四通、立管连接好,然后安装PVC50二次排水地漏,最后分两次浇筑混凝土吊洞。
- 根据设计要求,在找平层上做防水层。
- 对防水层进行验收合格后,在防水层上做20mm厚的1:2.5的水泥砂保护层。
- 在保护层上铺设厚度为50mm的干粒料。
- 连接支管安装地漏,并按坡度要求固定支管(严禁破坏防水层),然后对立管和支管做灌水试验。
- 回填厚度100mm的陶粒或其他轻质材料混凝土。
- 按照设计要求再做一层防水层,并完成装饰层施工。

降板同层排水建筑构造参考做法
5.2.3注意事项
- 注意防水层的保护,禁止在防水层上部直接安装管卡破坏防水层。
- 支管连接完成,注意做好找坡,严禁管道不固定导致支管倒破。
- PE管焊接完成后必须自然冷却,不可以用冷水或者其他冷媒加快冷却。
- 二次排水的地漏安装完毕后,采取加过滤网或其他措施防止地漏堵塞。
- 卫生间内布置为普通三件套形式,且长边不超过3.5m时,结构降板高度为250mm;卫生间内布置洁具5个以上或长边超过3.5m时,结构降板高度为300mm。
- 浴霸排风留洞中心距本层卫生间结构顶板底40mm,留洞尺寸为φ80。
- 同层排水立管的首层和顶层按要求设置检查口,其余层每隔一层设置一个检查口。
5.3 雨水管道及配件安装
5.3.1 工艺流程
施工准备→管道预制→雨水干管安装→雨水立管安装→雨水支管安装→灌水试验
5.3.2 施工要点
1 通用要求
1) 应参照室内给水与污水管道。
2) 悬吊式雨水管道的敷设坡度不得小于5‰;埋地雨水管道的最小坡度,应符合下表的规定。
地下埋设雨水排水管道的最小坡度表
|
项 次 |
管径(mm) |
最小坡度(‰) |
|
1 |
50 |
20 |
|
2 |
75 |
15 |
|
3 |
100 |
8 |
|
4 |
125 |
6 |
|
5 |
150 |
5 |
|
6 |
200~400 |
4 |
- 雨水斗管的连接应固定在屋面承重结构上。雨水斗边缘与屋面相连处应严密不漏。连接管管径应符合设计的要求,当设计无要求时,不得小于100mm。
4) 雨水管道如采用塑料管,其伸缩节应符合设计要求。
5) 雨水管道不得与生活污水管道相连接。
6) 为防止屋面雨水在施工期间进入建筑物内,室内雨水系统应在屋面结构层施工验收完毕后的最佳时间内完成。
2 雨水管道安装要点
- 内排水雨水管安装,管材必须考虑承压能力按设计要求选择。如果采用外排水U-PVC雨水管,应采用抗紫外线雨水专用管。
2) 高层建筑内排水管可采用铸铁排水管,管材承压可达到0.8MPa以上,管材长度可根据楼层高度,每层只需一根管,捻一个水泥灰口。
3) 选用铸铁排水管安装,其安装方法同上述室内排水管道安装。
4) 雨水管道安装后应做灌水试验,灌水高度必须到每根立管上部的雨水斗。灌水试验持续1小时,不渗不漏为合格。
6 室内热水供应系统安装
6.1 管道及配件安装
6.1.1 施工流程
参见室内给水管道及配件安装施工流程。
6.1.2 施工要点
1 热水供应管道应尽量利用自然弯补偿热伸缩,直线段过长则应设置补偿器。补偿器型式、规格、位置应符合设计要求,并按有关规定进行预拉伸。
2 温度控制器及阀门应安装在便于观察和维护的位置。
3 热水供应管道和阀门安装的允许偏差应符合规定。
4 热水供应系统安装完毕,管道保温之前应进行水压试验。
1) 试验压力应符合设计要求。当设计未注明时,热水供应系统水压试验压力应为系统顶点的工作压力加0.1MPa,同时在系统顶点的试验压力不小于0.3MPa。
2) 钢管或复合管道系统试验压力下10min内压力降不大于0.02MPa,然后降至工作压力检查,压力应不降,且不渗不漏;塑料管道系统在试验压力下稳压1h,压力降不得超过0.05MPa,然后在工作压力1.15倍状态下稳压2h,压力降不得超过0.03MPa,连接处不得渗漏。
5 热水供应系统竣工后必须进行冲洗。冲洗前,应将阻碍水流流通的调节阀、减压阀及其它可能损坏的温度计等仪表拆除。
6 热水供应系统管道应按设计要求进行保温,保温材料、厚度、保护壳等应符合设计规定。
6.2 辅助设备安装
6.2.1 太阳能热水设备安装工艺流程:
安装准备→支座架安装→热水器设备组装→配水管路安装→管路系统试压→管路系统冲洗或吹洗→温控仪表安装→管道防腐→系统调试运行
6.2.2 施工要点
1 敞口水箱的满水试验和密闭水箱(罐)的水压试验必须符合设计与本施工技术标准的规定。满水试验静置24h,观察不渗不漏;水压试验在试验压力下10min压力不降,不渗不漏为合格。
2 水泵就位前的基础混凝土强度、坐标、标高、尺寸和螺栓孔位置必须符合设计要求。
3 水泵试运转的轴承温升必须符合设备说明书的规定。
4 热交换器应以工作压力的1.5倍作水压试验。蒸汽部分应不低于蒸汽供汽压力加0.3MPa;热水部分应不低于0.4MPa。试验压力下10min内压力不降,不渗不漏。
5 太阳能热水设备安装要点
1) 热水器设备组装
(1) 在安装太阳能集热器玻璃前,应对集热排管和上、下集热管作水压试验,试验压力为工作压力的1.5倍。试验压力下10min内压力不降,不渗不漏为合格。
(2) 制作吸热钢板凹槽时,其圆度应准确,间距应一致。安装集热排管时,应用卡箍和钢丝紧固在钢板凹槽内。
(3) 安装固定式太阳能热水器朝向应正南,如受条件限制时,其偏移角不得大于15°。集热器的倾角,对于春、夏、秋三个季节使用的,应采用当地纬度为倾角;若以夏季为主,可比当地纬度减少10°。
2) 直接加热的贮热水箱制做安装
(1) 给水应引至水箱底部,可采用补给水箱或漏斗配水方式。
(2) 热水应从水箱上部流出,接管高度一般比上循环管进口低50~100mm,为保证水箱内的水能全部使用,应从水箱底部接出管与上部热水管并联。
(3) 上循环管接自水箱上部,一般比水箱顶低200 mm左右,并要保证正常循环时淹没在水面以下,并使浮球阀安装后工作正常。
(4) 下循环管接自水箱下部,为防止水箱沉积物进入集热器,出水口宜高出水箱底50mm以上。
(5) 由集热器上、下集管接往热水箱的循环管道,应有不小于0.5‰的坡度。
(6) 水箱应设有泄水管、透水管、溢流管和需要的仪表装置。
(7) 自然循环的热水箱底部与集热器上集管之间的距离为0.3~1.0m,上下集管设在集热器以外时应高出600mm以上。
3) 自然循环系统管道安装
(1) 为减少循环水头损失,应尽力缩短上、下循环管道的长度和减少弯头数量,应采用大于4倍曲率半径、内壁光滑的弯头和顺流三通。
(2) 管路上不宜设置阀门。
(3) 在设置几台集热器时,集热器可以并联、串联或混联,循环管路应对称安装,各回路的循环水头损失平衡。
(4) 循环管路(包括上下集管)安装应有不小于1%的坡度,以便于排气。管路最高点应设通气管或自动排气阀。
(5) 循环管路系统最低点应加泄水阀,使系统存水能全部泄净。每台集热器出口应加温度计。
7 室内采暖系统安装
7.1 管道及配件安装
7.1.1 工艺流程
安装准备→预制加工→卡架安装→干管安装→立管安装→支管安装→附属装置安装→试压→冲洗→防腐→保温→调试验收→放净系统内积水
7.1.2 施工要点
1 采暖系统安装的一般要求:
1) 采暖系统按采暖介质分为热水采暖系统和蒸汽采暖系统。
2) 热水采暖又分热水温度不超过100℃的低温水系统和热水温度在110~150℃的高温水系统两类。在低温水采暖系统中分自然和机械循环两种,高温水采暖系统中都采用机械循环。
3) 热水采暖系统干管布置方式有上分式、下分式。干管布置在地沟、顶棚内和非采暖房间内的必须采取保温措施。
4) 保温管在滑动支架处,宜焊上滑托,以利管道热胀移动时,不损坏保温层,滑托的反向偏位安装值与管道在该点的移伸量相同。
5) 热水采暖系统的排气,应符合如下要求:
(1) 在自然循环热水采暖系统中,上分式供水干管的坡峰处连接膨胀水箱,使聚集系统最多点的空气从膨胀水箱排放。
(2) 在机械循环的热水采暖系统中,上分式供水干管的坡项设置集气罐,定期排气。下分式各立管顶端可接空气管至集气罐,作定期排气,或在顶层散热器上安装排气阀。
(3) 在机械循环的高温水采暖系统中,应选用过热水集气罐。
6) 膨胀管的连接,应符合如下要求:
(1) 在自然循环的热水采暖系统中,膨胀水箱的膨胀管连接在主立管顶点,也是横干管的坡峰处,且不用接循环管。
(2) 在机械循环的热水采暖系统中,膨胀水箱的膨胀管连接在循环水泵吸水口前回水管的设计定压点上,起控制系统静水压力的作用。
(3) 在高温水采暖系统中,由供热站设置闭式气压膨胀水箱,室内无膨胀管。
(4) 膨胀水箱的膨胀管及循环管上不得安装阀门。
7) 在回水管上连接膨胀水箱的循环管时,循环管的连接点应距膨胀管的连接点1.5~3m,且在膨胀管连接点的上游。
8) 采暖支立管有*管双**式和单管式。*管双**式两支管的中心距离为80mm,允许偏差5mm。供回水管排列位置,应面向操作人,右供左回排列。
9) 支立管宜螺纹连接。在供水支立管始端和回水支立管末端,应有调节控制阀门或可拆卸件。
10) 采暖主支管嵌墙暗装时,应在土建砌砖墙时预留墙槽,墙槽尺寸应符合设计要求或按给水管规定预留尺寸执行。嵌墙暗装的立支管应做绝热层。土建墙面的粉刷和装饰,应待管道水压试验后格,绝热层施工完成后进行施工。
11) 采暖管道应有坡度,设计未注明时,应符合下列规定:
(1) 气、水同向流动的热水采暖管道和汽、水同向流动的蒸汽管道及凝结水管道,坡度应为3‰,不得小于2‰。
(2) 气、水逆向流动的热水采暖管道和汽,水逆向流动的蒸汽管道,坡度不应小于5‰。
(3) 散热器支管的坡度应为1%,坡向应利于排气和泄水。
12) 采暖系统入口装置及分户热计量系统入户装置应符合设计要求。安装位置便于检修、维护和观察。
13) 焊接钢管管径大于320mm的管道转弯,在作为自然补偿时应使用煨弯。塑料管及复合管除必须使用直角弯头的场合外应使用管道直接弯曲转弯。
14) 当采暖热媒为110~130℃的高温水时,管道可拆卸件应使用法兰,不得使用长丝和活接头。法兰垫料应使用耐热橡胶板。
2 热水采暖干管安装
1) 按施工草图,进行管段的加工预制,包括:断管、套丝、上零件、调直、核对好尺寸,按环路分组编号,码放整齐。
2) 安装卡架,按设计要求或规定间距安装。吊卡安装时,先把吊棍按坡向、顺序依次穿在型把管就位在托架上,把第一节管装好U形卡,然后安装第二节管,以后各节管均照此进行,紧固好螺栓。
3) 干管安装应从进户或分支路点开始,装管前要检查管腔并清理干净。
4) 管道穿过墙壁、楼板或过沟处,必须先穿好套管。
5) 分路阀门离分路点不宜过远。如分路处是系统的最低点,必须在分路阀门前加泄水丝堵。集气罐的进出水口,应开在偏下约为罐高的1/3处。其放风管应稳固,如不稳可装两个卡子。集气罐位于系统末端时,应装托、吊卡。
6) 安装伸缩器时应在预制时按规范要求做好预拉伸,并作好记录。按位置固定,与管道连接好。安装波纹补偿器时应按要求位置安装好导向支架和固定支架。
7) 管道安装完毕,检查坐标、标高、预留口位置和管道变径等是否正确,然后找直,用水平尺等校对复核坡度、调整合格后,再调整吊卡螺栓、U形卡,使其松紧适度,平正一致,最后焊牢固定卡处的止动板。
8) 摆正或安装好管道穿结构处的套管,填堵管洞口,预留口处应加临时管堵。
3 热水采暖立管安装
1) 核对各层预留孔位置是否垂直,吊线、安装支架。将预制好的管道按编号顺序运到安装地点。
2) 安装前先卸下阀门盖。有钢套管的先穿到管上,按编号从第一节管开始安装。
3) 检查立管的每个预留口标高、方向、半圆弯等是否准确、平正。将事先安装好的支架卡子松开,把管放入卡内拧紧螺栓,用吊杆、线坠从第一节管开始找好垂直度,扶正钢套管,最后填堵孔洞,预留口必须加好临时丝堵。
4 热水采暖支管安装
1) 检查散热器安装位置及立管预留口是否准确。量出支管尺寸和灯叉弯的大小。
2) 配支管,按量出支管的尺寸,减去灯叉弯的量,然后断管、套丝、煨灯叉弯和调直。将灯叉弯两头抹铅油缠麻,装好油任,连接散热器,把麻头清理干净。
3) 暗装或半暗装的散热器,其灯叉弯必须与炉片槽墙角相适应,达到美观。
4) 散热器支管长度超过1.5m时,应在支管上安装管卡。
5) 用钢尺、水平尺、线坠核对支管的坡度和平行距墙尺寸,并复查立管及散热器有无移动。
6) 立支管变径,不宜使用铸铁补心,应使用变径管箍或焊接大小头。
5 蒸汽管道安装
1) 蒸汽采暖系统有上供下回式,下供下回式,上供上回式等多种布置方式,蒸汽上供式水平管坡向宜水流同向流动。下供式水平管坡向宜水流反向流动,在水平管进口集水处设疏水装置,疏水器后的凝结水管与回水管连接。
2) 回水管为自流管,水平管顺水流下坡,水流反向流动。回水管末端应有空气管,并安装有排气阀门,在系统开始允许时可排出水平管内空气,在系统停运时可放进空气排尽存水。
3) 水平安装的管道要有适当的坡度,当坡向与蒸汽流动方向一致时,应采用i=0.003的坡度;当坡向与蒸汽流动方向相反时,坡度应加大到i=0.005~0.010。干管的翻身处及末端应设置疏水器。
4) 蒸汽干管的变径、供汽管的变径应为下平安装,凝结水管的变径为同心。
5) 蒸汽采暖在上分式单管系统的立管底部,下分式单管系统的水平供汽管末端和高压蒸汽采暖系统的回水立管底部,均应安装疏水器。
6) 低压蒸汽采暖双立管系统的散热器回水支管上,均应安装汽包回水合;供汽支管上宜安装汽包汽门。
7) 安装附属装置时,设备的进出口支管位置应设阀门,并在设备始端装设疏水器。
7 方型补偿器安装
1) 方型补偿器在安装前,应检查补偿器是否符合设计要求,补偿器的三个臂是否在一个水平上,安装时用水平尺检查,调整支架,使方型补偿器位置标高正确,坡度符合规定。
2) 预拉伸的焊口应选在距补偿弯曲起点2~2.5m处为宜,冷拉前应将固定支座牢固固定住,并对好预拉焊口处的间距。
3) 采用拉管器进行冷拉时,其操作方法是将拉管器的法兰管卡,紧紧卡在被预拉焊口的两端。穿在两个法兰管卡之间的几个双头长螺栓,作为调整及拉紧用。
4) 水平安装时应与管道坡度、坡向一致。如其臂长方向垂直安装时,高点应设放风阀,低点处应设疏水器。
5) 弯制补偿器应用整根无缝钢管煨制,如需要接口,其焊口位置应设在垂直臂的中间位置,且接口必须焊接。
8 减压阀安装
1) 减压阀安装时,减压阀前的管径应与阀体的直径一致,减压阀后的管径宜比阀前的管径大1~2号。
2) 减压阀的阀体必须垂直安装在水平管路上,阀体上的箭头必须与介质流向一致。减压阀两侧应安装阀门,采用法兰连接截止阀。
3) 减压阀前应装有过滤器,对于带有均压管的薄膜式减压阀,其均压管应接往低压管道的一侧。旁通管是安装减压阀的一个组成部分。
4) 为了便于减压阀的调整工作,阀前的高压管道和阀后的低压管道上都应安装压力表。
5) 阀后低压管道上应安装安全阀,安全阀应预先调整至规定要求。安全阀排气管应接至室外不伤人处。
6) 较小的系统中,两个截止冷阀串联在一起也可以起到减压作用。一个阀门起减压作用,另一个阀门作开关用,但这种减压方法调节范围有限。
9 疏水器安装
1) 疏水器应安装在用热设备或管道凝结水排出口以下,且便于检修的地方。
2) 安装应按设计设置旁通管、冲洗管、检查管、止回阀和除污器等的位置。用汽设备应分别安装疏水器,几个用汽设备不能合用一个疏水器。检查管、冲洗管应接至排水沟。
3) 疏水器的进出口位置要保持水平,不可倾斜安装。疏水器阀体上的箭头应与凝结水的流向一致,疏水器的排水管管径不能小于进口管径。
4) 旁通管是安装疏水器的一个组成部分。在检修疏水器时,可暂时通过旁通管运行。
5) 螺纹连接的疏水器及旁通阀后,均应安装活接头。DN32以下,公称压力0.3MPa以下,以及DN40~DN50,公称压力0.2MPa以下,可采用螺纹连接。
7.2 辅助设备及散热器安装
7.2.1 室内散热器组对与安装工艺流程如下:
编制组片统计表→散热器组对→外拉条预制、安装→散热器单组水压试验→散热器安装→散热器冷风门安装→支管安装→系统试压→刷漆
7.2.2 施工要点
1 水泵、水箱等辅助设备安装参见室内给水部分。
2 集气罐的安装分手动和自动排气两类,手动排气的集气罐,又分温水和过热水两种,并各有立式和卧式两型,安装时应符合如下要求:
1) 手动排气集气罐容积为膨胀水箱容积的1%,罐体直径为干管管径的1.5~2倍。
2) 集气罐安装必须端正,角钢支架牢固,并有抱箍固定罐体。
3) 温水采暖系统的热水干管在手动排气集气罐下半部两侧连接。罐顶设DN15空气排放管,接至附近洗涤盆上,并安装排气阀门,罐底设DN20放水丝堵。
4) 过热水集气罐,应高于过热水干管的位置安装,在集气罐底与干管连接DN15进水管,管中间安装旋塞,集气罐顶的放气管下返安装,在同一高度处也安装旋塞。两旋塞的管中心距为200mm,两旋塞阀芯杆水平对向安装,用一联动手柄,操作手柄时,进水阀开启的同时,放气阀关闭,或放气阀开启时,进水阀关闭,该手柄可用绳索和滑轮机构操作。
5) 自动排气罐,安装时不得倾斜,罐底用DN20进水管,并安装阀门。
6) 集气罐安装在非采暖房间,必须保温。
3 膨胀水箱安装
1) 膨胀水箱安装在系统最高点并高出集气罐顶300mm以上,安装时应平正,离地250mm以上。
2) 膨胀水箱的连接管有进水管、溢水管、排污管、膨胀管、循环管、检查管,安装应符合如下要求:
(1) 进水管应有水位控制装置。
(2) 溢水管不得安装阀类。
(3) 排污管接至屋面或天沟排水。
(4) 膨胀管和循环管按设计要求与采暖系统连接,但不得安装阀类。
(5) 检查管接至值班室洗涤盆上,应安装放水阀门。
3) 膨胀水箱安装在非采暖房间,应做保温。
4 调压板。安装时调压板和法兰应揩净,在法兰内凹槽内放平整。
5 混水器与蒸汽喷射器安装,按产品说明书安装。
6 除污器安装,有立式、卧式和角式三种型式,安装时应平直端正,不可倾斜。顶部应装排气阀,底部应装排污阀,安装前器内必须清扫和检查。
7 散热器安装
1) 按施工图分段分层分规格统计出散热器的组数、每组片数,列成表以便组对和安装时使用。
2) 各种型号的铸铁柱型散热器组对
(1) 组对前要备有散热器组对架子或根据散热器规格用100×100mm平放在地上,楔四个铁桩用铅丝绑牢加固,做成临时支架,以保持外观清洁和不损伤表面涂料。
(2) 组对散热器垫片应使用成品,组对后垫片外露不应大于1mm;散热器垫片材质当设计无要求时,应采用耐热橡胶,其厚度不超过1.5mm,用机油随用随浸。
(3) 将散热器内部污物倒净,用钢刷子除净对口及内丝处的铁锈,正扣朝上,依次码放。
3) 外拉条预制、安装
(1) 根据散热器的片数和长度,计算出外拉条的长度尺寸,切断Ф8~Ф10的圆钢并进行调直,两端收头套好丝扣,将螺母上好,除锈后刷防锈漆一遍。
(2) 20片及以上的散热器加外拉条,在每根外拉条端头套好一个骑码,从散热器上下两端外柱内穿入四根拉条,每根再套上一个骑码带上螺母;找直后用扳手均匀拧紧,丝扣外露不得超过一个螺母厚度。
4) 组对好的散热器,进、出水安装,应符合如下要求:
(1) 圆翼形散热器两端为法兰连接,中间组对法兰和出水端法兰应用管底偏心法兰,进水端法兰应用管顶平偏心法兰。
(2) 钢制散热器为外螺纹钢管接头,可与支管或汽包阀门直接连接。
(3) 其他型的铸铁散热器,进出口拧上补蕊,不用的口拧上堵头。
5) 散热器水压试验
6) 散热器安装
(1) 按设计图要求,利用所作的统计表将不同型号、规格和组对好并试压完毕的散热器运到各房间,根据安装位置及高度在墙上画出安装中心线。
(2) 托钩和固定卡安装
A 各种散热器的固定卡及托钩的型式、位置应符合标准图集或说明书的要求。
B 柱型带腿散热器固定卡安装。
C 挂装柱型散热器固定卡安装。托钩高度应按设计要求并从散热器的距地高度上返45mm画水平线。托钩水平位置采用画线尺来确定,画线尺横担上刻有散热片的刻度。
D 用錾子或冲击钻等在墙上按画出的位置打孔洞。固定卡孔洞的深度不少于80mm,托钩孔洞的深度不少于120mm,现浇混凝土墙的深度为100mm(使用膨胀螺栓应按膨胀螺栓的要求深度)。
E 用水冲净洞内杂物,填入M20水泥砂浆到深洞的一半时,将固定卡、托钩插入洞内,塞紧,用画线尺或Ф70mm管放在托钩上,用水平尺找平找正,填满砂浆抹平。
F 用同样的方法将各组散热器全部卡子、托钩栽好;成排托钩卡子需将两端钩、卡栽好,定点拉线,然后再将中间钩、卡按线依次栽好。
G 圆翼型、长翼型及辐射对流散热器安装方法同柱型散热器。
H 每组钢制闭式串片型散热器及钢制板式散热器在四角上焊带孔的钢板支架,而后将散热器固定在墙上的固定支架上。固定支架的位置按设计高度和各种钢制串片及板式散热器的具体尺寸分别确定。安装方法同柱型散热器。
I 在混凝土预制墙板上可以先下埋件,再焊托钩与固定架;在轻质板墙上,钩卡应用穿通螺栓加垫圈固定在墙上。
(3) 散热器安装
A 散热器安装高度应一致,底部距地大于或等于150mm,当散热器下部有管道通过时,距地高度可提高,但顶部必须低于窗台50mm。
B 散热器安装时,散热器背面与装饰后墙内表面距离应符合设计或产品说明书要求,如设计无注明应为30mm。
C 将柱型散热器(包括铸铁和钢制)和辐射对流散热器的炉堵和炉补心抹油,加垫片后拧紧。
D 带腿散热器稳装。
E 将挂装柱型散热器和辐射对流散热器轻轻抬起放在托钩上立直,将固定卡摆正拧紧。
F 圆翼型散热器安装。将组装好的散热器抬起,轻放在手钩上找直找正。多排串联时,先将法兰临时上好,然后量出尺寸,配管连接。
G 圆翼形散热器水平安装时,纵翼应竖向安装,支托架处的纵翼应用钢锯整齐锯切掉。长翼形和圆翼形散热器安装时,翼面应朝墙,朝下安装。
H 钢制闭式串片式和钢制板式散热器抬起挂在固定支架上,带上垫圈和螺母,紧到一定程度后找平找正,再拧紧到位。
I 散热器安装的允许偏差,应符合下表的规定。
散热器安装允许偏差和检验方法表
|
项次 |
项 目 |
允许偏差(mm) |
检验方法 |
|
1 |
散热器背面与墙内表面距离 |
3 |
尺 量 |
|
2 |
与窗中心线或设计定位尺寸 |
20 |
尺 量 |
|
3 |
散热器垂直度 |
3 |
吊线和尺量 |
7) 散热器放气阀的安装,应符合如下要求:
(1) 将炉堵抹好铅油,加好垫片,在散热器上用管钳子上紧。
(2) 钢制串片式散热器、扁管板式散热器按设计要求统计需打放风阀的散热器数量,在加工定货时提出要求,由厂家负责做好。
(3) 圆翼型散热器放气阀安装,按设计要求在法兰上打放气阀孔眼,作法同炉堵上装放风阀。
7.3 系统水压试验及调试
7.3.1 工艺流程
连接管路→检查采暖系统→试压→系统冲洗→系统通热调试
7.3.2 施工要点
1 连接安装水压试验管路
1) 根据水源的位置和工程系统情况制定出试压程序和技术措施,再测量出各连接管的尺寸,标注在连接图上。
2) 断管、套丝、上管件及阀件,采用丝接或焊接连接管路。
3) 一般选择在系统进户入口供水管的甩头处,连接至加压泵的管路。
4) 在试压管路的加压泵端和系统的末端安装压力表及表弯管。
2 灌水前的检查
1) 检查全系统管路、设备、阀件、固定支架、套管等,必须安装无误。各类连接处均无遗漏。
2) 根据全系统试压或分系统试压的实际情况,检查系统上各类阀门的开、关状态,不得漏检。试压管道阀门全打开,试验管段与非试验管段连接处应予以隔断。
3) 检查试压用的压力表的灵敏度是否符合要求。
4) 水压试验系统中阀门都处于全关闭状态。待试压中需要开启再打开。
3 水压试验
1) 打开水压试验管路中的阀门,开始向采暖系统注水。
2) 开启系统上各高处的排气阀,使管道及供暖设备里的空气排尽。待水灌满后,关闭排气阀和进水阀,停止向系统注水。
3) 打开连接加压泵的阀门,用电动*压打**泵或手动*压打**泵通过管路向系统加压,同时拧开压力表上的旋塞阀,观察压力逐渐升高的情况,一般分2~3次升至试验压力。
4) 试验压力应符合设计要求。当设计未注明时,应符合下列规定:
(1) 蒸汽、热水采暖系统,应以系统顶点工作压力加0.1MPa作水压试验,同时在系统顶点的试验压力不小于0.3MPa。
(2) 高温热水采暖系统,试验压力应为系统顶点工作压力加0.4MPa。
(3) 使用塑料管及复合管的热水采暖系统,应以系统顶点工作压力加0.2MPa作水压试验,同时在系统顶点的试验压力不小于0.4MPa。
5) 高层建筑其系统低点如果大于散热器所能承受的最大试验压力,则应分层进行水压试验。
6) 使用钢管及复合管的采暖系统应在试验压力下10min内压力降不大于0.02MPa,降至工作压力后检查,不渗、不漏为合格。
使用塑料管的采暖系统应在试验压力下1h内压力降不大于0.05MPa,然后降至工作压力的1.15倍,稳压2h,压力降不大于0.03MPa,同时各连接处不渗、不漏为合格。
7) 系统试压合格后,放掉管道内的全部存水。不合格者应降压至零,待修补后按前述方法再次试压,直至合格。
8) 拆除试压连接管路,将入口供水管用盲板临时封堵严实。
4 室内采暖系统冲洗
1) 系统试压合格后,应对系统进行冲洗并清扫过滤器及除污器。
2) 热水采暖系统的冲洗。首先检查全系统内各类阀件的关启状态,须关闭系统上的全部阀门,应关紧、关严。并拆下除污器、自动排气阀等。
(1) 水平供水干管及总供水立管的冲洗。先将自来水管接进供水水平干管的末端,再将供水总立管进户处接往排水管。打开排水口的控制阀,再开启自来水进口控制阀,进行反复冲洗。依次对系统的各个分路供水水平干管分别进行冲洗。冲洗结束后,先关闭自来水进口阀,后关闭排水口控制阀门。
(2) 系统上立管及回水水平导管冲洗。冲洗水连通进口可不动,将排水出口连通管改接至回水管总出口处。
(3) 冲洗中,管路通畅,无堵塞现象,当排入下水道的冲洗水为清净水时可认为冲洗合格。全部冲洗后,再以流速1~1.5m/s的速度进行全系统循环,延续20h以上,循环水色透明为合格。
(4) 全系统循环正常后,把系统回路按设计要求连接好。
2) 蒸汽采暖供热系统吹扫。
(1) 蒸汽供热系统的吹扫采用蒸汽为宜,也可采用压缩空气进行。吹洗前应将疏水器等拆除,排气管须设置牢固支架,其他程序同热水系统冲洗。
(2) 蒸汽吹洗时,应缓慢升温,以恒温1h左右进行吹扫为宜。然后自降温至室温,再升温、暖管、恒温进行二次吹扫,直到吹扫合格。
(3) 蒸汽排出口可设置一块刨光的木板,板上无锈蚀物及脏物为合格。
5 室内采暖管道通热调试
1) 系统冲洗完毕应充水、加热,进行试运行和调试。
2) 先联系好热源,制定出通暖调试方案、人员分工和处理紧急情况的各项措施。备好修理、泄水等器具。
3) 维修人员按分工各就各位,分别检查采暖系统中的泄水阀门是否关闭,干、立、支管上的阀门是否打开。
4) 向系统内充水(以软化水为宜),开始先打开系统最高点的排气阀,指定专人看管。慢慢打开系统回水干管的阀门,待最高点的排气阀见水后立即关闭。然后开启总进口供水管的阀门,最高点的排气阀须反复开闭数次,直至将系统中冷空气排净。
5) 在巡视检查中如发现隐患,应尽量关闭小范围内的供、回水阀门,及时处理和抢修。修好后随即开启阀门。
6) 全系统运行时,遇有不热处要先查明原因。如需冲洗检修,先关闭供、回水阀,泄水后再先后打开供、回水阀门,反复放水冲洗。冲洗完后再按上述程序通暖运行,直到运行正常为止。
7) 若发现热度不均,应调整各个分路、立管、支管上的阀门,使其基本达到平衡后,邀请各有关单位检查验收,并办理验收手续。
8) 高层建筑的采暖管道冲洗与通热,可按设计系统的特点进行划分,按区域、独立系统、分若干层等逐段进行。
9) 冬季通暖时,必须采取临时采暖措施。室温应连续24h保持在5℃以上后,方可进行正常送暖:
(1) 充水前先关闭总供水阀门,开启外网循环管的阀门,使热力外网管道先预热循环。
(2) 分路或分立管通暖时,先从向阳面的末端立管开始,打开总进口阀门,通水后关闭外网循环管的阀门。
(3) 待已供热的立管上的散热器全部热后,再依次逐根、逐个分环路通热,直到全系统正常运行为止。



