如何又快又好地画好道路交通事故现场图?

随着经济发展水平提升,交通流量日益增大,在道路交通事故现场勘查中对便民、效率要求越来越高,快速全面地勘查事故现场,短时间内恢复现场交通秩序更是交通民警一直追求的目标。本篇结合个人实际工作经验,浅略介绍如何在事故现场勘查过程中快速、准确、全面、高效地画好交通事故现场图,望为奋战在一线的同志们提供点帮助,不足之处,还请提点。
本篇参考
1.《道路交通事故现场图绘制》(GA49—2014 )
2.《道路交通事故现场图形符号》(GB/T 11797-2005)
3.《总图制图标准》(GB/T 50103-2010 )
4.《CAD工程制图规则》(GB-18229)
5.《尺寸标注法》(GBT 16675.2-2012)
6.《机械制图 尺寸注法》(GBT 4458.4-2003)
01
什么叫现场图?
现场图是在交通事故现场勘查中,运用制图学的原理和方法,以图形、符号固定各种交通元素及其相关的痕迹、物品、地形、地物、地貌、道路交通设施和折射交通事故现场状况的一种记录形式。

02
现场图的作用?
1.准确醒目地描绘出现场上各种交通元素的形状、尺寸、位置及其相互关系,可以客观地表达笔录难以叙述清楚的痕迹、物品的形状尺寸等;
2.具体地补充现场照相、录像难以折射出的痕迹物品的方位、距离及其相互间的联系;
3.进行事故责任分析、认定及其调解处理的重要依据。
03
现场图的种类?
(一)
现场记录图
用图形符号、尺寸和文字记录道路交通事故现场环境、事故形态和有关车辆、人员、物体、痕迹等的位置及相互关系的图。
现场记录图一般都是在事故现场徒手绘制的,要求在现场当场绘制完成,所以现场记录图的工整程度要求不是很高。(草图)
但是,为后续绘制的规范的“现场比例图”作基础,在满足现场记录图快速绘制,准确、全面地记录现场勘查内容基本要求的情况下,应力争提高现场记录图的工整程度、元素的齐全以及各尺寸测量的准确度。

二
现场实景记录图
利用航拍、红外或者激光测量等技术在实景照片上标注尺寸和文字,记录道路交通事故现场环境、事故形态和有关车辆、人员、物体、痕迹等的位置及相互关系的图。
此种制图手段为GA49-2014新增的现场图种类,因对人员、设备、技术要求相对较高,目前使用较少。

三
现场比例图
现场比例图以现场记录图、现场实景记录图、现场勘查笔录所载的数据为基础和依据,以现场记录图中的基准点和基准线为基准,按规范图形符号和一定比例将现场所绘制的图形及数据严格的按比例绘制的道路交通事故现场全部或局部的平面图。
现场比例图是在现场勘查完以后,使用必要的绘图工具,按一定的比例绘制的,因此绘图工整程度要求较高。现场比例图是现场记录图的升级、规范版,在绘制现场比例图时,不允许改动现场记录图上的记录内容(如尺寸、痕迹、现场物体……等内容)。

四
现场断面图
道路交通事故现场某一横断面、纵断面或水平断面位置上有关车辆、人员、物体、痕迹相互关系的断面图。
表示交通事故现场某一横断面或纵断面某一位置上有关车辆、物体、痕迹相互关系的剖面视图。这种图是利用剖切作图的方法,根据需要、设想切除遮挡视线的某一部分地形、地物,以表达从表面难以或无法表现的内部的各种关系,以及与外界的联系。
现场断面图在道路交通事故现场勘查中应用较少,在需要表示道路不同高度上车辆、物体、痕迹的相互关系或道路横断面、纵断面与事故的关系的情况下,才绘制现场断面图。


五
现场立面图
现场立面图:道路交通事故现场车辆、物体侧面有关痕迹、物证所在位置的局部视图。(交通事故现场细目照片配合比例尺)
表示交通事故现场某一物体侧面有关痕迹、证据所在位置的局部视图。这种图也称侧面图,是一种立起来的平面图。
立面图主要用于表现车辆碰撞或刮擦的面,一般要求以比例绘制,也可部分按比例绘制。它还可以表现立体物一个面的局部成为局部特写,以更细致地表现该局部状况。
注:现场记录图以平面图(现场记录图以及现场比例图)为主。需要表示局部情况时,引出局部放大图,才绘制立面图或断面图。

六
现场分析图
现场分析图:道路交通事故发生时,车辆、人员、散落物等的运行轨迹、时序及接触或冲突位置的平面图。
现场分析图可以形象地表示事故前、事故中、事故后,车辆、行人在道路上的位置、运动方向、运动轨迹和相互冲突的地点,(关键元素在图中出现三次)在判断事故过程、分析事故原因中,起到重要的作用。

04
现场图规格

A型图纸,尺寸为170mm×257mm,主要适用于市区路口,高速公路上适合于匝道与主干道连接点处事故

B型图纸,尺寸为257mm×170mm,适用于主干道处,平直路面,如绘制较大范围的交通事故现场时,可拼接现场图。

C型图纸,尺寸为257mm×170mm
05
现场记录/比例图绘制
(一)
现场图比例
现场图的比例是指现场比例图中各要素和相互关系的线性尺寸与现场实际中相应尺寸之比,简而言之,现场图就是把交通事故现场元素按照比例尺以俯视图的形式缩放到纸面。
1.应按比例绘制的图形符号包括:
a)机动车、非机动车;
b)道路形式、结构,道路隔离带(桩);
c)动态痕迹的长度;
d)图中各主要要素间的图形符号。
2.可不按比例绘制的图形符号如:
a)人体、牲畜;
b)交通安全设施(交通标志、标线、护栏、隔离栅、轮廓标、诱导标、防眩设施);
c)动态痕迹的宽度;
d)其他图形符号。

高速公路组成图
本篇精髓
下面是作者精髓部分,学好了保你无论多么复杂的现场,都能真实地折射在纸上,即使你现场某些尺寸忘记量了,也能通过现场照片真实还原,能不能画好图就看你的悟性了:
绘制现场比例图应根据现场实际尺寸和选用的图幅规格,通过计算确定最佳比例。比例确定之后为省略计算,提高绘图效率,应借助比例尺直接缩绘。
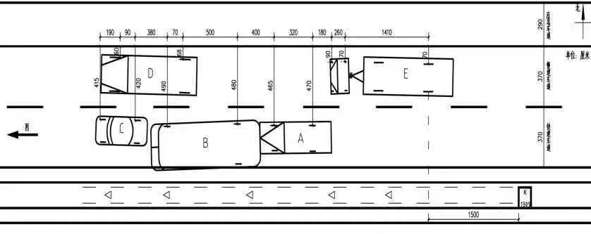
在高速公路交通事故现场图中,我们通常采用的比例为【中央隔离带宽度:隔离带至左侧车道边缘线距离:左侧车道宽度:中间车道宽度:应急车道宽度=2:1:5:5:4】,按照这个比例,得到下图:

常用的B型图纸图文尺寸为257mmX170mm,一般有64×29格,换算得现场比例图的比例应为1:186.77≈1:187,与GA49推荐的比例尺1:200相差无几。
(总制图标准比例:1:20;1:50;1:100;1:200)
而,高速公路为一级公路,机动车道标准宽度规定为3.75米,按照3.75M=5格,也就代表在纸上的1格相当于实际的750mm。
在实际操作中,可以打开车辆行驶证,按照这个方法换算成格数,如,面包车通常长4格,宽2.1格;小轿车长5格款2.5格,厢式货车长10格,宽3格。
按照这个思路,在你的现场勘查包内,可以事先备好若干已经画好车道、隔离带、护栏等信息的图(如上),到现场后只要将元素填好就行。
(二)
现场图绘制步骤
本部分要点
其实一张图画的好不好看,除了比例外,线型也影响美观,在现场图的绘制中,把握三个点,就会让你的图改头换面,一是线型要有粗细(如下图);二是尺寸线、直线等线条要直且干净利落;三是尺寸箭头要纤细。

现场图中线条运用
2.1 确定事故方向
交通事故现场的方向,应按实际情形在现场图右上方用方向标标注;涉及双向车道难以判断方向的,可用“←”或“→”直接标注在道路图例内,注明道路走向通往的地名。


2.2 尺寸标注
尺寸由尺寸界线、 尺寸线 、 尺寸数字三部分组成。
A.尺寸界线
尺寸界线用细实线绘制, 可以从被测物体、痕迹的固定点引出,也可以从基准点、图形的轮廓线处引出,也可从利用轮廓线、 基准线作尺寸界线。

尺寸线的画法
B.尺寸线
尺寸线用细实线绘制,其两端为简明箭头型。在没有足够的位置画箭头或注写数字时,可以用圆点或斜线代替箭头。尺寸界线与尺寸线垂直,必要时允许倾斜。尺寸线不能用其他图线代替, 一般也不得与其他图线重合或画在其延长线上。

尺寸线画法

尺寸箭头画法
C.尺寸数字
线性尺寸的数字一般应注写在尺寸线的上方,也允许注写在尺寸线的中断处。数字应按左下图所示方向注写,并尽可能避免在图示30°范围内标注尺寸,当无法避免时,可按照右下图的形式标注。

尺寸数字的注写方向

向左倾斜30°范围内的尺寸数字的注写
为保证现场图的美观,保持数字的方向一致性,对于非水平方向尺寸,可以采用下图所示标注法。

非水平方向的尺寸注法
D.圆弧类痕迹及弯道标注法
在标此类尺寸时,应有半径、弧长两要素,标注线性尺寸时, 尺寸线应与所标注的线段平行,不规则线性长度应在现场图说明栏注明长度。

E.折线标注法
1.当圆弧的半径过大或在图纸范围内无法标出其圆心位置时

圆弧半径较大的尺寸注法,常用于匝道、弯道
2.当直线距离过大,在现场图内无法严格按照比例来画时,可以使用双折线。

2.3 说明栏填写(参考)
1.测量单位cm,以XXKM公里牌为基准点,XX车道分界线/边缘线为基准线;
2.按照ABCD字母顺序依次标明车辆(车牌、车型)、 驾驶人(姓名,准驾车型,驾驶证号)、受伤/死亡人员(姓名,性别,证件号,家庭住址,在事故中受伤/当场死亡)、现场洒落物、痕迹;
3.用L表示制动痕等车辆与路面形成的痕迹并记录其长度;
4.现场大面积洒/散落物只用标明其中心点即可,不用注明面积大小。


转自交通事故法律法规