

我自己都有点记不清是什么时候开始装修的了,装修日记第一篇是2018年8月,有兴趣的读者可以退出文章在对话框回复关键词: 装修日记 。
当然,一个普通公寓是不可能装修这么久的,真正施工的日子也就正常的2-3个月吧,只是中间由于材料选择和施工时间的冲突有很多拖拖停停,这里感谢力设计的设计师博登和项目经理方工的大力配合支持。
总得来说,我还是很满意的,当然问题也是有的,反正我后面还会结合居住体验陆续写一些文章的。
预算反正是用来超的,比最开始计划的还是超支了很多,看上去平平淡淡,但真是花了不少钱,具体的花费清单我会列表格的,后面我还是会拍个Vlog的,新老朋友有兴趣可以关注一下。


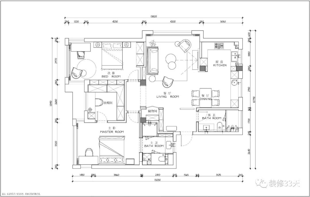
这是原始结构图和平面布置图,我个人觉得房子空间布局还是很满意的,反正用起来挺好。如果我一开始知道烘干机噪音挺大的话,可能会安排到次卫,其实次卫的淋浴可能很少会用到,等我儿子长大一点估计又会换房子了,因为装修过程中多了一个女儿,房间不够了。

进门这个三片长虹玻璃组成的旋转屏风我觉得算是一个亮点,虽然细节做得可能没有那么完美。关于旋转屏风我已经单独在装修33天同名视频号里面介绍过了。
进门右手边其实是有一道次卫的隐形门,这次拍照的时候次卫也比较乱,堆放了一些东西,所以次卫也没拍到,下次我拍视频吧。

客厅通铺的是世友的复合鱼骨拼,当时本来想买杂牌的,但是想想有地暖还是找了个大牌子地板更放心一点,鱼骨拼是真的有点贵的,效果挺好的。

这个弧形的主沙发可能是家里最便宜的一个家具,在网上买的,外形还可以,浅色绒面的不耐脏,已经被我儿子倒过一次饮料……

这个地毯是合作商帮我定制的,用的羊毛,本来我是想自然材质比较好,不过实际用下来觉得也容易脏,被我儿子掉过几次吃的上去了,有污迹了。要是便宜的材质我可能脏了换也不心疼,但羊毛地毯贵得很,只能保养好一点。

这个水磨石茶几是网购的,茶几的脚是实木的,样子不错,就是水磨石太重了,一个人根本移不动。不过移不动也不是没有好处,我儿子就经常拿它当桌子或者凳子使用……小孩子就喜欢坐地上。

电视是索尼的,当初在拼多多上买的,省了不少钱。电视柜可能是网购产品里最失败的一个,实木柜门,但是实木的热胀冷缩实在太厉害了,买来过了几个月之后门都关不上了,后来是售后去家具厂里把4扇门全部割掉了1厘米拿回来装上才能关上。

我家是开放式的餐厨,厨房都是通铺的地板,当初设计师提出来的时候,我其实也是有点犹豫,毕竟厨房多少会有水,瓷砖肯定更实用一点。不过*日我**常吃饭基本多是去父母那里的,所以家里可能开火的次数不会太频繁,我就想着试一试,也算替大家排雷了,看看厨房用地板会有什么后果。

餐桌是家具厂定制的,虽然家具也不便宜,不过外形我还是很喜欢的,就是这个不规则的桌面,我本来是想贴个膜,发现这种一头半圆的形状好像人家也不能裁给我,说让我自己裁,那我感觉我没这手艺。

餐桌后面的地柜算是西厨吧,其实就是放了一个小水槽,左右两个高柜,一个高柜是做了方太的蒸箱和烤箱,另外一个高柜是放了远大的新风主机。

厨房基本是这个样子,左边是放了一个西门子的双开门冰箱,关于冰箱的选择逻辑我也单独说过,老婆大人要白色的,要大容量,然后要尽量薄,最后就只有这一个选择。边上的格子被我老婆吐槽为积灰神器,其实我倒觉得应该有点格子,不然太单调了,很多时候实用和美是会冲突的。
再里面就是油烟机、灶具和方太水槽洗碗机,没什么可以特别介绍的。

从餐厨位置望向进门玄关方向,那一组鞋柜中间留了一个开放格子,包了金色的不锈钢,纯粹就是为了好看。这个位置还缺一个换鞋凳,反正找了很久没有满意的款式,就先空着了,以后看有没有缘分能找到合适的。

从餐厨望向客厅,对面藏蓝色的是通往卧室的端景墙。那个影子不是我,是设计师,反正拍照的时候摄影师说让谁走一下就让谁走一下,所以在很多案例照片中你们看到的不一定是业主本人。
过道左侧这边白色的柜门里面有个小的储藏室,因为拍照的时候没整顿也就没拍,下次我单独拍小视频吧。右边沙发背景墙上的小书柜放了一些拍照道具,特意把我买的一些书给收起来了。
所以装修毕业照很多都是摆拍,并不是真实的生活状态。包括沙发上那个 搭 毯,很多人之前也问过为啥照片里老是有一个毯子垂在地上,这就是摄影师想让整个画面平衡一点,仅此而已。
哦忘了吐槽一下这个摇臂灯,这个高度和位置真的很尴尬,几乎就成了纯摆设,这个锅得设计师来背,当初还花了不菲的价格海淘回来的。

我儿子房间的照片其实我之前自己拍的也放了很多次了,这个墨绿色的柜子最惹眼,有人觉得颜色太跳了,我自己是觉得算亮点。
床尾是一组柜子,一部分开放式格子当书柜,一部分带柜门可以放杂物。

儿童家具也是网购的,床和床头柜来自『哈木的房间』,虽然说价格挺贵的,但东西做的是好的,而且用料也很实在,外形也好看。

这个钢琴是装修完了临时买的,设计之初就压根没有考虑过会买,所以最终研究来研究去只能放这个位置了,挺不搭的,对于小户型来说真的是庞然大物。钢琴也是网购的,买的珠江的J6。

小书桌是北欧 表 情的,椅子是赫曼米勒的。电脑椅跟家里风格也不搭,被设计师吐槽过,但我还是坚持买了电脑椅,因为对我这种一天到晚都伏案工作的人来说,一把好的电脑椅太重要了。
不过我觉得赫曼米勒品牌溢价确实有点过高了,虽然是好吧,但是也不至于这么贵,我后来买了一把保友金豪b感觉也很好。关于这个我下次单独再写一篇或者拍段小视频吧,我还买过别的牌子的电脑椅。

主卧的黑色背景,两边是木作厂定制的,中间是用的科定板,实际效果挺一般,木作我已经在装修日记吐槽过了。

主卧这张书桌也还可以,反正我家里基本上大多数东西都是网购的,我下次再发一篇清单吧。

衣帽间里也有一张书桌,将来就是我、我老婆、我儿子一人一张书桌。

从衣帽间看向主卧的方向,这里是一扇隐形门。

▲ 主卫我之前也放过照片了,左边是淋浴,右边是马桶和洗衣机,中间是洗手台,因为有个小窗户,所以吧镜柜放在右侧了。
基本上就这些照片了,下次我再自己拍视频介绍。这次大家有任何问题随便留言我应该都能回复,包括各种用到的品牌。批评吐槽也随便发,反正我也不一定会给你放出来的。

先到这里,谢谢参观,欢迎点赞、在看、转发~
文字编辑 | 松爷
版权声明:装修33天出品,未经许可不得转载。