
吸气端盖、吸气端座、机体、排气端座、排气端盖用螺栓和定位销联成一体。

吸气端座和排气端座上安装了主轴承,支撑阴阳转子。


转子
结构:转子是一对平行放置的并相互啮合的螺杆,螺杆上具有特殊的螺旋齿型,其中具有凸齿型的称为阳转子,具有凹齿型的叫阴转子。

工作原理
压缩机内的一对相互啮合,按一定传动比旋转的阴、阳转子,产生周期性的V型齿间容积变化,完成制冷剂气体的吸入、压缩和排出。
工作过程

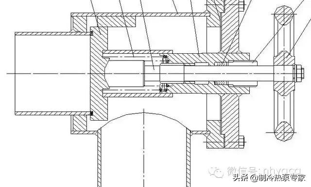
滑动轴承
运行条件
①油压:高于排气压力1.5~3bar;
②油温:35~55℃;
③品质:滤网的清洗、润滑油定期更换;
④制冷剂含量:减少回液现象。

推力轴承
降低异物进入滚道,特殊滚道处理表面使润滑油存油面积大。

轴封
使轴封腔与压缩机气腔分离,将腔内压力保持不变,防止工质沸腾,改善轴封封油效果。“O”型环采用特殊材质不与氨、氟发生反应。

能量调节装置
组成:滑阀、油缸、油活塞、滑阀导杆、螺旋导管、喷油导杆、压缩弹簧、能量指示器、四通电磁阀及油管等。

原理:通过滑伐的移动使压缩机阴、阳螺杆齿间工作容积,在齿面接触线从吸气端向排气端移动的前一段内,仍与吸气孔口相通,并使这部分气体回流到吸气孔口。即减少了螺杆的有效工作长度,来达到能量调节的目的。



滑阀的移动改变螺杆的有效工作长度

能量调节失灵的原因
1、四通电磁阀故障。电磁阀的常见故障有阀芯卡住、线圈烧、密封圈失效等。若阀芯卡住,可用手推动电磁阀两端应急按钮,或对电磁阀阀芯进行拆洗。
2、油管堵塞。疏通清洗油管。
3、油活塞间隙过大、密封圈老化,导致上、卸载腔不能完全封闭,引起自动上载。检查更换油活塞密封圈。
4、油活塞卡住。由于润滑油内含有机械杂质,导致油活塞与油缸拉毛,油活塞卡住。对油活塞和油缸进行修理。
5、滑阀拉毛卡住。对滑阀进行修理。
6、油压低,能量调节动力不足,调整油压。
7、能量指示器故障,如指针松动脱落等。
8、能量指示器接线错误。

手动调节
按增载按扭,高压油由电磁阀进油接头进入,然后从电磁阀增载接头流出进入油活塞后腔,此时油活塞前腔与电磁阀减载接头相通,并通过电磁阀回油接头与吸气端座上的回油接头相通,那么油活塞后腔压力大于前腔压力,在压差的作用下,油活塞向前腔运动,通过滑阀导管带动滑阀后移。实现增载。卸载则与此过程相反。
自动调节
可编程控制器根据吸气压力与设定压力的偏差,以及吸气压力的变化率,计算出上载或卸载的频率和持续时间,控制上载电磁阀或卸载电磁阀的开、关,通过油压驱动滑阀至所要求的工作位置,达到能量调节要求。
中间冷却器和经济器
为卧式壳管式结构。高压液体进入壳程后一部分经节流装置进入管程。两侧管箱分别由法兰与管板连接。换热管采用高效换热管,与管板连接。管束由折流板支撑。
中间冷却器的操作:
低压级载位大于50%开启,低于50%关闭。
热力膨胀阀自动调节供液量。
避免高压级回液。
经济器的操作:
低压级载位达到满载开启。
热力膨胀阀自动调节供液量。
避免低压级回液。
结霜至法兰为宜。

油路系统

油分离器


油冷却器
油冷却器有水冷和工质冷却两种,油冷却器是一种卧式壳管式热交换器,水或工质在管内。

水冷却壳管式油冷操作
1、水侧注意清洗;
2、在启动压缩机时若润滑油温度较低,可适当调整油冷却器循环水量。
油泵
柱塞做往复运动,转子做旋转运动,改进型增加油泵泵体支座,减少震动及噪声。

油泵的操作维护
同轴度的校验
联轴器胶圈的检查
轴封
调节油压阀
保证油压高于排气压力0.15~0.3Mpa,同时它起油泵的安全阀的作用。

油过滤器
消除润滑油中的杂质,保证油泵及压缩机的正常运行。油过滤器为不锈钢丝滤网胆。过滤器要经常拆卸清洗。

油压过低
1、油压调节阀开启度过大,适当调整阀门。
2、油量不足,补充至足量润滑油。
3、油路管路或油过滤器脏堵,清洗油过滤网。
4、油泵故障、磨损。
5、压缩机内部泄油量大,需对机头进行大修。
6、油温高,检查引起油温高的原因。
7、油中混有液体工质。由于压缩机回液,导致液体工质混入油中,油温降低,油压难于建立。可关闭压缩机吸排气阀,将油分离器中工质排出。
吸气过滤器
防止系统内的杂质被吸入压缩机,由焊接壳体和不锈钢丝过滤网胆组成。
要注意清洗。

油压过低
1、油压调节阀开启度过大,适当调整阀门。
2、油量不足,补充至足量润滑油。
3、油路管路或油过滤器脏堵,清洗油过滤网。
4、油泵故障、磨损。
5、压缩机内部泄油量大,需对机头进行大修。
6、油温高,检查引起油温高的原因。
7、油中混有液体工质。由于压缩机回液,导致液体工质混入油中,油温降低,油压难于建立。可关闭压缩机吸排气阀,将油分离器中工质排出。
单向阀
只允许气体按照阀体标注的方向顺向流动,而不允许气体反向流动。顺向流动时,只有阀芯两边压力差大于弹簧力时,阀芯才能打开。它主要设置在排气管及吸气侧。

联轴器
检测两轴端距离自锁螺母装配时,应涂少量润滑油
同轴度的调整:定期检查螺母是否松动、叠片。

制冷压缩机的启动、运行开机前的检查
1、检查机组四周有无障碍物;
2、观察油位;
3、检察能量载位;
4、检查机组阀门状态;
5、盘动压缩机联轴器,无卡阻现象。
6、检查油冷却器,根据环境温度及油温,调整水冷式油冷的冷却水流量。

开机操作-送电
螺杆机组主要运行参数:
排气压力、吸气压力、中间压力、油泵压力;
压缩机载位
供油温度
冷却水进口温度
电机电流
油位

正常运行标志
制冷剂
单位
数值或现象
排气压力
Mpa
≤1.5
吸气压力
Mpa
-0.05~0.026
对应饱和温度
℃
-55~-36
中间压力
Mpa
≤0.5
中间温度
℃
中间压力对应的饱和温度+6~10
油温
℃
40 ~ 55
油压
Mpa
高于排气压力0.15~0.3
主机、油泵轴封漏油量
≤ 6滴/分钟。
项目
单位
数值或现象
电机电流
A
不超过额定电流
电机轴承油位(滑动轴承)
不低于50%
油分油位
视镜可见
压缩机结霜
根据吸气温度而定,机头中下部不能结霜
电机轴承温度
℃
85
电机绕组温度
℃
135
油分回油管
视镜内应观察到回油
关机
①停机,机组执行自动停机程序;
②压缩机停止后关闭吸气阀;
③切断电源。
故障停机
机组装有安全保护装置,当压力、温度等超过规定范围时,控制器起作用使主机停车,同时铃响报警,故障显示,指出事故部位,消除事故后,才能再次启动。
发生故障停机时操作步骤如下:
①切断电源;
②关闭吸气阀
③查明原因并排除故障。
紧急停机
当机组或系统出现异常情况时必须紧急停机:
①按急停按钮;
②切断电源;
③关闭吸气阀;
④查明原因并排除故障。