来实地学习手机维修快两个月了,理论与实践相结合的教学模式让我们这些小小白技术成长很快,在此感谢老师们。A8CPU焊接考核通过后,徐老师给我们发故障板维修。接到主板发现多处进水氧化, 上图:




洗刷刷后,给各个供电电感打值没发现短路, 接电漏电190mA。接电漏电一般是采用主供电的元件损坏老化导致的,按照徐老师上课时教的漏电维修思路,先拆严重进水氧化的元件 。发现基带电源和WIFi芯片及周边电容氧化比较严重,其他轻微氧化,6代主板WiFi的主供电滤波电容易坏,先抠掉滤波电容,接电还是漏电190MA。拆掉WiFi芯片后,接电漏电减至50mA,再拆掉基带电源接电漏电8mA。 补上WiFi芯片与基带电源,触发开机,电流0--30--80--120循坏跳变。按照老师上课时教的常见电流判断法,这个电流很可能是CPU初始化I2C总线问题或检测上层问题,先排除I2C总线问题。

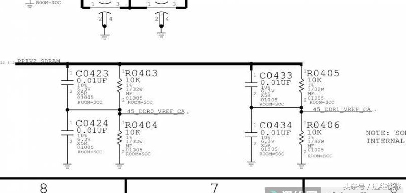
测量I2C总线对地值400多正常,开机测量也有1.8V电压。接下来测量暂存供电 1.8V/1.2V/0.95V都正常。接着测量暂存的4个参考电压由PP1V2经过电阻串联分压得来的0.6V,当测量到R0405/R0406电阻时发现这两个电阻在主板边缘,被铁架子盖住,仔细一看发现里面都腐蚀氧化了,心中暗喜,以为找到故障点了。



更换腐蚀氧化的电子电容,触发开机还是涛声依旧,接下来只能更换上层了 。



更换上层后,接电000mA 。之前漏电8mA更换上层后不漏电了,心中暗喜以为修好了,触发开机电流正常跑到300左右 白苹果重启。使用iTunes刷机很快报错9 ,报错9一般是指纹码片或硬盘问题。


更换指纹码片后刷机,滚动条跑三分之二左右报错-1


滚动条跑三分之二左右报错-1 可能是基带电源问题,想到之前有更换过基带电源,更加确认是基带电源问题。再更换一个基带电源后刷机成功,此机已修复。
本案例来自维修工程师(叨叨三叔)
关注迅维快修头条号,查看更多技术文章!